
|
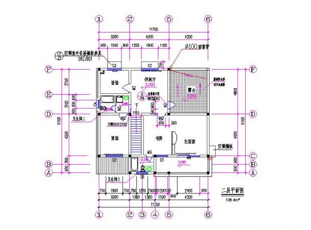
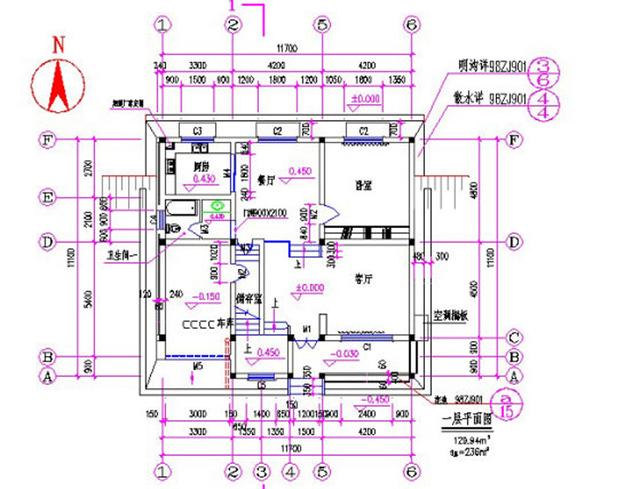
25萬在農村建造二層房子,可以說是相當經濟實用的,畢竟城市里的一個套房房價一平方動不動就5000+,而且大部分人在城里買房是貸款的,除了付首付,每個月還需償還房貸,這讓很多人覺得生活壓力大,不如選擇回農村建房子,在自家的宅基地上面建房,房子又大又舒適,今天小編挑選了2款精選造價25萬二層農村自建房全套施工效果圖,供大家參考。 【戶型1】 圖紙詳情 層數: 二層 結構形式: 框架結構 主體造價:25萬 開間: 11.7米 進深: 11.1米 占地面積: 129.94平方米 建筑面積: 236平方米
戶型1 戶型1配色很特別,外墻采用珊瑚色衛主色,搭配少量抹茶色,屋頂采用寶藍色,這種顏色在農村建房中比較少見,美觀獨特。整體設計風格屬于歐式,二樓前后有雙露臺設計,拉桿采用復古的中式鏤空元素,韻味十足。 設計功能 一 層: 客廳,儲藏室,臥室,廚房,餐廳,車庫,公共衛生間 二 層: 起居室,主臥(帶書房,衛生間,露臺),次臥室(帶衛生間),臥室,大露臺 平面圖展示
一層平面圖
二層平面圖 【戶型2】 圖紙詳情 層數: 二層 結構形式: 磚混結構 主體造價: 25萬 開間: 14米 進深: 11.5米 占地面積: 141.55平方米 建筑面積: 270平方米
戶型1 該戶型采用黃色墻漆裝飾外墻,屋頂寶藍色坡面設計,邊線使用純白色修飾,一樓加高設計,采用階梯式入戶,有長走廊,別致獨特。二樓有露臺設計,這是農村比較喜歡的一種功能設計,利用多個超大窗戶設計,衛室內增強采光及通風效果,一樓設有2間臥室,二樓設有3間臥室,主臥室是套間,帶有獨立衛生間和露臺,寬敞舒適。 設計功能 一 層: 走廊、客廳、父母房、客房、廚房、餐廳、衣帽間、衛浴間、衛生間、洗衣間 二 層: 主臥(附衣帽間,衛浴間,露臺)、2臥室、衛浴間、洗漱間、露臺 平面圖展示
一層平面圖
二層平面圖 圖紙之家-專注農村別墅/自建房設計18年,集合國內200余位經驗豐富的設計師,被評為口碑最好的農村建筑設計公司! |

鄉村最美三層別墅設計圖自建房戶型,外觀圖精致漂亮
占地:134平方米
170平方米新農村實用的三層雙拼設計圖紙,帶公用堂屋!
占地:173.62平方米
私人二層中式四合院別墅建筑設計圖,新農村經濟實用戶型
占地:145平方米
歐式豪華三層別墅設計圖,占地面積170平米,高端大氣帶露臺
占地:170平方米
帶車庫帶露臺二層農村小別墅設計圖,宅基地大小適中,外觀造型
占地:180平方米
150平方米農村二層磚混結構別墅施工建筑設計圖,平頂設計
占地:150平方米
18米乘10米一層農村自建房設計圖,大方耐看符合傳統對稱美
占地:180平方米
一層農村自建房設計圖,造型美觀大氣,占地150平
占地:153.415平方米
農村二層小別墅圖片,二層別墅效果圖及設計圖
占地:153平方米
農村小型四合院設計效果圖及施工圖,傳統中式,四面建房
占地:220平方米
兩層半樓房設計圖及效果圖,農村二層房屋設計圖推薦
占地:135平方米
面寬17米農村一層平房設計圖,簡約空間敞亮
占地:169.393平方米
農村小戶型三層別墅設計圖,平屋頂,造價20萬左右
占地:80平方米
三層別墅設計施工圖紙(含外觀效果圖)帶大露臺
占地:160平方米
南方新農村三層房屋設計圖大全,預算30萬內
占地:145平方米
2026二層農村新款別墅設計圖,帶車庫,帶鍋爐房
占地:180平方米
五開間一層農村平房設計圖,200平米大戶型,五間臥房足夠用了
占地:200.7平方米
農村兄弟雙拼平房別墅設計圖,獨門獨戶,一層也能建雙拼
占地:274.18平方米
大二間三層別墅戶型圖,三層新農村自建房設計圖紙及效果圖
占地:116平方米
面寬13米方正戶型二層小別墅設計方案,南北通透采光好
占地:166.78平方米
推薦:10套新農村自建房設計圖,2026年最新設計
閱讀次數:4825737次
100套鄉村別墅圖片大全,2026年最新設計
閱讀次數:2492203次
6款農村蓋一層平房的設計圖,10萬元就能建起來
閱讀次數:1852637次
這11個一層農村自建房別墅火爆了朋友圈!我最喜歡戶型十!你呢
閱讀次數:750268次
農村6萬元建一層小別墅圖,你敢相信嗎
閱讀次數:567686次
農村5萬塊就能自建房,6套普通房子設計圖分享,你沒看錯!
閱讀次數:419410次
8套農村漂亮三間平房圖片,非常適合在農村修建!
閱讀次數:411197次
農村自建房化糞池怎么做?附方案及施工過程
閱讀次數:391783次
農村一層三間平房設計圖,告別土氣養老房,讓人忍不住點贊
閱讀次數:350581次
新農村二層樓房圖片造價12萬,挑一套回家建房吧!
閱讀次數:349126次
