
|
很多人覺得建房子不需要花錢來設計,其實這種想法是不好的,一套合理的房屋設計圖能讓房子看起來更美觀,住起更舒適,專業的設計讓房屋安全沒有后顧之憂,毫不夸張的說一份合理的設計圖可以讓你在建房的時候節省施工的時間和成本,省下好幾萬。今天小編給大家分享2套帶棋牌室農村房屋設計圖,戶型1只要25萬,2是70萬奢華款! 【戶型1】
戶型1 層數: 三層 結構形式: 框架結構 主體造價: 25萬 開間: 8.55米 進深: 11.6米 占地面積: 123.2平方米 建筑面積: 282.35平方米 戶型1一層外墻采用暗紅色裝飾,二三層淺色搭配,屋頂采用桔黃色,適當使用白色腰線點綴,配色協調美觀,三樓設有屋頂花園、棋牌活動室等,功能布局合理齊全且多樣。 功能設計
一層平面圖 一 層: 客廳、餐廳、廚房、老人房、衛生間
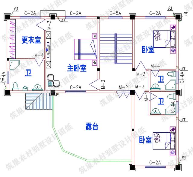
二層平面圖 二 層: 衣帽間、臥室、主臥室、衛生間、陽臺 三 層: 臥室、主臥室、屋頂花園、棋牌活動室、衛生間 【戶型2】
戶型2 戶型2帶有地下室,地上主體共有三層,開間進深15.4×13.6米 ,一層占地面積246.97平方米 ,總建筑面積 682.4平方米 ,采用框架結構,主體造價70萬。 該戶型可以說是奢華款的戶型設計,設有階梯式入戶平臺,落地窗的形狀很特別,采用圓弧設計,三層有超大露臺花園,浪漫休閑。地下層做車庫、倉庫使用,一層客廳中空設計,二層設有卡拉OK室,是年輕人的最愛。 設計功能
地下層平面圖 地下室: 車庫
一層平面圖 一 層: 廚房、餐廳、客廳(挑空)、主臥帶內衛、次臥 、佛龕、公衛
二層平面圖 二 層: 主臥帶衛生間、次臥帶衛生間、卡拉OK室、公衛、露臺
三層平面圖 三 層:主臥室(帶更衣室、衛生間) 、次臥*2(帶衛生間)、露臺 圖紙之家-專注農村別墅/自建房設計18年,集合國內200余位經驗豐富的設計師,被評為口碑最好的農村建筑設計公司! |

面寬20米四開間二層別墅,火爆全村的戶型,美好生活的起點
占地:245.73平方米
農村三層雙拼別墅設計圖,兄弟建房開間20米,單戶80平方
占地:160平方米
110平米一層小別墅設計方案,布局四室兩廳一廚兩衛
占地:110.5平方米
120平方米農村四層別墅設計圖,含全套施工圖
占地:120平方米
新農村四層獨棟復式別墅設計圖,設計豪華時尚
占地:140平方米
豪華大氣三層農村房屋設計圖,對稱的主體設計大氣恢宏
占地:240平方米
時尚典雅歐式三層自建房設計圖,美觀大氣簡單舒適,好看到沒得
占地:153.12平方米
農村新中式別墅設計圖及效果圖,造價25萬左右
占地:95平方米
經典農村二層小別墅設計圖紙帶露臺(含外觀效果圖)
占地:110平方米
鄉下建房一層半戶型圖,占地160平米,帶閣樓
占地:多種戶型
自建帶電梯的三層豪華別墅設計圖,建好有面子,面寬16米
占地:194平方米左右
造價40萬三層大氣自建房設計圖紙,鄉村別墅建造圖
占地:159.609平方
110平左右三間兩層農村別墅房屋設計圖,含外觀效果圖
占地:107平方米
經典戶型二層農村小別墅設計圖,造價25萬內
占地:140平方米
面寬14米農村別墅二層別墅戶型設計,經濟實用
占地:107.1平方米
中國最好看的二層農村房子圖片及施工圖紙,20萬現代風格
占地:130平方米
歐式二層農村別墅設計圖,140平方米戶型方正的好方案
占地:142.51平方米
70平農村小戶型二層別墅設計圖,小宅基地的福音
占地:70平方米
高顏值又實用的一層雙拼鄉村別墅設計圖,舒適度堪比豪宅
占地:217.3平方米
兩層半樓房設計圖及效果圖,農村二層房屋設計圖推薦
占地:135平方米
推薦:10套新農村自建房設計圖,2026年最新設計
閱讀次數:4825737次
100套鄉村別墅圖片大全,2026年最新設計
閱讀次數:2492203次
6款農村蓋一層平房的設計圖,10萬元就能建起來
閱讀次數:1852637次
這11個一層農村自建房別墅火爆了朋友圈!我最喜歡戶型十!你呢
閱讀次數:750268次
農村6萬元建一層小別墅圖,你敢相信嗎
閱讀次數:567686次
農村5萬塊就能自建房,6套普通房子設計圖分享,你沒看錯!
閱讀次數:419410次
8套農村漂亮三間平房圖片,非常適合在農村修建!
閱讀次數:411197次
農村自建房化糞池怎么做?附方案及施工過程
閱讀次數:391783次
農村一層三間平房設計圖,告別土氣養老房,讓人忍不住點贊
閱讀次數:350581次
新農村二層樓房圖片造價12萬,挑一套回家建房吧!
閱讀次數:349126次
