
|
農村人賺錢了都回到農村建別墅去了,看看這一棟棟美麗大氣的別墅,你還會覺得農村落后嗎? 別墅蓋的好不好看,戶型起著至關重要的作用,為什么別人家里的房子蓋的這么好看,就是因為設計的好對戶型了解,再找到合適的施工隊,蓋出自己喜歡的房子就成了。現在一棟房子的價錢也就幾十萬,選一個好的設計也是值得的! 效果圖:
外觀三段式顏色搭配,清新亮麗,飄窗、露臺設計,南面屋頂設有小老虎窗,精致漂亮! 戶型基本信息 層數: 二層結構形式: 磚混結構主體造價: 15-18萬 開間: 11.1米進深: 11.4米占地面積: 128平方米建筑面積: 215平方米 別墅案例建成圖:
別墅看上去穩重大氣,經典有格調,這套別墅將原效果圖整體色彩低調典雅,更沉穩,實乃當值無愧的美宅,建出的成品比效果圖還漂亮。門庭上的吊燈非常漂亮,晚上的燈光一定非常浪漫漂亮,大窗戶設計,室內通透,視野良好! 平面布局圖:
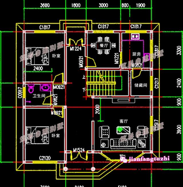
一層平面圖 一 層:客廳、2臥室、廚房、餐廳、衛生間、貯藏室、門廳
二層平面圖 二 層:主臥(主衛)、臥室(次衛)、露臺、花壇 圖紙之家-專注農村別墅/自建房設計18年,集合國內200余位經驗豐富的設計師,被評為口碑最好的農村建筑設計公司! |

超實用超現代兩層自建小樓圖,純粹極簡風格
占地:184平方米左右
自建一層三合院別墅圖,雅致鄉村居造價經濟,南北通透更宜居!
占地:176.36平方米
140平方米新農村二層自建平屋頂房屋設計圖紙帶外觀效果圖
占地:140平方米左右
開間12米的三層簡歐別墅設計圖,農村建房布局實用住的舒服
占地:108.15平方米
二層復式農村別墅設計圖,進深12米,戶型堪稱完美
占地:193.2平方米
13.5米乘11米兩層半別墅設計圖,中式與現代相融合
占地:148.5平方米
高端大氣三層別墅設計圖,建好就是村里最靚的
占地:120平方米
新農村二層自建房設計圖帶外觀圖片,自建戶型大全
占地:160平方米
簡約大氣四開間二層自建房設計圖,16x10米,經典耐看高顏值
占地:160平方米
18X12米農村二層溫馨小別墅設計圖,美式風格
占地:203平方米
新中式別墅一層自建房設計,戶型實用緊湊
占地:170.54平方米
面寬8米兩開間四層歐式風別墅,布局實用,小占地大精彩!
占地:100.86平方米
四層豪華別墅設計圖及效果圖,高端房屋設計方案
占地:250平方米
一層田園風坡屋頂平房設計圖,造型漂亮時尚
占地:134.9平方米
鄉村兩層半150平帶閣樓別墅房屋設計圖,客廳大、臥室多
占地:150平方米
帶車庫三層自建別墅設計圖紙,客廳中空,外觀洋氣時尚,這款戶
占地:170平方米
140平中式徽派一層別墅設計圖,一層照樣建這樣漂亮
占地:140平方米
平屋頂二層自建房帶商鋪別墅設計圖紙及外觀圖
占地:225平方米
徽派自建房一層設計圖,七字型設計,獨立餐廚便捷實用
占地:171.65平方米
170平方米農村二層房屋設計施工圖,外觀圖時尚、好看
占地:172平方米
推薦:10套新農村自建房設計圖,2026年最新設計
閱讀次數:4825737次
100套鄉村別墅圖片大全,2026年最新設計
閱讀次數:2492203次
6款農村蓋一層平房的設計圖,10萬元就能建起來
閱讀次數:1852637次
這11個一層農村自建房別墅火爆了朋友圈!我最喜歡戶型十!你呢
閱讀次數:750268次
農村6萬元建一層小別墅圖,你敢相信嗎
閱讀次數:567686次
農村5萬塊就能自建房,6套普通房子設計圖分享,你沒看錯!
閱讀次數:419410次
8套農村漂亮三間平房圖片,非常適合在農村修建!
閱讀次數:411197次
農村自建房化糞池怎么做?附方案及施工過程
閱讀次數:391783次
農村一層三間平房設計圖,告別土氣養老房,讓人忍不住點贊
閱讀次數:350581次
新農村二層樓房圖片造價12萬,挑一套回家建房吧!
閱讀次數:349126次
