
|
現在很多農村家庭都在討論如何建新房,幾乎每個村子里都有好幾戶人家正在建房。但是很多剛剛建好的房子就因為地址和施工的原因出現了問題,而這些貓膩施工隊是絕對不會告訴你的。如果有一套完整的建筑施工圖紙,只要按照圖紙施工,不僅能節省建房的成本,遇到的問題也會少很多,這就讓人放心多了。 接下來給大家分享5套15X13米農村三層別墅,家是避風港,需要用心來建造! 第一套
正面效果圖
背面效果圖
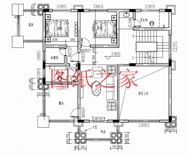
鳥瞰效果圖 占地面積:14.8m*12.6m,一層占地150平方米左右(含外門庭); 建筑層高:三層; 建筑高度:11.9米(含屋頂); 設計功能: 一層戶型:客廳、廚房、餐廳、臥室、娛樂室、衛生間×2、土灶房; 二層戶型:客廳上空、客廳、臥室(帶衣帽間、衛生間)、臥室、衛生間、陽臺、露臺; 三層戶型:臥室x2、衛生間、儲藏間、大露臺;
一層平面圖
二層平面圖
三層平面圖 第二套
正面效果圖
背面效果圖
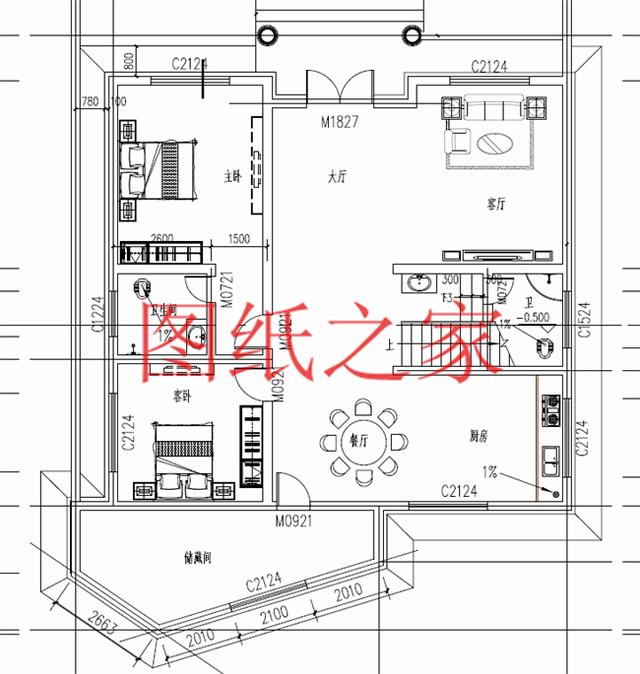
鳥瞰效果圖 占地面積:15.5m*12.7m,一層占地170平方米左右(含外門庭); 建筑層高:三層; 建筑高度:13.1米(含屋頂); 設計功能: 一層戶型:客廳、廚房、餐廳、臥室(帶衛生間)、衛生間、烤火間(可做臥室)、車庫; 二層戶型:客廳、客廳上空、臥室(帶衛生間)、臥室x2、書房、衛生間、露臺; 三層戶型:臥室(帶衛生間)、臥室、書房、衛生間、多功能房、露臺×2;
一層平面圖
二層平面圖
三層平面圖 第三套
正面效果圖
背面效果圖
鳥瞰效果圖 占地面積:15.8m*13.0m,一層占地170平方米左右(不含院子); 建筑層高:三層; 建筑高度:12.8米(含屋頂); 設計功能: 一層戶型:客廳、廚房、餐廳、臥室(帶衛生間)、客臥、衛生間、儲藏間(可以調整); 二層戶型:茶室、臥室(帶衛生間)、臥室x2、衣帽間、衛生間、露臺; 三層戶型:臥室×3、書房、露臺、衛生間、衣帽間;
一層平面圖
二層平面圖
三層平面圖 第四套
正面效果圖
背面效果圖
鳥瞰效果圖 占地面積:15.2m*12m,一層占地180平方米左右(含外門庭); 建筑層高:三層; 建筑高度:13.35米(含屋頂); 設計功能: 一層戶型:客廳、廚房、餐廳、臥室、老人房、衛生間; 二層戶型:玄關上空、臥室(帶衛生間、衣帽間)、臥室(帶衛生間)、臥室x2、衛生間; 三層戶型:臥室(帶書房)、臥室(帶衣帽間、衛生間)、家庭廳、衛生間;
一層平面圖
二層平面圖
三層平面圖 第五套
正面效果圖 占地面積:14.5m*12.4m,175平方米左右; 建筑層高:三層; 建筑高度:14.33米(含屋頂); 設計功能: 一層戶型:大廳、客廳、廚房、餐廳、主臥(帶衛生間)、臥室、衛生間、儲藏間(樓梯下面); 二層戶型:客廳、臥室(帶書房)、臥室x3(都帶衛生間,可以根據情況選擇不帶)、衛生間; 三層戶型:客廳、臥室x4(其中2個帶衛生間)、衛生間、露臺;
一層平面圖
二層平面圖
三層平面圖 這幾套別墅的設計圖,你最喜歡哪一套? 圖紙之家-專注農村別墅/自建房設計18年,集合國內200余位經驗豐富的設計師,被評為口碑最好的農村建筑設計公司! |

現代二層農村別墅全套設計圖,大旋轉露臺+超大中空客廳
占地:133平方米
經典農村三層樓房設計圖,10個不同尺寸戶型,各種戶型供您選擇
占地:多種
170平米自建三層房屋別墅設計圖紙及效果圖
占地:170平米
農村三層樓房圖造價26萬,客廳中空,占地90平米
占地:90平方米
實用型農村120平米二層樓房設計圖,小巧美觀實用
占地:120平方米
農村四層樓房設計圖,復式結構、客廳中空,外觀效果圖+全套圖
占地:130平方米
現代一層(帶悶頂)別墅住宅設計圖,外觀現代時尚
占地:160平方米
新農村自建20萬二層小樓外觀圖及戶型圖,簡單大方,漂亮接地氣
占地:130平方米
簡單現代平屋頂兩層四間自建樓房設計圖紙施工方案,簡潔又實用
占地:192平方米
農村四間房屋設計圖經典戶型,這樣設計美觀、實用
占地:169平方米
100平方三層樓房設計圖及圖片,戶型設計簡約時尚
占地:100平方米
農村三層帶地下室住宅設計圖及圖片,房內設計了兩個套間
占地:210平方米
130平米最新氣派農村四層樓房設計圖,四層樓房圖片
占地:130平方米
新中式風格二層住宅設計圖,農村自建房不土氣
占地:144.5平方米
高端三層別墅設計圖紙,客廳中空,帶地下室,設置多個套間
占地:220平方米
農村二層半樓房效果圖及全套設計圖紙,自建房簡單實用
占地:121平方米
大戶型高端三層別墅設計圖紙,外觀效果圖+CAD建筑圖
占地:227平方米
帶架空層的農村一層小別墅設計圖,大氣穩重又很實用
占地:123.5平方米
120平方米農村四層別墅施工設計圖紙及效果圖
占地:120平方米
農村三層別墅設計圖紙,造價50萬左右,中式風格,沉穩內斂
占地:160平方米
推薦:10套新農村自建房設計圖,2026年最新設計
閱讀次數:4825737次
100套鄉村別墅圖片大全,2026年最新設計
閱讀次數:2492203次
6款農村蓋一層平房的設計圖,10萬元就能建起來
閱讀次數:1852637次
這11個一層農村自建房別墅火爆了朋友圈!我最喜歡戶型十!你呢
閱讀次數:750268次
農村6萬元建一層小別墅圖,你敢相信嗎
閱讀次數:567686次
農村5萬塊就能自建房,6套普通房子設計圖分享,你沒看錯!
閱讀次數:419410次
8套農村漂亮三間平房圖片,非常適合在農村修建!
閱讀次數:411197次
農村自建房化糞池怎么做?附方案及施工過程
閱讀次數:391783次
農村一層三間平房設計圖,告別土氣養老房,讓人忍不住點贊
閱讀次數:350581次
新農村二層樓房圖片造價12萬,挑一套回家建房吧!
閱讀次數:349126次
