
|
以前農村的房子都有一個小院子,可以養花種樹,甚至養雞種菜也可以,但是現在大家都是修建全封閉的樓房,院子越來越小或者沒有了。這種情況下,可以在房子中增加露臺來增添一點色彩,這樣不僅適合農村的生活,也能讓房子更加美觀大氣。 接下來給大家推薦4套歐式三層農村別墅,13X15米、15X13米還帶露臺,美觀大氣上檔次! 第一套
正面效果圖
背面效果圖
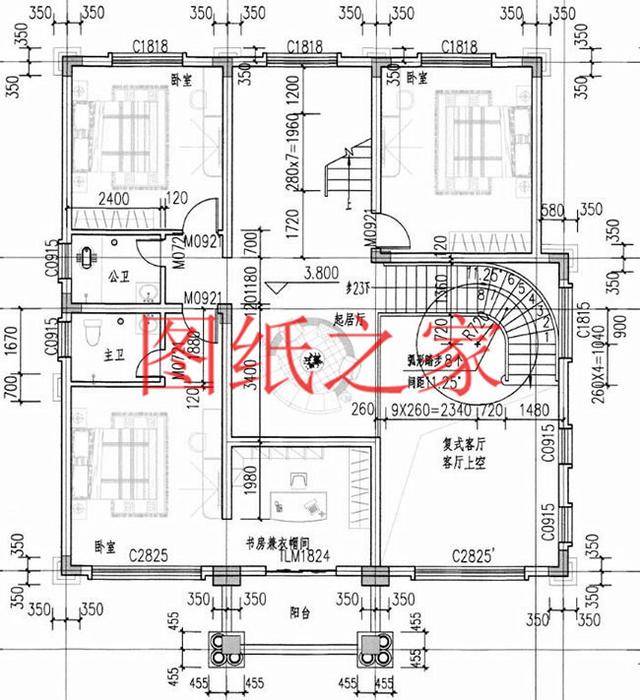
鳥瞰效果圖 占地面積:13.3m*14.6m,140平方米左右; 建筑層高:三層; 建筑高度:12.8m(含屋頂);坡屋頂; 設計功能: 一 層:門廊、客廳、車庫、餐廳、廚房、衛生間、客房; 二 層:陽臺、臥室、露臺、陽臺、書房、衛生間、臥室、衛生間、臥室、客廳上空; 三 層:露臺、臥室、衛生間、書房、陽臺、露臺、活動室、臥室、衛生間、臥室;
一層平面圖
二層平面圖
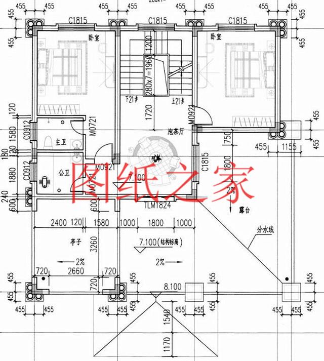
三層平面圖 第二套
正面效果圖
背面效果圖
鳥瞰效果圖 占地面積:14.4m*12.9m,一層占地160平方米左右; 建筑層高:三層; 建筑高度:12.9米(含屋頂); 設計功能: 一 層:客廳、廚房、餐廳、臥室(帶衛生間)、臥室、衛生間; 二 層:客廳上空、客廳、臥室(帶衛生間)、臥室、書房、衛生間、陽臺; 三 層:家庭娛樂廳、健身房、臥室(帶衛生間)、臥室、衛生間、大露臺、陽臺;
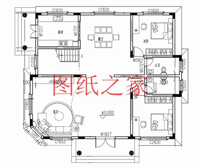
一層平面圖
二層平面圖
三層平面圖 第三套
正面效果圖
背面效果圖
鳥瞰效果圖 占地面積:13.44m*15.72m(尺寸含門廊),一層168建筑平方米; 建筑層高:三層; 建筑高度:12.98米(含屋頂); 設計功能: 一 層:玄關、客廳、餐廳、廚房、臥室、衛生間、車庫; 二 層:客廳上空、起居室、主臥套間(帶書房、衛生間)、臥室x2、衛生間、陽臺; 三 層:茶廳、主臥(帶衛生間)、臥室、衛生間、大露臺、涼亭;
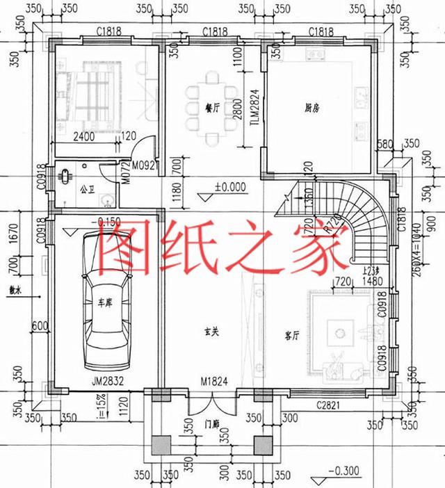
一層平面圖
二層平面圖
三層平面圖 第四套
別墅效果圖 占地面積:14.1m*12.9m,180平方米左右; 建筑層高:三層; 建筑高度:12.5米(含屋頂); 設計功能: 一 層:門廳、客廳、餐廳、廚房、老人房(主臥)、衛生間、棋牌室(次臥); 二 層:起居室(小客廳)、主臥(帶衣帽間、衛生間)、臥室x2、衛生間; 三 層:起居室(客廳)、主臥(帶衣帽間、帶衛生間)、書房、大露臺;
一層平面圖
二層平面圖
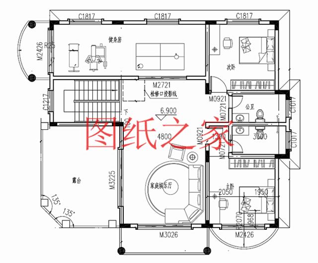
三層平面圖 這幾套別墅的設計圖,你最喜歡哪一套? 圖紙之家-專注農村別墅/自建房設計18年,集合國內200余位經驗豐富的設計師,被評為口碑最好的農村建筑設計公司! |

現代三層復式小別墅設計圖及外觀圖片,25萬造價
占地:105平方米
左右對稱的歐式高端三層別墅設計圖,外觀氣派、豪華
占地:200平方米
L字型自建房屋設計圖,一層別墅類型,外觀效果圖漂亮
占地:188.62平方米
豪華三層歐式風格別墅圖紙設計,挑空客廳大面寬大戶型
占地:225.72平方米
復式客廳挑空三層別墅設計圖,帶外觀效果圖片,推薦
占地:150平方米
帶車庫三層自建別墅設計圖紙,客廳中空,外觀洋氣時尚,這款戶
占地:170平方米
新農村二層客廳挑高樓房設計圖,外觀歐式風格
占地:178平方米
新中式農村三層房屋效果圖及施工圖,140平方米左右
占地:140平方米
大氣、簡約三層雙拼別墅設計圖,適合和父母同住,既相互關照又
占地:260平方米
簡單大方二層小別墅設計圖,占地180平米,造型美觀,構造整齊有
占地:180平方米
造價便宜的二層雙拼別墅設計圖,造型簡約大氣,進深10米
占地:SP23059
最新款二層鄉下別墅設計圖,新中式風格,24萬建好主體
占地:150.94平方米
農村15萬元二層小樓圖,占地100平米左右,簡單實用,戶型合理
占地:100平方米
農村二層小洋樓設計圖,帶外觀效果圖,外觀新穎,漂亮
占地:130平方米
兩層三間農村房屋設計圖,新農村住宅方案推薦
占地:155平方米
2026年最新款四間二層別墅設計圖,15米乘13米
占地:171.01平方米
建房老師傅力薦!這塊二層簡歐設計圖,花錢少、顏值高,必火
占地:131.65平方米
鄉村最美四合院設計圖及外觀效果圖片,國人的理想住宅
占地:280.62平方米
100平方米左右新農村二層房屋設計建筑CAD圖紙帶外觀效果圖
占地:多戶型可選
12.8乘10米一層平房別墅設計圖,四室二廳南北通透
占地:128.85平方米
推薦:10套新農村自建房設計圖,2026年最新設計
閱讀次數:4825737次
100套鄉村別墅圖片大全,2026年最新設計
閱讀次數:2492203次
6款農村蓋一層平房的設計圖,10萬元就能建起來
閱讀次數:1852637次
這11個一層農村自建房別墅火爆了朋友圈!我最喜歡戶型十!你呢
閱讀次數:750268次
農村6萬元建一層小別墅圖,你敢相信嗎
閱讀次數:567686次
農村5萬塊就能自建房,6套普通房子設計圖分享,你沒看錯!
閱讀次數:419410次
8套農村漂亮三間平房圖片,非常適合在農村修建!
閱讀次數:411197次
農村自建房化糞池怎么做?附方案及施工過程
閱讀次數:391783次
農村一層三間平房設計圖,告別土氣養老房,讓人忍不住點贊
閱讀次數:350581次
新農村二層樓房圖片造價12萬,挑一套回家建房吧!
閱讀次數:349126次
