
|
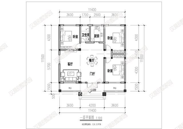
農村人在城里打工,基本上有能力后都會買一套城市商品房,然后老家房子還是要的。 武漢黃陂孟先生別墅設計圖,孟先生三兄弟,都在武漢,很少回老家,但是老家房子還是要有,因為只有逢年過節回去住,于是三兄弟就蓋一層,每個人都有自己的想法,孟先生直接來我們公司跟設計師面談溝通設計細節。
雖是聯排設計,對于自己的房子三兄弟都有自己的想法,最后都根據自己的想法設計出了這棟戶型
屋頂不是做成一片式設計,看似獨棟的設計之間又緊密聯系。
平面圖 獨門獨棟設計,門廳、客廳、餐廳、廚房、衛生間等都按照自己的喜好進行合理的安放。第一棟第二棟都只有三間臥室,里面的布局一樣,總體成鏡像形式;第三棟有四間臥室,相比來說,餐廳、客廳廚房就比較小了。
這棟別墅的獨棟戶型,聯排更顯大氣,獨棟更經濟,你覺得哪種好看?
![]() 圖紙之家-專注農村別墅/自建房設計18年,集合國內200余位經驗豐富的設計師,被評為口碑最好的農村建筑設計公司! |

經濟小戶型二層中式四合院(三合院)設計圖紙,帶堂屋和庭院
占地:143.544平方米
農村小戶型二層房屋別墅設計圖,帶外觀效果圖
占地:95平方米
二層復式雙拼別墅設計圖(客廳中空),含外觀效果圖
占地:195平方米
私人二層農村小樓設計圖,外觀靚麗,富有現代氣息
占地:160平方米
農村10萬元一層小別墅設計圖紙,戶型實用又合理
占地:130平方米
預算20萬左右三層別墅設計圖紙,新農村自建房推薦
占地:118平方米
農村三層自建房子圖紙設計方案,開間11米左右
占地:151.96平方米
面寬8米的新農村三層自建房設計圖平屋頂,全套cad圖紙+效果圖
占地:115平方米
三層新農村自建房屋設計圖紙,占地120平米左右
占地:120平方米
100平方米二層中式小別墅設計圖紙級效果圖片
占地:99平方米
帶架空層的一層自建房太香了!防潮、停車、儲物全兼顧
占地:152.06平方米
農村三層15萬自建房圖,小戶型別墅設計方案圖
占地:60平方米
建一棟就成了村里的門面擔當!三層歐式別墅,左右對稱太氣派
占地:173.67平方米
新款三層豪華大氣歐式別墅設計圖,3種戶型設計方案
占地:125平方米左右
160平方米經典鄉村二層房屋設計圖紙
占地:160平方米
大氣豪華四層別墅設計圖紙,占地180平米左右
占地:180平方米
帶電梯高端四層別墅房屋設計圖,外觀圖大氣、上檔次
占地:220平方米
帶小院子的鄉村一層別墅設計圖紙,120平方米
占地:多戶型
鄉村一層帶閣樓歐式小別墅,“L”型七字設計戶型
占地:194.218平方米
爆款120平米三層農村別墅房屋設計圖,室內布局功能齊全,色彩搭
占地:120平方米
推薦:10套新農村自建房設計圖,2026年最新設計
閱讀次數:4825737次
100套鄉村別墅圖片大全,2026年最新設計
閱讀次數:2492203次
6款農村蓋一層平房的設計圖,10萬元就能建起來
閱讀次數:1852637次
這11個一層農村自建房別墅火爆了朋友圈!我最喜歡戶型十!你呢
閱讀次數:750268次
農村6萬元建一層小別墅圖,你敢相信嗎
閱讀次數:567686次
農村5萬塊就能自建房,6套普通房子設計圖分享,你沒看錯!
閱讀次數:419410次
8套農村漂亮三間平房圖片,非常適合在農村修建!
閱讀次數:411197次
農村自建房化糞池怎么做?附方案及施工過程
閱讀次數:391783次
農村一層三間平房設計圖,告別土氣養老房,讓人忍不住點贊
閱讀次數:350581次
新農村二層樓房圖片造價12萬,挑一套回家建房吧!
閱讀次數:349126次
