
|
每個人都希望有一個漂亮舒適的家,在外面工作累了,回到家里就可以放松心情,讓煩惱都消散。挑選一套符合自家需求和審美的圖紙,給自己修建一個家,讓自己的家人都能快樂的生活,是多么得幸福! 下邊給大姐介紹6套農村三層別墅,占地110平方米左右,20萬就能建好,快來看看吧! 第一套
正面效果圖
鳥瞰效果圖
背面效果圖 占地面積:10.14m*9.94m,占地100平方米左右; 建筑層高:三層; 建筑高度:12.6米(含屋頂); 設計功能: 一 層:會客廳、廚房、餐廳、衛生間、臥室; 二 層:主臥(帶衛生間、衣帽間)、次臥(帶衛生間)、露臺; 三 層:主臥(帶衛生間、衣帽間)、次臥、衛生間、露臺;
一層平面圖
二層平面圖
三層平面圖 第二套
正面效果圖
鳥瞰效果圖
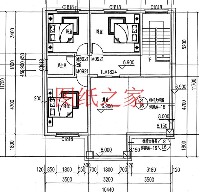
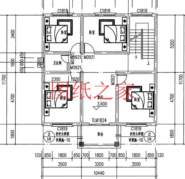
背面效果圖 占地面積:10.4m*11.7m,一層占地105平方米左右; 建筑層高:三層; 建筑高度:12.0米(含屋頂); 設計功能: 一 層:客廳、廚房、餐廳、臥室×2、衛生間; 二 層:客廳、臥室x4、衛生間、陽臺; 三 層:臥室x3、衛生間、大露臺;
一層平面圖
二層平面圖
三層平面圖 第三套
正面效果圖
鳥瞰效果圖
背面效果圖 占地面積:8.2m*13.8m,一層占地106平方米左右; 建筑層高:三層; 建筑高度:12.81米(含屋頂); 設計功能: 一 層:客廳、廚房、餐廳、臥室(衣帽間)、衛生間; 二 層:客廳、臥室(帶衣帽間)×2、臥室、衛生間、陽臺; 三 層:、臥室(帶衣帽間)×2、臥室、衛生間、露臺;
一層平面圖
二層平面圖
三層平面圖 第四套
正面效果圖
鳥瞰效果圖
背面效果圖 占地面積:11.7m*11.2m,一層占地110平方米左右; 建筑層高:三層; 建筑高度:12.29米(含屋頂); 設計功能: 一 層:客廳、廚房、餐廳、臥室、衛生間、洗衣房; 二 層:活動室、臥室(帶衛生間)、臥室x3、衛生間、露臺; 三 層:活動室、主臥(帶衛生間、衣帽間)、臥室、衛生間、大露臺;
一層平面圖
二層平面圖
三層平面圖 第五套
正面效果圖
鳥瞰效果圖
背面效果圖 占地面積:10.8m*10.7m,一層占地120平方米左右; 建筑層高:三層; 建筑高度:12.8米(含屋頂); 設計功能: 一 層:客廳、廚房、餐廳、臥室×2、衛生間; 二 層:客廳上空、臥室(帶書房)、臥室(帶衛生間)、臥室、茶室、衛生間; 三 層:起居室、臥室×2、書房、衛生間、露臺;
一層平面圖
二層平面圖
三層平面圖 第六套
正面效果圖
鳥瞰效果圖
背面效果圖 占地面積:12.5m*11.0m,一層占地110平方米左右; 建筑層高:三層; 建筑高度:12.48米(含屋頂); 設計功能: 一 層:客廳、廚房、餐廳、臥室(帶衛生間)、洗衣間、衛生間; 二 層:客廳上空、家庭室、臥室(帶衣帽間、衛生間、露臺)、臥室(帶衛生間)、露臺; 三 層:臥室(帶衣帽間、衛生間)、臥室(帶衛生間、衣帽間、書房、露臺)、露臺;
一層平面圖
二層平面圖
三層平面圖 這六套別墅的設計圖,你最喜歡哪一套? 圖紙之家-專注農村別墅/自建房設計18年,集合國內200余位經驗豐富的設計師,被評為口碑最好的農村建筑設計公司! |

最新高端四層別墅外觀效果圖及全套設計圖,真土豪就這樣建
占地:174.08平方米
面寬20多米二層新中式雙拼別墅設計圖,外觀漂亮時尚
占地:246.66平方米左
農村自建三間三層樓房設計圖,帶露臺,經典實用
占地:135平方米
實用農村10萬一層小別墅戶型圖及圖紙,全套施工圖
占地:多種面積
網紅農村一層小別墅設計圖,建一層的必看
占地:多戶型可選
農村兩層半樓房設計圖,平面功能分區明確,布置合理
占地:180平方米
160平方米二層自建別墅設計施工建筑圖紙及效果圖,15x11米
占地:163平方米
農村三層兄弟雙拼別墅設計圖及效果圖片,14X12米自建戶型
占地:154平方米
農村四層樓房外形設計圖,主臥配有陽臺和衣帽間還有衛生間
占地:126平方米
80平方米新農村二層房屋設計圖紙,造價15萬左右
占地:80平方米
農村18萬元二層小樓圖紙,漂亮實用的農村二層樓房設計圖
占地:140平方米
鄉村兩層半別墅設計圖,一層160平,主體30萬左右
占地:168平方米左右
農村二層中式小三合院別墅全套設計圖,民族特色風格
占地:122平方米
農村二層半別墅設計圖,簡單實用,造價低
占地:140平方米
一層中式三合院別墅設計圖,白墻黛瓦引領潮流
占地:177.94平方米
農村三層半別墅設計圖及外觀效果圖,三層半樓房設計方案推薦
占地:100平方米
14米乘10米農村二層別墅新款,外觀對稱設計,經久耐看!
占地:140平方米
三層兄弟雙拼別墅設計方案,外觀大氣布局實用,住的舒服
占地:197.67平方米
性價比超高一層農村自建別墅設計圖,戶型耐看不用爬樓
占地:158.6平方米
農村一層四開間自建別墅,美麗住宅如詩如畫里15米乘10米
占地:142平方米
推薦:10套新農村自建房設計圖,2026年最新設計
閱讀次數:4825737次
100套鄉村別墅圖片大全,2026年最新設計
閱讀次數:2492203次
6款農村蓋一層平房的設計圖,10萬元就能建起來
閱讀次數:1852637次
這11個一層農村自建房別墅火爆了朋友圈!我最喜歡戶型十!你呢
閱讀次數:750268次
農村6萬元建一層小別墅圖,你敢相信嗎
閱讀次數:567686次
農村5萬塊就能自建房,6套普通房子設計圖分享,你沒看錯!
閱讀次數:419410次
8套農村漂亮三間平房圖片,非常適合在農村修建!
閱讀次數:411197次
農村自建房化糞池怎么做?附方案及施工過程
閱讀次數:391783次
農村一層三間平房設計圖,告別土氣養老房,讓人忍不住點贊
閱讀次數:350581次
新農村二層樓房圖片造價12萬,挑一套回家建房吧!
閱讀次數:349126次
