圖紙介紹:本方案為農村自建三間三層樓房設計圖,帶露臺,空間利用率比較高,二層有個臥室帶書房,三層主臥帶露臺、帶衣帽間和衛生間,戶型經典、實用,住起來很舒服。
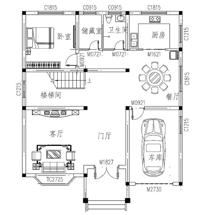
占地面積:11.2m*12.2m,135平方米左右;
建筑層高:三層;
建筑高度:12.70米(含屋頂);
設計功能:
一 層:門廳、客廳、餐廳、廚房、車庫、儲藏間、衛生間、臥室、樓梯間;
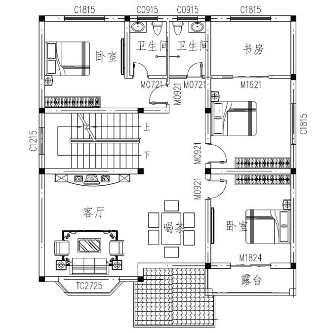
二 層:客廳、主臥(帶衛生間)、臥室(帶書房)、臥室、衛生間、露臺;
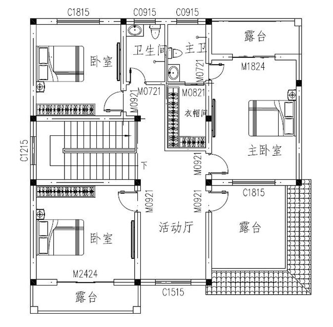
三 層:活動廳、主臥(帶衛生間、衣帽間和露臺)、臥室x2、露臺;
圖紙目錄:
建 筑 圖:建筑設計說明、一層平面圖、二層平面圖、三層平面圖、屋頂平面圖、正立面圖、背立面圖、左立面圖、右立面圖、1-1剖面圖、樓梯大樣圖、節點大樣圖、門窗表;
結 構 圖:結構設計說明、基礎平面布置圖、一層頂梁結構平面圖、一層頂板結構平面圖、二層頂梁結構平面圖、二層頂板結構平面圖、閣樓層梁結構平面圖、閣樓層板結構平面圖、坡屋頂梁結構平面圖、坡屋頂板結構平面圖、樓梯配筋大樣圖、節點大樣圖;
給排水圖:給排水設計說明、一層給排水平面圖、二層給排水平面圖、三層給排水平面圖、屋頂給排水平面圖、給排水系統圖;
電 氣 圖:電氣設計說明、配電系統圖、弱電系統圖、一層照明平面圖、二層照明平面圖、三層照明平面圖、一層插座平面圖、二層插座平面圖、三層插座平面圖、一層弱電平面圖、二層弱電平面圖、三層弱電平面圖、基礎接地平面圖、屋頂防雷平面圖;


































































































