項目名稱:北京順義龍灣屯別墅
建筑面積:240㎡
基地面積:665.7㎡
建筑尺寸:14.5mX11m
占地面積:136㎡
戶型概況:4室2廳4衛1廚1書房1儲物室1起居室
建筑結構:磚混結構
主創建筑師:錢帥
工程造價:35萬
項目概況
總平面示意圖
整體來說,該項目的基地情況較為簡單。
業主家的基地位于后院,前院是姐姐家的宅基地。基地的南側和東側是道路,西側和北側是鄰居的住宅。業主家宅基地較大,鄰居的住宅對于業主家建筑影響較小。
圖紙設計
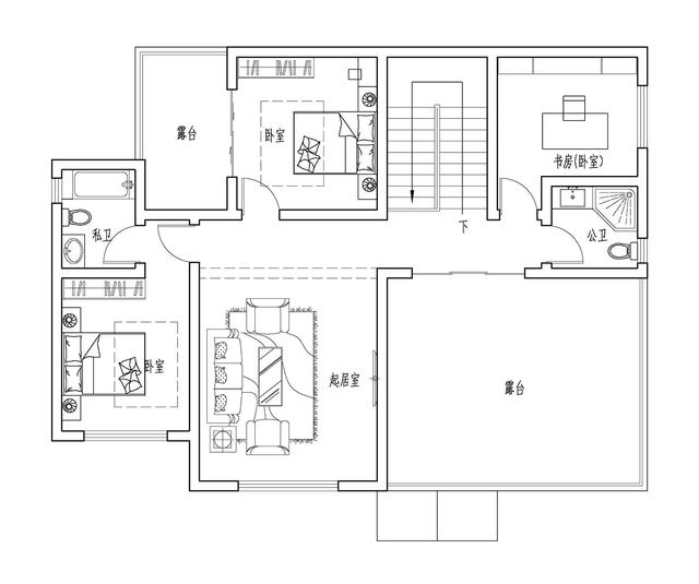
一層平面圖
一層入戶位置的玄關通過博古架的設計將空間延伸,使得入戶位置更通透大氣。一層主臥設計在東南角,廚房、餐廳、儲物間等輔助空間放在北側。客廳和餐廳之間沒有遮擋,讓業主一家在使用觀感上更舒適。
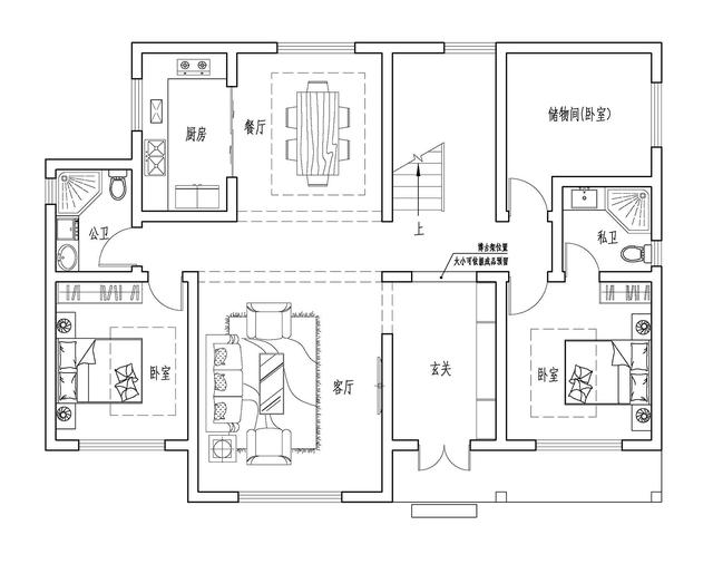
二層平面圖
二層在西北和東南角分別有一大一小兩個露臺。大露臺與二層走廊相連,讓整層的采光更好。小露臺與北側臥室相連,幫助臥室采光和通風。大面積的露臺讓房屋的觀景角度十分全面。
整個平面設計中,一層的公衛在西側,二層則將公衛調整到東側。主要是考慮到露臺和房間的布置,為了業主一家人使用更方便進行的調整。
造型設計
建筑為歐式風格。外墻顏色選擇暖色調,讓整體建筑在感覺上更柔和、典雅。下深上淺的配色與深色屋頂賦予了建筑穩重感。
大面積的窗戶使得房間的采光和通風能力都十分良好。弧形的窗戶將建筑在高度上拉伸,讓建筑看起來更舒服。
人視圖
入戶位置的雨棚設計為人字頂,與建筑整體的坡屋頂相呼應,實用又美觀。
東南側效果圖
踢線位置選擇黃色的磚石裝飾,既能保護建筑的底部,造型上又十分美觀,一舉兩得。
西南側效果圖
建筑一層和二層窗戶設計有鐵藝花臺。繁復的花紋和鮮花的多彩十分和諧。花臺也使得建筑整體更為優雅華麗。
庭院效果圖
庭院景觀方面主要是通過顏色不一的植物豐富視覺感官。空間方面通過磚鋪路面劃分為休閑觀景和行車空間兩個區域。
露臺效果圖
二層位置的露臺運用石膏造型護欄,使用時更安全,造型上與立柱的石膏線條相統一。讓建筑每個部位的聯系更緊密。
北立面圖
東立面圖
南立面圖
西立面圖







































