
|
你心目中的理想居所是什么樣子,要有體面大氣的外觀設計,要有優雅明快的內飾格調,今天帶大家看看這款二層別墅,外觀線條精致大氣,內部帶挑高客廳和衣帽間,實用又上檔次,是享受鄉村時光的美好居所
沿用一貫歐式華麗大氣的外觀,精美雅致的配色,通過造型柱和線條的搭配,巧妙的實現建筑的品質,無一處不在襯托房主的品味。
一層設大堂、客廳、廚房、餐廳、兩個臥室、一間衛生間、一個陽臺。 一層為待客空間,入戶即是門廳,隔斷視線避免入戶見廳兼顧藏風聚氣的風水效果。 客廳上方作挑高設計,橫縱向空間得到延伸,進門就能感覺到書香府邸的氣派體面,臨靠南面大落地窗,窗外還盛開著在花壇精心種下的嬌艷花朵,拉開窗簾引景入室,盡享品質生活。
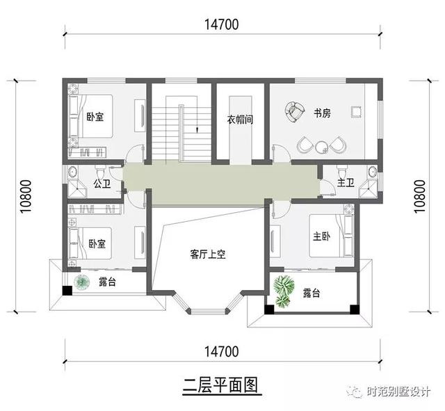
二層設起居室、書房、3個臥室、倆間衛生間、一個陽臺,一個衣帽間,可以為主人最愛的衣物服裝提供專屬的小天地 一層的客廳上方做了挑空設計,加大了整體的視覺效果,保證屋內陽光充足與通風穩定,非常高端大氣上檔次。 區分而開的書房設計,可以使主人工作和孩子學習兩不耽誤,重視教育的家庭中都比較愿意這么設計。 朝南陽臺方便晾曬家中衣物,也可以開闊視野,作為觀景平臺使用。 現場實拍:
現場實拍:2
現場實拍:3
現場實拍:4
室內示例:臥室:
衣帽間:
圖紙之家-專注農村別墅/自建房設計18年,集合國內200余位經驗豐富的設計師,被評為口碑最好的農村建筑設計公司! |

獨立餐廳廚房,平屋頂現代風格三層別墅設計圖
占地:159.02平方米
農村自建房就選它!一層新中式設計,日常居住需求全搞定
占地:128.45平方米
農村養老房還是一層好,帶閣樓的一層房子設計圖
占地:135平方米
新農村復試兩層半樓房設計圖,帶大露臺,簡單經濟實用大氣
占地:190平方米
三層新農村140平方米房屋設計圖紙,全套施工圖及效果圖
占地:140平方米
驚艷全村的三層別墅設計圖,12×16米美觀大氣布局超合理
占地:179.8平方米
簡歐風格二層別墅設計圖,經典不過時大氣時尚,漂亮的不像話!
占地:205.68平方米
新農村三層別墅設計圖紙及效果圖,全套cad建筑圖
占地:119平方米
250平方米農村三層別墅設計圖紙及效果圖大全,18.3x15米
占地:247平方米
3款簡單舒適二層別墅設計圖,低調配色,造型簡單大氣
占地:多戶型可選
復式、旋轉樓梯三層別墅設計方案圖,戶型合理、實用
占地:138平方米
農村15萬元二層小樓設計圖,外觀簡潔、樸素,造價低
占地:138平方米
農村三間二層別墅設計圖,外觀簡約左右對稱
占地:170.06平方米
網紅農村一層小別墅設計圖,建一層的必看
占地:多戶型可選
三層新農村住宅設計圖及效果圖,三層樓房設計圖展示
占地:140平方米
農村一層房屋設計圖,自建一層房子圖紙推薦
占地:200平方米
經典三層歐式造型別墅圖紙,功能房豐富,挑空客廳
占地:180平方米
120平米左右農村房屋設計圖占地面積適宜,外觀舒適大氣
占地:120平方米
30萬農村小別墅設計圖片,30萬別墅設計戶型推薦
占地:130平方米
最實用一層小別墅設計方案,造價不高顏值高,家家都喜歡!
占地:143.48平方米
推薦:10套新農村自建房設計圖,2026年最新設計
閱讀次數:4825737次
100套鄉村別墅圖片大全,2026年最新設計
閱讀次數:2492203次
6款農村蓋一層平房的設計圖,10萬元就能建起來
閱讀次數:1852637次
這11個一層農村自建房別墅火爆了朋友圈!我最喜歡戶型十!你呢
閱讀次數:750268次
農村6萬元建一層小別墅圖,你敢相信嗎
閱讀次數:567686次
農村5萬塊就能自建房,6套普通房子設計圖分享,你沒看錯!
閱讀次數:419410次
8套農村漂亮三間平房圖片,非常適合在農村修建!
閱讀次數:411197次
農村自建房化糞池怎么做?附方案及施工過程
閱讀次數:391783次
農村一層三間平房設計圖,告別土氣養老房,讓人忍不住點贊
閱讀次數:350581次
新農村二層樓房圖片造價12萬,挑一套回家建房吧!
閱讀次數:349126次
