項目概況
? 項目編號:P-20180702
? 項目名稱:江西九江楊家歐式別墅項目
? 建筑面積:292.52 ㎡
? 占地面積:103.56 ㎡
? 結構形式:框架結構
該項目位于山區,基地不規整,房屋朝向依山勢而定,住宅要尊重環境,與周圍環境相融合。
▲基地衛星截圖
▲基地衛星截圖
基地周邊房屋布局分散,依山勢道路修建,業主打算將基地一側老房拆除重建。
▲基地草圖
▲現場照片
▲現場照片
▲現場照片
▲現場照片
平面方案
該宅院設計整體布局依照老宅來做,大門、主體方位均不變,延續與周邊環境的關系。
▲總平面示意圖
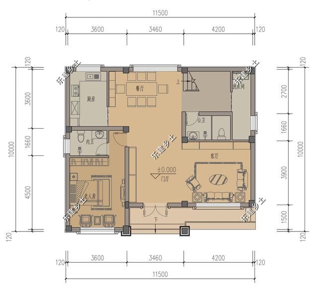
別墅為框架結構,布局更靈活。一層動線十分舒適,進門后設有門廳,作為室內外的緩沖空間,右側是客廳,作為接待客人以及日常活動場所。老人房設有獨立衛生間,居住便捷。
▲首層平面圖
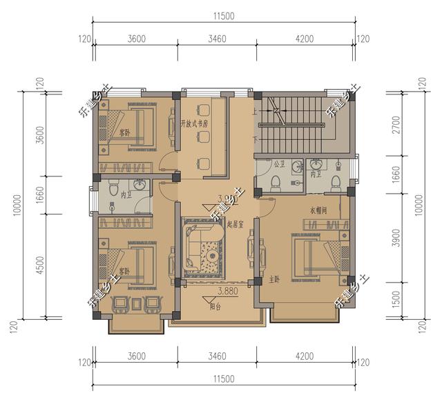
二層主要為居住空間,整層共有三間臥室,南向臥室均帶有獨立衛生間。中間設計有陽臺、起居室、開放式書房,開放式書房更加節省空間的同時也更加具有互動性,起居室連接著一個小陽臺,可以讓一家人在閑暇時分,在此喝茶、看書、聊天、賞景,呼吸庭院內的新鮮空氣,甚是愜意。
▲二層平面圖
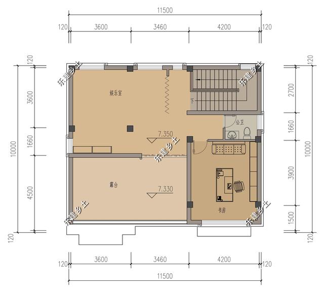
三層設有一間寬敞的娛樂室,一個大露臺及書房。露臺是室內和室外的交匯點,家庭娛樂室最有利于增加生活幸福感,在家中安設一些娛樂設備,在閑暇時用來放松身心。游戲、觀影、聽音樂,都是日常生活中極佳的放松方式。
▲三樓平面圖
采用坡屋頂設計,不積水,防水性能好,又有利于保溫隔熱。
▲屋頂層平面圖
外觀造型
建筑格局大氣沉穩,選用清透素雅的米黃色作為主色調,低調內斂,經典配色歷久彌新。紅色的屋頂和院內的綠植使整體的顏色不會過于單調。
大面積開窗,讓整個房子采光通透,陽光充沛。三樓的露臺既實用,又豐富了空間層次,使住宅外觀更加美觀。
院內景觀搭配弧形圍墻,別有一番趣味。
沒有過多的裝飾,一切從功能出發,講究造型比例適度、簡潔美觀。在家鄉建一棟房子其實是個不錯的選擇,既讓父母可以安享晚年,又可以滿足年輕人的詩和遠方







































