房屋概況:
- 房屋占地面積:166.7平方米
- 房屋建筑面積:604平方米
- 房屋層數:三層
- 結構形式:框架結構
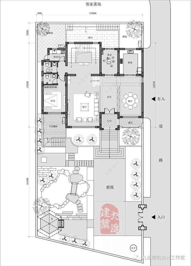
- 宅院尺度:面寬15.0米×進深12.6米
- 使用形式:自居
- 設計師:章工、張工
本案是福建某自建房設計,用地呈長方形,西側為鄰居房屋,東側平行村路,北側緊鄰菜地,設計前院空間很大,即便如此,為了考慮花園的完整性,將車庫設置在半地下室,充分利用空間;后院因高差原因,設計了平臺,便于茶室能夠延伸到室外空間,前院為增加采光及通風在西南角較隱蔽處設計一方下沉庭院,可以通過臺階上至前院。由于半地下室的設置以及車庫標高平行于路,室內自然呈現出高低差,這也為室內增加了空間層次感。
別墅外觀設計吸取了中西風格特點,結合中國人自己的生活習性,在這里特別給別墅設計了素雅色澤,但采用高檔的材料搭配,使之大氣有品質,摒棄一貫的‘鄉村歐’的靚麗色彩。讓別墅遠觀能融合于環境,近看細膩有品味。
▲入戶透視
▲院入透視
▲入戶小瞰
▲入院透視
▲主立面透視
平面設計
平面布置在一組以客廳和交通樓梯對稱的格局中安排各項功能,動靜相宜,私密劃分明確。由于半地下室及車庫的標高考量,使得房屋呈現多樣的室內外空間。
- 半地下室功能:健身房、影音室、酒窖、車庫,下沉庭院;
- 一層功能:公共區域、父母房、茶室、洗衣房等;
- 二層功能:主臥及次臥等;
- 三層功能:客房、景觀大陽臺等。
一層平面圖
二層平面圖
三層平面圖
半地下平面圖
建一座別墅和建群組別墅,呈現的效果會截然不同,當下農村蓋房大多零散計劃,獨棟別墅往往需要顧及四個方位的造型,再由于占地所限,為增加更多的使用面積往往只能向高處發展,在當下農村尤其如此,因而建筑也會失去對土地的依附感,使得建筑不能很好的融合于環境,再加上有經濟條件的家庭更多的想著新房能夠鶴立雞群、脫穎而出,很少考慮從環境設計出發。因而,我們在設計時,對于用地較為充裕的,我們盡可能適當安排環境設計,為家園增添更多的綠色。
▲門庭透視
▲沿路透視
▲建筑表情特寫
▲臨路車庫
▲建筑一角
▲院門透視
▲正視圖
▲側視圖
▲背視圖
花園布置
在滿足宅基落地的情況下,能有條件布置一組溫馨的花園,再合適不過了,不同的建筑風格同樣配以適宜的景觀,在自建房屋中,其實也無需設計復雜過于矯揉造作的花園,其實整潔清新的簡約的安排,賦予適當的休閑功能也是不錯的選擇。
▲鳥瞰圖
▲下沉庭院







































