
|
隨著農村經濟發展越來越快,農村別墅也越來越多。想要在郊區或者農村自建一棟別墅,那么什么樣的農村別墅效果圖比較好呢?如何讓自己的農村別墅效果圖裝修設計起來更加高端大氣凸顯身份呢? 趕緊來看看以下幾款農村別墅戶型吧,是否有你喜歡的類型呢?
戶型一: 規格:11米×11.6米
▲外觀效果
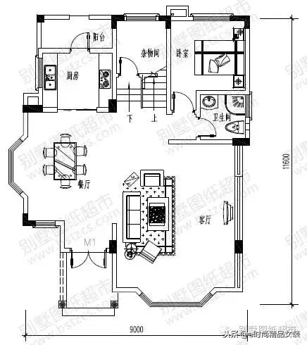
▲一層平面 戶型二: 規格:11米×10.08米
▲外觀效果
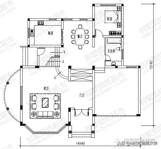
▲一層平面 戶型三: 規格:14.94米×15.14米
▲外觀效果
▲一層平面 戶型四: 規格:9米×11.6米
▲外觀效果
▲一層平面 戶型五: 規格:10.8米×12.1米
▲外觀效果
▲一層平面 戶型六: 規格:14.4米×14.02米點這免費下載施工技術資料
▲外觀效果
▲一層平面 戶型七: 規格:12米×10.8米
▲外觀效果
▲一層平面 或許一部分建房者還是選擇建造經濟實用型農村小別墅,但隨著社會的發展,多種風格類型的農村別墅會越來越多,這也將是農村建房的潮流所在! 隨著房價的不斷增長,越來越多的人選擇自建房,自建房經濟實惠面積大住著舒服,外觀十分漂亮,對于年輕的一代,建造鄉村小別墅確實是一個不錯的選擇。 圖紙之家-專注農村別墅/自建房設計18年,集合國內200余位經驗豐富的設計師,被評為口碑最好的農村建筑設計公司! |

中式古風別墅設計圖,一層三合院設計,經濟舒適,時尚與傳統的
占地:275.7平方米
300平四層別墅房屋設計圖,含外觀效果圖,大面積、多臥室
占地:261平方米
大開間小進深的一層別墅設計圖,進深僅8.7米,獨立餐廚照樣美觀
占地:130.32平方米
農村實用三層樓房外觀圖片+全套施工設計圖
占地:106平方米
農村一層中式別墅設計圖,經典大氣,布局舒適,面寬20米
占地:192.92平方米
2026帶車庫三層雙拼別墅房屋設計圖,配色淡雅低調
占地:224平方米
二層農村房屋設計圖紙,帶效果圖和全套施工方案圖
占地:多種戶型
帶車庫的農村四合院別墅設計圖,富貴人家的象征,日子越過越興
占地:219.24平方米
小戶型三層別墅房屋設計圖紙,占地80多平米,麻雀雖小五臟俱全
占地:80平方米
140平方米新農村二層自建平屋頂房屋設計圖紙帶外觀效果圖
占地:140平方米左右
農村自建房三間設計圖,花錢少效果好12米乘9米,經濟適用性價比
占地:108.9平方米
復式三層別墅設計圖片及全套圖紙,客廳中空,外觀為歐式建筑的
占地:175平方米
二層樓房圖片及施工圖紙,占地160平米左右,帶車庫
占地:160平方米
歐式風二層別墅設計圖,帶陽光房設計,時尚美觀還很實用
占地:多戶型可選
130平新農村三層房屋設計圖紙,預算30萬以內,蓋房推薦
占地:132平方米
兄弟合建房新農村三層雙拼別墅建筑圖紙及效果圖,300平方米
占地:301平方米
南方新農村三層別墅設計圖紙,含效果圖,帶車庫
占地:120平方米
鄉村一層帶閣樓歐式小別墅,“L”型七字設計戶型
占地:194.218平方米
120平方米現代新農村二層自建房設計圖,造型時尚好看
占地:120平方米
新農村私人別墅建筑設計施工圖,全套別墅設計圖紙
占地:多種戶型
推薦:10套新農村自建房設計圖,2026年最新設計
閱讀次數:4825737次
100套鄉村別墅圖片大全,2026年最新設計
閱讀次數:2492203次
6款農村蓋一層平房的設計圖,10萬元就能建起來
閱讀次數:1852637次
這11個一層農村自建房別墅火爆了朋友圈!我最喜歡戶型十!你呢
閱讀次數:750268次
農村6萬元建一層小別墅圖,你敢相信嗎
閱讀次數:567686次
農村5萬塊就能自建房,6套普通房子設計圖分享,你沒看錯!
閱讀次數:419410次
8套農村漂亮三間平房圖片,非常適合在農村修建!
閱讀次數:411197次
農村自建房化糞池怎么做?附方案及施工過程
閱讀次數:391783次
農村一層三間平房設計圖,告別土氣養老房,讓人忍不住點贊
閱讀次數:350581次
新農村二層樓房圖片造價12萬,挑一套回家建房吧!
閱讀次數:349126次
