
|
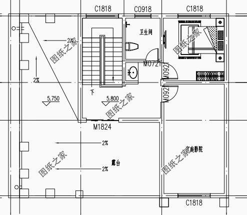
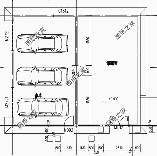
第一款:一層農村房子設計圖,含外觀效果圖![]() 圖紙介紹:本戶型為現代一層農村房子設計圖,含效果圖,外觀現代、漂亮,戶型房間多,功能齊全。 占地面積:20.0m*10.0m,200平方米左右; 建筑層高:一層; 建筑高度:6.0米(含屋頂); 設計功能: 一層戶型設計:正堂、客廳、餐廳、廚房、臥室x4(其中2個帶衛生間)、棋牌室、衣帽間、鍋爐房(可做儲藏間)、衛生間; ![]() 第二款:130平氣派美觀的二層別墅房屋設計圖,含效果圖![]() 圖紙介紹:本方案為130平氣派美觀的二層別墅房屋設計圖,含效果圖,面積適中,戶型經典,客廳、餐廳通透,給人感覺空間大,敞亮。 占地面積:12.00m*10.80m,130平方米左右; 建筑層高:二層; 建筑高度:9.06米(含屋頂); 設計功能: 一層戶型:玄關、客廳、餐廳、廚房、衛生間、臥室(衛生間)、儲藏間(樓梯下面); 二層戶型:客廳、主臥(帶衛生間和書房或衣帽間)、臥室x2、衛生間、露臺、陽臺; ![]() ![]() 第三款:泰式風格三層小別墅設計圖,帶車庫和露臺 |

經典小戶型二層新農村房屋設計圖紙,客廳中空,造價20萬
占地:94平方米
農村大戶型中式二層四合院別墅設計圖含外觀效果圖,戶型經典、
占地:464平方米
農村二層樓建房造型圖及全套施工圖紙,占地110平米左右,帶地下
占地:110平方米
新農村四合院別墅圖片及戶型方案圖,全套圖紙可施工
占地:154平方米左右
鄉村簡約經濟型二層別墅設計圖紙(效果圖+全套施工方案)
占地:145平方米
面寬9米的三層農村自建房設計圖,適合鄉下地區自建
占地:121.94平方米
18米寬一層中式小院設計圖,三合院戶型布局寬敞大氣
占地:232.75平方米
170平方米歐式農村兩層小別墅設計圖紙帶外觀圖,精致好看
占地:多種戶型
自建帶電梯的三層豪華別墅設計圖,建好有面子,面寬16米
占地:194平方米左右
農村中式二層4開間別墅圖紙設計方案圖,帶車庫戶型
占地:198平方米
100平新農村三層復式房屋別墅設計圖紙,造價30萬左右
占地:106平方米
小占地二層徽派別墅設計圖,白墻黛瓦韻味十足,太氣派了
占地:89.6平方米
占地105平實用三層樓房別墅設計圖紙,造型方正簡單大氣
占地:105平方米
私人經濟小別墅設計圖,農村自建小洋樓100平左右戶型
占地:104平方米
進深14米的二層小別墅設計圖,農村自建房好方案
占地:144平方米左右
兄弟雙拼四間三層別墅設計圖,農村自建推薦戶型方案
占地:260平方米
高端大氣四層復式別墅房屋設計圖,含外觀效果圖
占地:270平方米
簡單大氣農村兄弟三層雙拼別墅住宅設計圖,13X8米
占地:110平方米左右
四合院別墅設計效果圖及平面圖,全套施工圖紙
占地:220平方米
經典三層農村房屋設計圖紙,占地100平米左右,外觀典雅精致,內
占地:100平方米
推薦:10套新農村自建房設計圖,2026年最新設計
閱讀次數:4825737次
100套鄉村別墅圖片大全,2026年最新設計
閱讀次數:2492203次
6款農村蓋一層平房的設計圖,10萬元就能建起來
閱讀次數:1852637次
這11個一層農村自建房別墅火爆了朋友圈!我最喜歡戶型十!你呢
閱讀次數:750268次
農村6萬元建一層小別墅圖,你敢相信嗎
閱讀次數:567686次
農村5萬塊就能自建房,6套普通房子設計圖分享,你沒看錯!
閱讀次數:419410次
8套農村漂亮三間平房圖片,非常適合在農村修建!
閱讀次數:411197次
農村自建房化糞池怎么做?附方案及施工過程
閱讀次數:391783次
農村一層三間平房設計圖,告別土氣養老房,讓人忍不住點贊
閱讀次數:350581次
新農村二層樓房圖片造價12萬,挑一套回家建房吧!
閱讀次數:349126次
