
|
在農村,小面寬的宅基地也是很常見的,尤其是現在自建房的人越來越多,很多原來不受歡迎的宅基地也被大家利用了起來。那些宅基地面積比較小的家庭,只要找到科學合理的設計方案,也能建成漂亮的小別墅,給我們最佳的生活體驗。 接下來給大家分享2套8X15米三層別墅設計,歐式和中式風格各一套,你覺得怎么樣? 第一套
正面效果圖
背面效果圖
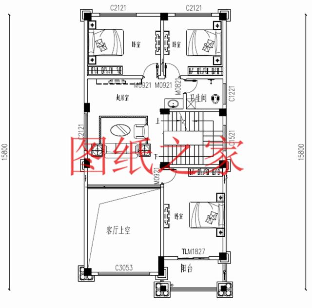
鳥瞰效果圖 占地面積:8.0m*15.8m,一層占地120平方米左右; 建筑層高:三層; 建筑高度:13.6米(含屋頂); 設計功能: 一 層:客廳、廚房、餐廳、臥室、衛生間; 二 層:客廳上空、起居室、臥室x3、衛生間、陽臺; 三 層:起居室、臥室x2、衛生間、大露臺、涼亭;
一層平面圖
二層平面圖
三層平面圖 第二套
別墅效果圖 占地面積:8m*14.8m,帶院子占地120平方米左右; 建筑層高:三層; 建筑高度:11.1米(含屋頂); 設計功能: 一 層:客廳、餐廳、廚房、臥室、衛生間、前院、側院、農具間(儲藏間)、車庫; 二 層:主臥(帶衛生間)、臥室x2、衛生間、儲藏間、露臺; 三 層:主臥(帶衛生間)、臥室x2、衛生間、露臺;
一層平面圖
二層平面圖
三層平面圖 這幾套別墅的設計圖,你最喜歡哪一套? 圖紙之家-專注農村別墅/自建房設計18年,集合國內200余位經驗豐富的設計師,被評為口碑最好的農村建筑設計公司! |

時尚二層現代風別墅設計圖紙,平屋頂方案13×10米
占地:98平方米
180平方米新農村三層別墅設計圖紙,效果圖+全套cad施工圖
占地:180平方米
三層蓋房子歐式挑空客廳別墅設計圖,外觀漂亮戶型實用
占地:多種戶型
70平農村小戶型二層別墅設計圖,小宅基地的福音
占地:70平方米
12x12農村三層別墅設計圖,自建房屋推薦戶型
占地:148平方米
占地百平農村三層戶型方案,簡約實用,獨具特色,理想新居等你
占地:105.61平方米
三層樓房設計圖紙含效果圖,外觀造型高低錯落,別致大方
占地:152.4平方米
偏中式徽派的二層房屋農村別墅設計圖,馬頭墻小青瓦
占地:123.36平方米
新中式別墅一層自建房設計,戶型實用緊湊
占地:170.54平方米
最漂亮五間一層自建別墅設計圖,布局實用顏值高!
占地:多戶型可選
兩層平屋頂帶地下室別墅設計方案(全套自建房施工圖+效果圖)
占地:152.55平方米
農村四層樓房設計圖,含外觀圖片,自建四層房屋推薦
占地:140平方米
農村建房二樓設計圖,占地百平帶配房設計,顏值高布局好
占地:103.11平方米
簡約實用農村自建房戶型圖,美觀經濟又通透,南北通透住得爽!
占地:160.6平方米
高端大氣三層歐式別墅設計圖,客廳中空,旋轉樓梯
占地:150平方米
農村實用三層樓房圖片,占地140平米左右,客廳中空
占地:140平方米
面寬13米帶堂屋三層農村別墅圖,新中式大氣風格
占地:151.58平方米
帶地下室+挑空客廳,農村三層洋樓別墅誰家圖在
占地:97.74平方米
豪華復式三層別墅設計圖紙,效果圖+建筑施工圖+結構施工圖
占地:126平方米
210平米新農村自建二層施工圖紙,預留電梯位,美觀大氣舒適實用
占地:208.5平方米
推薦:10套新農村自建房設計圖,2026年最新設計
閱讀次數:4825737次
100套鄉村別墅圖片大全,2026年最新設計
閱讀次數:2492203次
6款農村蓋一層平房的設計圖,10萬元就能建起來
閱讀次數:1852637次
這11個一層農村自建房別墅火爆了朋友圈!我最喜歡戶型十!你呢
閱讀次數:750268次
農村6萬元建一層小別墅圖,你敢相信嗎
閱讀次數:567686次
農村5萬塊就能自建房,6套普通房子設計圖分享,你沒看錯!
閱讀次數:419410次
8套農村漂亮三間平房圖片,非常適合在農村修建!
閱讀次數:411197次
農村自建房化糞池怎么做?附方案及施工過程
閱讀次數:391783次
農村一層三間平房設計圖,告別土氣養老房,讓人忍不住點贊
閱讀次數:350581次
新農村二層樓房圖片造價12萬,挑一套回家建房吧!
閱讀次數:349126次
