
|
現在農村自建房的人越來越多,但是宅基地卻越來越小,很多人受限于宅基地的面積,只能修建那些小巧精致、簡單秀氣的戶型。但是兄弟倆修建一棟雙拼別墅,既能滿足自家的居住和生活需要,又能把別墅修建的美觀大氣,可以說是兩全其美。 今天給大家分享5套農村三層雙拼別墅設計,非常適合兄弟倆共同修建。 第一套
正面效果圖
背面效果圖
鳥瞰效果圖 占地面積:17.0m*12.0m,一層占地193平方米左右(含外門庭),單戶96平米左右; 建筑層高:三層; 建筑高度:14.2米(含屋頂); 設計功能: 一 層:堂屋、客廳、廚房、餐廳、臥室、衛生間; 二 層:起居室、臥室(帶書衛生間)、臥室、衛生間、陽臺; 三 層:起居室上空、臥室×2、衛生間、露臺;
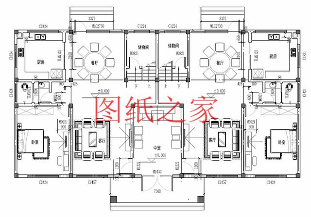
一層平面圖
二層平面圖
三層平面圖 第二套
正面效果圖
背面效果圖
鳥瞰效果圖 占地面積:22.2m*13.1m,250平方米左右,單戶125平左右; 建筑層高:三層; 建筑高度:12.2米(含屋頂); 設計功能: 一 層:中堂、客廳、餐廳、廚房、臥室、衛生間、儲藏間; 二 層:客廳上空、臥室×3、衛生間、共用(活動室、陽臺); 三 層:臥室、棋牌室、衛生間、露臺;
一層平面圖
二層平面圖
三層平面圖 第三套
正面效果圖
背面效果圖
鳥瞰效果圖 占地面積:20.0m*13.0m,260平方米左右(不含門廳),單戶130平左右; 建筑層高:三層; 建筑高度:12.9米(含屋頂); 設計功能: 一 層:宴會廳; 二 層(客廳、廚房、餐廳、臥室x3、衛生間、陽臺)×2; 三 層:大客廳、廚房、餐廳、臥室×4、書房、多功能區、衛生間×2;
一層平面圖
二層平面圖
三層平面圖 第四套
正面效果圖
背面效果圖
鳥瞰效果圖 占地面積:19.0m*15m,260平方米左右,單戶130平左右; 建筑層高:三層; 建筑高度:12.91米(含屋頂); 設計功能: 一 層:客廳、餐廳、廚房、臥室(帶衛生間)、臥室、衛生間; 二 層:客廳上空、臥室(帶衛生間)、臥室×2、衛生間;(另一戶客廳上空為客廳) 三 層:西戶:主臥(帶衛生間)臥室×2、露臺;東戶:小廚房、餐廳、活動廳、臥室×2、衛生間;
一層平面圖
二層平面圖
三層平面圖 第五套
正面效果圖
背面效果圖
鳥瞰效果圖 占地面積:19.5m*15.8m,270平方米左右; 建筑層高:三層; 建筑高度:13.09米(含屋頂); 設計功能: 一 層:大客廳共用、廚房×2、餐廳×2、臥室(帶衛生間)×2、臥室,工具間; 二 層:客廳、廚房、餐廳、臥室(帶衛生間)×2; 三 層:客廳、廚房、餐廳、臥室(帶衛生間)×2;
一層平面圖
二層平面圖
三層平面圖
圖紙之家-專注農村別墅/自建房設計18年,集合國內200余位經驗豐富的設計師,被評為口碑最好的農村建筑設計公司! |

100平客廳挑高三層樓房設計圖,復式結構
占地:100平方米
復式三層雙拼別墅設計圖,客廳中空,旋轉樓梯
占地:350平方米
新農村三拼別墅三戶連體別墅設計圖,設計新穎美觀
占地:380平方米
歐式風二層別墅設計圖,帶陽光房設計,時尚美觀還很實用
占地:多戶型可選
時尚二層現代風別墅設計圖紙,平屋頂方案13×10米
占地:98平方米
大戶型帶車庫的兩層農村自建房設計圖,施工簡單,戶型方正
占地:236平方米
簡單時尚二層住宅設計圖紙,簡單的設計,不平凡的視覺感受
占地:110平方米
精致典雅的90平和100平方米二層樓房圖紙,藏不住的經典
占地:多種戶型
100平方米二層中式小別墅設計圖紙級效果圖片
占地:99平方米
小戶型二層四合院別墅設計圖,含外觀效果圖,小宅基地選擇
占地:134平方米
110平左右三間兩層農村別墅房屋設計圖,含外觀效果圖
占地:107平方米
120平米三層小別墅設計方案和效果圖,端莊大氣很經典
占地:120平方米
新農村自建二層小樓圖,時尚大方,外型精美,室內布局也很贊
占地:137平方米
鄉下一層自建養老平房戶型圖及全套圖紙,占地面積200左右
占地:200平方米
100平方米新農村住宅二層小別墅設計CAD圖紙及效果圖,10x10米
占地:96平方米
2026二層農村新款別墅圖片及施工圖,新中式風格古典大氣
占地:200平方米
農村三層別墅設計圖紙,造價50萬左右,中式風格,沉穩內斂
占地:160平方米
新農村二層客廳挑高樓房設計圖,外觀歐式風格
占地:178平方米
歐式大氣三層小別墅設計圖紙,外觀、造型大方,色彩明快
占地:140平方米
簡單現代平屋頂兩層四間自建樓房設計圖紙施工方案,簡潔又實用
占地:192平方米
推薦:10套新農村自建房設計圖,2026年最新設計
閱讀次數:4825737次
100套鄉村別墅圖片大全,2026年最新設計
閱讀次數:2492203次
6款農村蓋一層平房的設計圖,10萬元就能建起來
閱讀次數:1852637次
這11個一層農村自建房別墅火爆了朋友圈!我最喜歡戶型十!你呢
閱讀次數:750268次
農村6萬元建一層小別墅圖,你敢相信嗎
閱讀次數:567686次
農村5萬塊就能自建房,6套普通房子設計圖分享,你沒看錯!
閱讀次數:419410次
8套農村漂亮三間平房圖片,非常適合在農村修建!
閱讀次數:411197次
農村自建房化糞池怎么做?附方案及施工過程
閱讀次數:391783次
農村一層三間平房設計圖,告別土氣養老房,讓人忍不住點贊
閱讀次數:350581次
新農村二層樓房圖片造價12萬,挑一套回家建房吧!
閱讀次數:349126次
