
|
大家對工作、生活的不懈追求才是自己進步的內在動力,在住房這個方面,大家也希望自家的房子能夠與眾不同,內外設計都足夠完善,不僅實用舒適,更能艷壓群芳。 今天給大家推薦6套農村二層別墅,占地160平米造價只要30萬,一起來看看吧! 第一套
正面效果圖
背面效果圖
鳥瞰效果圖 占地面積:13.5m*11.3m,160平方米左右(不含外廊); 建筑層高:二層; 建筑高度:10.5米(含屋頂); 設計功能: 一層戶型:客廳、餐廳、廚房、衛生間、臥室、棋牌室(衛生間)、樓梯間、車庫; 二層戶型:客廳上空、起居室、臥室(帶衛生間)、臥室×2、衛生間、書房; 閣樓戶型:閣樓、陽臺;
一層平面圖
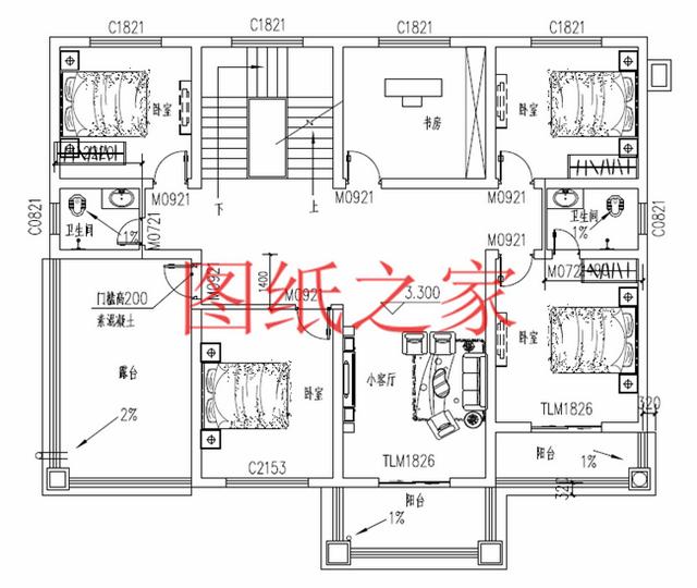
二層平面圖
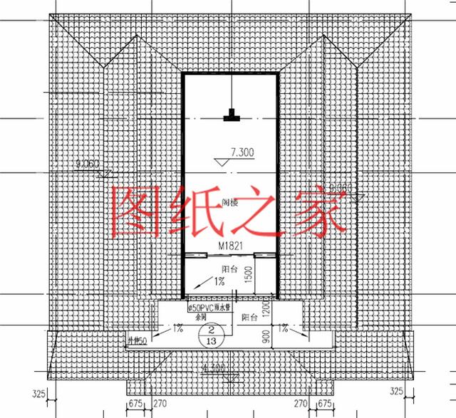
三層平面圖 第二套
正面效果圖
背面效果圖
鳥瞰效果圖 占地面積:12.5m*13.5m,168平方米左右; 建筑層高:二層; 建筑高度:9.5米(含屋頂); 設計功能: 一層戶型:客廳、餐廳、廚房、臥室×2、書房、衛生間; 二層戶型:臥室x3、衣帽間、衛生間、洗澡間、露臺×2;
一層平面圖
二層平面圖 第三套
正面效果圖
背面效果圖
鳥瞰效果圖 占地面積:15.8m*11m,占地170平方米左右; 建筑層高:二層; 建筑高度:9.6米(含屋頂); 設計功能: 一層戶型:客廳、餐廳、廚房、衛生間、臥室、娛樂室、茶室、儲藏間; 二層戶型:臥室×4、衛生間、露臺;
一層平面圖
二層平面圖 第四套
正面效果圖
背面效果圖
鳥瞰效果圖 占地面積:16.3m*11.0m,170平方米左右; 建筑層高:二層; 建筑高度:9.5米(含屋頂); 設計功能: 一層戶型:客廳、餐廳、廚房、臥室(帶衛生間)×2、衛生間、棋牌室; 二層戶型:起居室、主臥(帶書房和衛生間)、臥室(帶衛生)、臥室x2、衛生間、露臺;
一層平面圖
二層平面圖 第五套
正面效果圖
背面效果圖v
鳥瞰效果圖 占地面積:14.9m*13.0m,170平方米左右; 建筑層高:二層; 建筑高度:9.66米(含屋頂); 設計功能: 一層戶型:客廳、餐廳、廚房、衛生間、臥室、棋牌室、車庫、儲藏間; 二層戶型:小客廳、主臥(帶衛生間和陽臺)、臥室x2、衛生間、書房、露臺、陽臺;
一層平面圖
二層平面圖 第六套
正面效果圖
背面效果圖
鳥瞰效果圖 占地面積:15.2m*12.2m,170平方米左右; 建筑層高:二層; 建筑高度:8.8米(含屋頂); 設計功能: 一層戶型:客廳、餐廳、廚房、衛生間、主臥(帶衛生間)、臥室×2、樓梯間; 二層戶型:客廳、臥室x4、衛生間、洗衣房、陽臺、大露臺;
一層平面圖
二層平面圖
圖紙之家-專注農村別墅/自建房設計18年,集合國內200余位經驗豐富的設計師,被評為口碑最好的農村建筑設計公司! |

最新農村20萬元二層半別墅設計圖,占地僅110多平
占地:110平方米
170平方米新農村現代樓中樓三層別墅設計施工圖紙及效果圖
占地:170平方米
農村一層平房別墅設計圖,18米乘9米,實實在在的好戶型
占地:162平方米
三間三層樓房設計圖紙,復試的設計,漂亮的一塌糊涂
占地:175平方米
歐式風格三層別墅建筑設計圖,復式樓中樓結構
占地:138平方米
農村200平一層別墅房屋設計圖,外觀圖片時尚、漂亮
占地:200平方米
經典一層帶閣樓三合院別墅設計圖,18米乘9.5米
占地:118.63平方米
農村四層雙拼別墅房屋設計圖,造型現代、大氣
占地:220平方米
120平米三層小別墅設計方案和效果圖,端莊大氣很經典
占地:120平方米
二層農村雙拼別墅帶露臺設計圖,20×11.8米,單戶110平米
占地:220平方米
大氣的美式三層別墅設計圖,外觀效果圖氣派、美觀
占地:148平方米
最新小別墅設計圖,復式三層,外觀非常漂亮
占地:158平方米
新農村中式二層樓房設計圖紙及效果圖,125,150,170三個戶型可行
占地:多種戶型
好看又簡單的二層小樓設計圖,農村自建20萬元左右
占地:130平方米
歐式二層5大間別墅設計圖,新穎獨特的外觀,面寬20米
占地:180.14平方米
帶電梯的農村歐式雙拼三層豪宅別墅設計圖,樓梯電梯共用
占地:268.448平方米
面寬14.5米三層獨棟別墅設計圖,經典設計,大氣之作
占地:123.85平方米
新中式徽派帶露臺別墅設計圖,構思精巧,自然得體
占地:124.82平方米
新中式三層樓房設計圖,外觀精致布局也是相當的樸實
占地:140平方米
歐式風格高檔三層別墅設計圖紙,帶高清外觀效果圖
占地:105平方米
推薦:10套新農村自建房設計圖,2026年最新設計
閱讀次數:4825737次
100套鄉村別墅圖片大全,2026年最新設計
閱讀次數:2492203次
6款農村蓋一層平房的設計圖,10萬元就能建起來
閱讀次數:1852637次
這11個一層農村自建房別墅火爆了朋友圈!我最喜歡戶型十!你呢
閱讀次數:750268次
農村6萬元建一層小別墅圖,你敢相信嗎
閱讀次數:567686次
農村5萬塊就能自建房,6套普通房子設計圖分享,你沒看錯!
閱讀次數:419410次
8套農村漂亮三間平房圖片,非常適合在農村修建!
閱讀次數:411197次
農村自建房化糞池怎么做?附方案及施工過程
閱讀次數:391783次
農村一層三間平房設計圖,告別土氣養老房,讓人忍不住點贊
閱讀次數:350581次
新農村二層樓房圖片造價12萬,挑一套回家建房吧!
閱讀次數:349126次
