
|
對于農村的普通家庭來說,建一套房子可不容易,自己辛苦積攢下來的錢全都花費在上邊,所以更要慎重的選擇戶型,把錢花在刀刃上,才對得起自己多年辛苦的工作。 今天給大家推薦4套二層別墅,160平米造價30萬左右,簡約美觀、經濟實用,非常符合農村建房的實際需要,得到了大家的一致好評! 第一套
正面效果圖
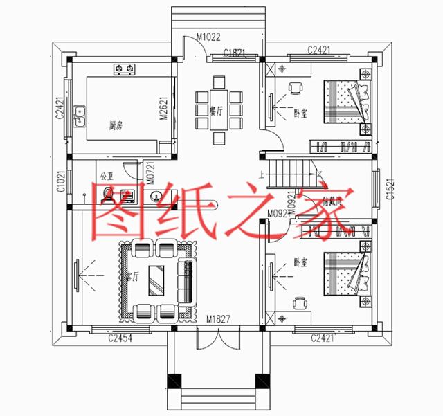
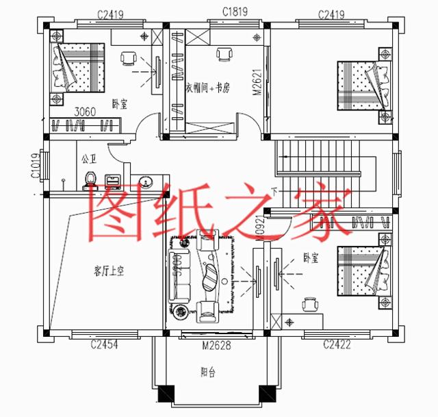
鳥瞰效果圖 占地面積:13.8m*12.0m,160平方米左右; 建筑層高:二層; 建筑高度:9.74米(含屋頂); 設計功能: 一層戶型:客廳、餐廳、廚房、臥室×2、衛生間、洗衣區; 二層戶型:起居室,臥室×3、棋牌室、衛生間、書房、露臺、陽臺;
一層平面圖
二層平面圖 第二套
正面效果圖
背面效果圖
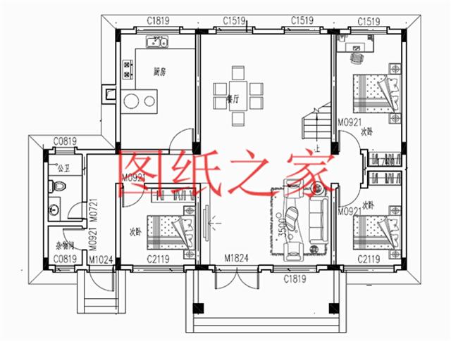
鳥瞰效果圖 占地面積:15.0m*11.8m,160平方米左右; 建筑層高:二層; 建筑高度:9.2米(含屋頂); 設計功能: 一層戶型:客廳、餐廳、廚房、衛生間、臥室×3、雜物間; 二層戶型:起居室、臥室x3、衛生間、陽臺、大露臺;
一層平面圖
二層平面圖 第三套
正面效果圖
背面效果圖
鳥瞰效果圖 占地面積:13.0m*13.9m,160平方米左右; 建筑層高:二層; 建筑高度:10.17米(含屋頂); 設計功能: 一層戶型:客廳、餐廳、廚房、衛生間、臥室x2、儲藏間; 二層戶型:客廳上空、客廳、臥室x3、衣帽間、衛生間、陽臺;
一層平面圖
二層平面圖 第四套
正面效果圖
背面效果圖
鳥瞰效果圖 占地面積:14.0m*11.8m,160平方米左右; 建筑層高:二層; 建筑高度:10.17米(含屋頂); 設計功能: 一層戶型:客廳、衛生間、主臥(帶衛生間)、臥室、車庫; 二層戶型:起居室、臥室(帶衛生間)x2、臥室、衛生間、露臺;
一層平面圖
二層平面圖
圖紙之家-專注農村別墅/自建房設計18年,集合國內200余位經驗豐富的設計師,被評為口碑最好的農村建筑設計公司! |

120平方米現代新農村二層自建房設計圖,造型時尚好看
占地:120平方米
80平方米二層房屋設計圖,造價10萬左右
占地:80平方米
農村二層半房子設計圖 ,占地110平米和160多平兩個戶型圖
占地:多種戶型
農村一層四開間養老別墅設計圖,造型美布局佳
占地:164.27平方米
農村25萬別墅款式二層自建房設計圖,外觀圖時尚
占地:115平方米
農村120方三層自建房子圖,好看又不貴的三層農村別墅
占地:120平方米
130平方米農村兩層別墅圖紙及效果圖12X11米
占地:133平方米
外觀造型對稱的二層別墅設計圖,老虎窗+挑空客廳
占地:175.2平方米
兄弟合建房新農村三層雙拼別墅建筑圖紙及效果圖,300平方米
占地:301平方米
26萬二層平頂別墅樓設計圖,客廳中空,占地120平米
占地:120平方米
小面寬大進深三層別墅圖紙設計,戶型非常實用經典
占地:171.39平方米
豪華大氣三層農村自建房設計圖,經典大氣,百看不厭,新中式風
占地:141.75平方米
簡約實用農村自建房戶型圖,美觀經濟又通透,南北通透住得爽!
占地:160.6平方米
新款三層豪華大氣歐式別墅設計圖,3種戶型設計方案
占地:125平方米左右
農村4間3層樓房設計圖,帶車庫,挑空客廳,坡屋頂設計
占地:160平方米
簡歐式三層半(4層)農村自建房別墅設計圖效果圖,帶車庫戶型
占地:127平方米
歐式三層農村別墅設計圖,占地130平方米自建房,低調又奢華鄉村
占地:129.8平方米
面寬15米大氣的農村二層復式戶型別墅設計圖紙及外觀圖片
占地:173.28平方米
經典小戶型二層新農村房屋設計圖紙,客廳中空,造價20萬
占地:94平方米
農村16萬一層平房小院設計圖,左右對稱布局好,南北方都能建
占地:195.9平方米
推薦:10套新農村自建房設計圖,2026年最新設計
閱讀次數:4825737次
100套鄉村別墅圖片大全,2026年最新設計
閱讀次數:2492203次
6款農村蓋一層平房的設計圖,10萬元就能建起來
閱讀次數:1852637次
這11個一層農村自建房別墅火爆了朋友圈!我最喜歡戶型十!你呢
閱讀次數:750268次
農村6萬元建一層小別墅圖,你敢相信嗎
閱讀次數:567686次
農村5萬塊就能自建房,6套普通房子設計圖分享,你沒看錯!
閱讀次數:419410次
8套農村漂亮三間平房圖片,非常適合在農村修建!
閱讀次數:411197次
農村自建房化糞池怎么做?附方案及施工過程
閱讀次數:391783次
農村一層三間平房設計圖,告別土氣養老房,讓人忍不住點贊
閱讀次數:350581次
新農村二層樓房圖片造價12萬,挑一套回家建房吧!
閱讀次數:349126次
