
|
現在各地區審批下來的宅基地面積越來越小,農村自建房的占地面積也收到了限制。如果家里宅基地的面積不夠大,完全可以修建一棟100平米左右的二層別墅,室內空間可以滿足普通家庭的生活需要,還可以通過露臺和陽臺來利用室外空間。 下邊給大家介紹5套小戶型獨棟二層別墅,占地就在100平米左右,時尚現代、溫馨宜居! 第一套
正面效果圖
背面效果圖
鳥瞰效果圖 占地面積:10.5m*9.9m,100平方米左右; 建筑層高:二層; 建筑高度:9.91米(含屋頂); 設計功能: 一層戶型:客廳、臥室x2、廚房、餐廳、衛生間 二層戶型:小客廳、臥室x4、衛生間、書房、陽臺
一層平面圖
二層平面圖 第二套
正面效果圖
背面效果圖
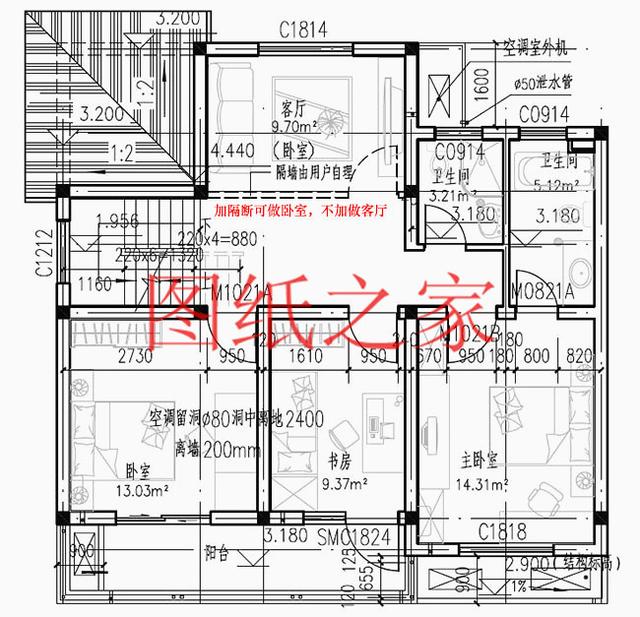
鳥瞰效果圖 占地面積:9.8m*12.0m,110平方米左右; 建筑層高:二層; 建筑高度:9.9米(含屋頂); 設計功能: 地下戶型:藏酒間、雜物間、書房、采光井X2 一層戶型:客廳、餐廳、廚房、衛生間、臥室(帶衛生間、衣帽間)、臥室; 二層戶型:臥室(帶衛生間、衣帽間)、衛生間、臥室X2、陽臺;
地下平面圖
一層平面圖
二層平面圖 第三套
正面效果圖
背面效果圖 占地面積:10.44m*9.14m,95平方米左右; 建筑層高:二層; 建筑高度:8米(含屋頂); 設計功能: 一層戶型:客廳、雜物間、餐廳、廚房、儲藏室、衛生間、老人房 二層戶型:主臥(帶衛生間)、書房、臥室、衛生間、客廳、陽臺
一層平面圖
二層平面圖 第四套
別墅效果圖 占地面積:11.6m*9.1m,105平方米左右; 建筑層高:二層; 建筑高度:9.31米(含屋頂); 設計功能: 一層戶型:客廳、臥室、廚房、餐廳、衛生間、儲物間 二層戶型:臥室x3、衛生間、大露臺、陽臺
一層平面圖
二層平面圖 第五套
別墅效果圖 占地面積:12.90m*8.2m,105平方米左右; 建筑層高:二層; 建筑高度:9.14米(含屋頂); 設計功能: 一層戶型:客廳、餐廳、廚房、衛生間、臥室、儲藏間、車庫; 二層戶型:臥室(帶衣帽間、衛生間)、臥室(帶衣帽間、衛生間)、露臺;
一層平面圖
二層平面圖 這幾套別墅的設計圖,你最喜歡哪一套? 圖紙之家-專注農村別墅/自建房設計18年,集合國內200余位經驗豐富的設計師,被評為口碑最好的農村建筑設計公司! |

最好看的新款農村三層復式別墅設計圖片及設計圖,外觀高端、大
占地:160平方米
農村建房二樓設計圖,占地百平帶配房設計,顏值高布局好
占地:103.11平方米
帶地下室+挑空客廳,農村三層洋樓別墅誰家圖在
占地:97.74平方米
農村二層住宅樓圖紙及效果圖,帶地下室,戶型好
占地:220平方米
115平旋轉樓梯三層復式別墅房屋設計圖,含外觀效果圖
占地:115平方米
170平方米農村二層小別墅設計圖及效果圖
占地:170平方米
農村三層15萬自建房圖,小戶型別墅設計方案圖
占地:60平方米
最實用一層小別墅設計方案,造價不高顏值高,家家都喜歡!
占地:143.48平方米
230平方農村雙拼別墅設計圖,26x11米自建房屋戶型
占地:230平方米
帶小院新農村房屋設計圖紙,三層別墅推薦
占地:115平方米
新款現代一層小別墅設計圖,農村自建平房推薦戶型
占地:多戶型可選
最新五十萬農村二層別墅設計圖紙,客廳中空
占地:195平方米
160平方米二層小別墅設計圖紙及效果圖大全,12X13米
占地:162平方米
豪華大氣農村三層別墅圖紙,帶車庫、露臺,占地200平方米左右
占地:207平方米
130平方米湖南二層復式自建房屋設計圖紙12x11米
占地:128平方米
80-90平米自建樓房設計圖,農村小別墅經典戶型圖
占地:86平方米
100平方米自建房二層設計圖紙及效果圖,12x9米
占地:100平方米
200平方米穩重大氣三層雙拼別墅建筑設計圖紙,含效果圖19.04米
占地:200平方米
帶車庫鄉下雙拼別墅設計圖,三層造型漂亮大全
占地:256平方米
經典的農村三層小樓房設計圖,外觀圖片時尚、精致
占地:100平方米
推薦:10套新農村自建房設計圖,2026年最新設計
閱讀次數:4825737次
100套鄉村別墅圖片大全,2026年最新設計
閱讀次數:2492203次
6款農村蓋一層平房的設計圖,10萬元就能建起來
閱讀次數:1852637次
這11個一層農村自建房別墅火爆了朋友圈!我最喜歡戶型十!你呢
閱讀次數:750268次
農村6萬元建一層小別墅圖,你敢相信嗎
閱讀次數:567686次
農村5萬塊就能自建房,6套普通房子設計圖分享,你沒看錯!
閱讀次數:419410次
8套農村漂亮三間平房圖片,非常適合在農村修建!
閱讀次數:411197次
農村自建房化糞池怎么做?附方案及施工過程
閱讀次數:391783次
農村一層三間平房設計圖,告別土氣養老房,讓人忍不住點贊
閱讀次數:350581次
新農村二層樓房圖片造價12萬,挑一套回家建房吧!
閱讀次數:349126次
