
|
現在在農村很多人都開始建起了自建房,有的因為家宅的地基小而考慮如何將房子建的大氣問題而煩惱,確實也是的,一個房子如果做到不美觀,那可就是幾十年的遺憾,每天進出家門,如果沒有經過深思考慮,建出自己不喜歡的房型,真的是很窩心的,今天小編推薦二款經典別墅,只所以說經典,總歸是經典住時時間的考驗的,希望大家能夠喜歡。 款式一 本款戶型外墻采用深色小瓷磚和文化石做搭配,透著一種文化韻味和自然的氣息,深顏色的搭配更加的經久耐看,多層次的坡屋頂增加了別墅的層次感,整體造型提升了房子的價值,主人的品位。
開間:11.4米,進深:10.3米;占地面積:117平方米;建筑面積:234.8平方米;結構類型:磚混結構;參考造價:25萬左右
一層設有客廳,廚房,餐廳,洗手間,臥室,衛生間。整體布局簡單,臥室適合給年長的老人居住,方便日常進出。長走廊可以放置收納柜,下雨時可以擺放雨傘,避免將室內地板弄潮。
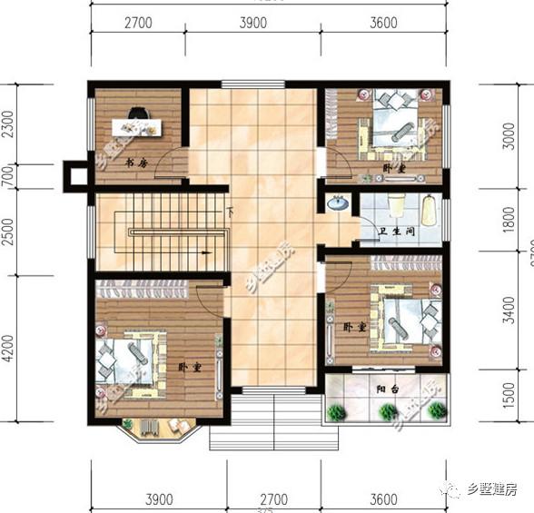
二層設有3間臥室,客廳,書房,陽臺,洗手間。客廳與陽臺相連,采光和通風效果好。書房與臥室相連,方便日常生活起居。
款式二 本款戶型偏向田園風格,外墻采用棕色小瓷磚和白色真石漆做搭配,經久耐看,采用坡屋頂設計,讓外觀造型簡潔大方,簡約而不落俗套,時尚而精致。
占地尺寸:10.2X9.7米;占地面積:96.6平方米;建筑面積:193.2平方米;結構類型:磚混結構;建筑層數:2層;
一層設有客廳,廚房,餐廳,2間臥室,衛生間。
二層設有3間臥室,書房,衛生間,陽臺。
這樣的經典小戶型別墅,你們喜歡嗎? 圖紙之家-專注農村別墅/自建房設計18年,集合國內200余位經驗豐富的設計師,被評為口碑最好的農村建筑設計公司! |

110平左右三間兩層農村別墅房屋設計圖,含外觀效果圖
占地:107平方米
歐式二層別墅平面圖,全套cad設計圖紙和外觀效果圖
占地:202平方米
農村10萬自建一層平房設計圖,占地面積120平米
占地:120平方米
最新歐式三層別墅設計圖紙,超漂亮,預算30到40萬
占地:160平方米
經濟、不張揚!簡單二層別墅設計圖,農村建房直接抄作業
占地:198.58平方米
農村超級好看的現代風格兩層小樓圖,清新優雅
占地:多種戶型
戳中年輕人喜好!時尚三層自建房,簡約時尚設計,住著舒適自然
占地:169.76平方米
時尚現代的二層農村別墅設計圖,年輕人建房的不二之選
占地:131.76平方米
造價12萬一層簡單自建房設計戶型圖,占地面積140平方米左右
占地:137.76平方米
七字型設計新中式一層別墅設計圖,類合院風格
占地:267.3平方米
一層三間別墅設計圖,經濟實用 + 好看不貴,養老自住都適配
占地:119.31平方米
160平方米現代新農村四合院兩層別墅施工圖紙及效果圖
占地:157平方米
適合農村建造的二層房屋設計圖紙及效果圖,帶悶頂層,占地15
占地:150平方米
預算30萬左右的新農村三層房屋設計圖推薦,含外觀效果圖
占地:117平方米
高端三層帶地下室別墅房屋設計圖方案及效果圖
占地:135平方米
二層自建房子最新款設計圖,平屋頂簡約經濟,美觀不失大方。
占地:115.64平方米
農村自建房鄉村超現代平屋頂二層別墅圖設計方案,造價低,施工
占地:142平方米
一層中式風格自建小院,白墻黛瓦舒適宜居,享受舒適愜意的鄉村
占地:263.94平方米
12米乘9米占地百平一層平房戶型設計圖,布局寬敞大氣又舒適
占地:108平方米
三層現代簡約農村雙拼小別墅圖,好看精致,開間17米
占地:187平方米
推薦:10套新農村自建房設計圖,2026年最新設計
閱讀次數:4825737次
100套鄉村別墅圖片大全,2026年最新設計
閱讀次數:2492203次
6款農村蓋一層平房的設計圖,10萬元就能建起來
閱讀次數:1852637次
這11個一層農村自建房別墅火爆了朋友圈!我最喜歡戶型十!你呢
閱讀次數:750268次
農村6萬元建一層小別墅圖,你敢相信嗎
閱讀次數:567686次
農村5萬塊就能自建房,6套普通房子設計圖分享,你沒看錯!
閱讀次數:419410次
8套農村漂亮三間平房圖片,非常適合在農村修建!
閱讀次數:411197次
農村自建房化糞池怎么做?附方案及施工過程
閱讀次數:391783次
農村一層三間平房設計圖,告別土氣養老房,讓人忍不住點贊
閱讀次數:350581次
新農村二層樓房圖片造價12萬,挑一套回家建房吧!
閱讀次數:349126次
