
|
一、新農村住宅戶型戶型一: 地基:12m×12m 占地面積:116平米,總建筑面積:213.53平米;
戶型二
地基:9m×13m 占地面積:76.60平米,總建筑面積:185.11平米; 三大材料用量估算:水泥44.64噸,鋼筋6.932噸,多孔磚85.643立方米;
戶型三
地基:9m×12m 占地面積:75.1平米,總建筑面積:119.7平米; 三大材料用量估算:水泥32.28噸,鋼筋4.753噸,多孔磚74.179立方米;
戶型四:
地基:12m×10m 占地面積:109.68平米,總建筑面積:287.82平米;
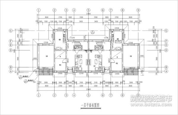
二、雙拼戶型 家里有兩兄弟需要建房的可以考慮雙拼的,一來兄弟間能有個照應,二來可以節省建筑成本。
戶型一 地基:24m×10m 占地面積:178.46平米,總建筑面積:284.2平米;
戶型二
地基:19m×12m 占地面積:123平米,總建筑面積:213.2平米;
三、獨棟別墅戶型 獨棟別墅即獨門獨院,上有獨立空間,下有私家花園領地,是私密性很強的獨立式住宅,表現為上下左右前后都屬于獨立空間,一般房屋周圍都有面積不等的綠地、院落。這一類型是別墅歷史最悠久的一種,也是別墅建筑的終極形式。在城市里花50萬買一百平米,在農村卻可以建這樣的別墅: 戶型一: 地基:14m×15m 占地面積:147.7平米,總建筑面積:366.4平米;
戶型二:
地基:13m×16m 占地面積:130平方米,總建筑面積:310平方米;
戶型三:
地基:14m×13m 占地面積:170.38平米,總建筑面積:412.72平米;
戶型四:
地基: 8m×12m 占地面積:88.7平米,總建筑面積:220.9平米;
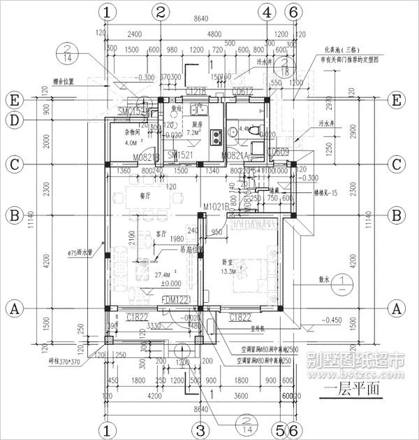
四、精選小成本戶型 如果感覺以上房屋建筑成本太高,手頭又沒有足夠的資金,可以考慮以下戶型: 戶型一: 地基:12m×9m 占地面積:80.3平米,總建筑面積:80.3平米; 三大材料用量估算:水泥22.85噸,鋼筋2.77噸,多孔磚57.702立方米;
戶型二:
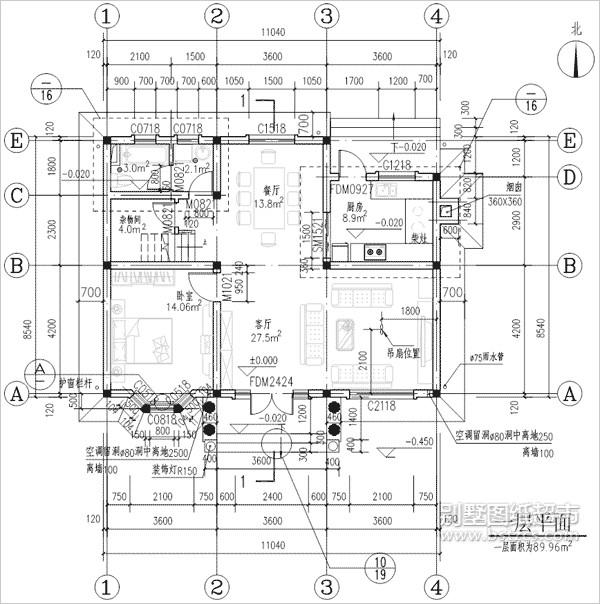
地基:11m×9m 占地面積:89.96平米,總建筑面積:185.92平米; 三大材料用量估算:水泥44.07噸,鋼筋6.544噸,多孔磚90.525立方米;
戶型三:
地基:11m×10m 占地面積:89.66平米,總建筑面積:174.61平米; 三大材料用量估算:水泥40.61噸,鋼筋5.929噸,多孔磚88.851立方米;
戶型四:
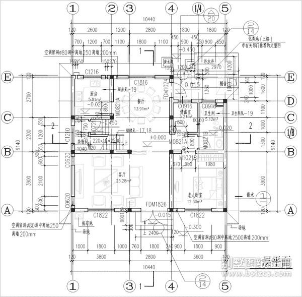
地基:8m×12m 占地面積:75.1平米,總建筑面積:119.7平米; 三大材料用量估算:水泥49.47噸,鋼筋7.771噸,多孔磚86.371立方米;
戶型五:
地基:8m×10m 占地面積:80平米,總建筑面積:160平米;
戶型六: 地基:8m×10m 占地面積:89.60平米,總建筑面積:194.94平米。
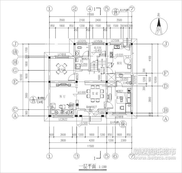
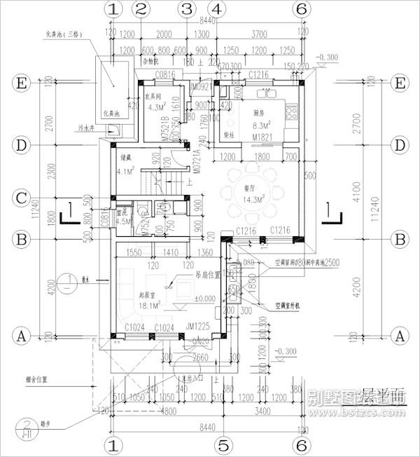
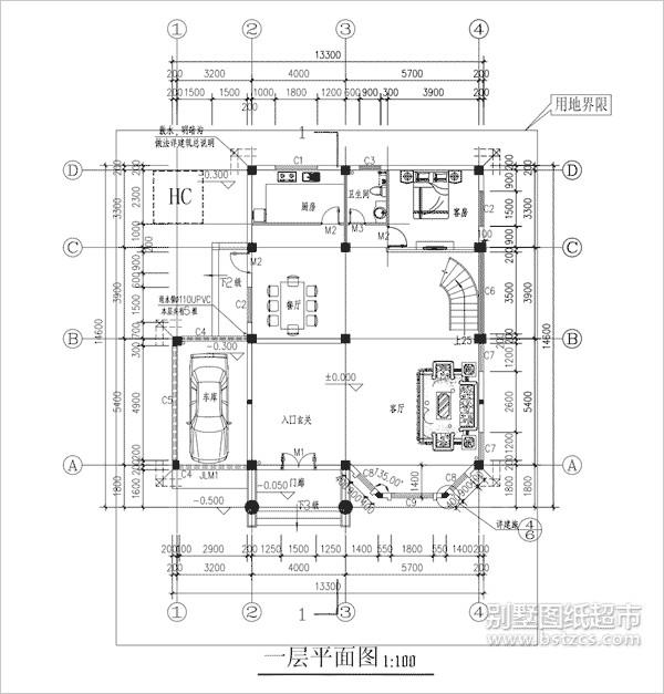
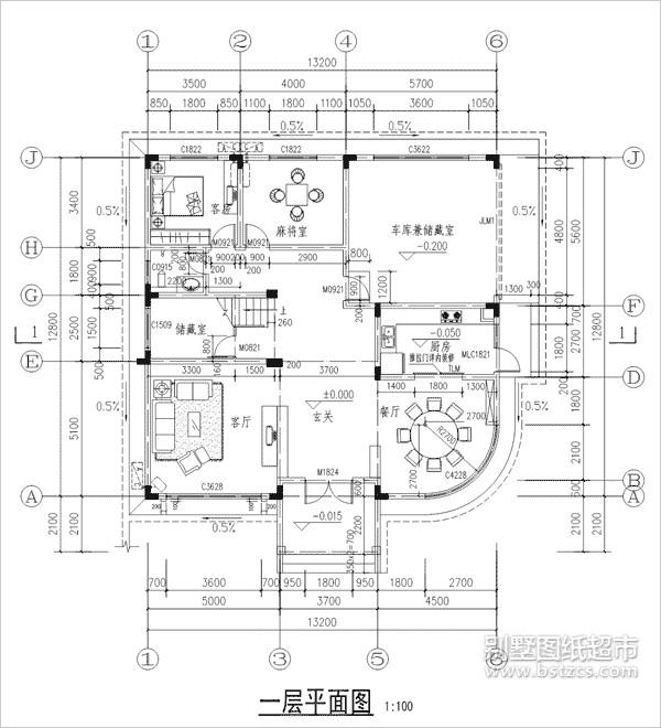
下面是部分施工圖截圖:
![]() 圖紙之家-專注農村別墅/自建房設計18年,集合國內200余位經驗豐富的設計師,被評為口碑最好的農村建筑設計公司! |

最美建筑四合院別墅設計方案,大氣經典,開間19米
占地:168.61平方米
經典戶型二層農村小別墅設計圖,造價25萬內
占地:140平方米
簡歐風格三層別墅設計圖,外觀看起來很高端、上檔次
占地:139平方米
面寬不到8米的農村二層半別墅建筑圖紙及效果圖
占地:96平方米左右
簡單大方四間二層小樓房設計圖,帶車庫,帶大露臺
占地:180平方米
占地130平三層現代別墅設計圖方案,帶電梯和地下室設計
占地:134.75平方米
30萬預算三層別墅設計圖紙及效果圖,新農村自建推薦
占地:110平方米
歐式大氣三層小別墅設計圖紙,外觀、造型大方,色彩明快
占地:140平方米
150平方米的新農村自建三層小別墅設計施工圖紙及效果圖
占地:150平方米
面寬18米二層新中式別墅圖紙設計,復式戶型,帶堂屋
占地:269.83平方米
15萬左右新中式二層別墅設計圖平面圖,占地110平米左右
占地:110平方米
高顏值又實用的一層雙拼鄉村別墅設計圖,舒適度堪比豪宅
占地:217.3平方米
農村一層大別墅施工圖,18米乘12米,讓生活充滿儀式感
占地:216平方米
背面不開窗二層別墅設計圖,對稱設計簡單好看,眾多建房者的選
占地:183.79平方米
12.8x10米二層自建房別墅設計圖,大氣美觀實用,建造無憂
占地:128平方米
新中式復式三層別墅設計圖紙,最美的新中式別墅
占地:130平方米
兄弟三層雙拼房屋設計圖,帶效果圖,戶型好
占地:256平方米
一層自建別墅設計圖,占地70平不大功能很齊全,非常適合農村養
占地:69.61平方米
農村七字型一層別墅圖,獨立廚房設計,鄉村建房優選戶型
占地:159.76平方米
帶車庫,帶露臺的三層復式樓房設計圖,新農村房屋方案推薦
占地:140平方米
推薦:10套新農村自建房設計圖,2026年最新設計
閱讀次數:4825737次
100套鄉村別墅圖片大全,2026年最新設計
閱讀次數:2492203次
6款農村蓋一層平房的設計圖,10萬元就能建起來
閱讀次數:1852637次
這11個一層農村自建房別墅火爆了朋友圈!我最喜歡戶型十!你呢
閱讀次數:750268次
農村6萬元建一層小別墅圖,你敢相信嗎
閱讀次數:567686次
農村5萬塊就能自建房,6套普通房子設計圖分享,你沒看錯!
閱讀次數:419410次
8套農村漂亮三間平房圖片,非常適合在農村修建!
閱讀次數:411197次
農村自建房化糞池怎么做?附方案及施工過程
閱讀次數:391783次
農村一層三間平房設計圖,告別土氣養老房,讓人忍不住點贊
閱讀次數:350581次
新農村二層樓房圖片造價12萬,挑一套回家建房吧!
閱讀次數:349126次
