
|
現在選擇回農村建房的人越來越多,甚至是不比在城里買房的人少。最重要的原因就是城里的房價太高,光一個首付就自己積攢好幾年,后半輩子還要做幾十年的房奴。然后就是因為最近農村經濟的高速發展、基礎設施的不斷完善,在農村生活一點也不比城里差。接下來給大家推薦6套新農村三層樓房造價17萬圖片,簡單好看還省錢! 第一套:農村小戶型平屋頂三層別墅設計圖圖紙介紹:農村小戶型平屋頂三層別墅設計圖,造價20萬左右。雖然占地面積小,但是戶型布局一點也不擁擠,適宜居住。紅色波形瓦,高低錯落,外觀、造型簡潔大方。 占地面積:10.1m*8.6m,一層占地86平方米左右; 建筑層高:三層; 建筑高度:10.5米(含屋頂); 設計功能: 一 層:客廳、廚房、餐廳、臥室、衛生間; 二 層:客廳上空、臥室x2、衛生間、陽臺; 三 層:臥室x2、衛生間、大露臺;
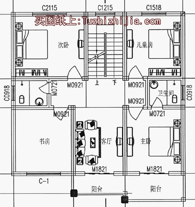
第二套:典雅時尚90平方米三層房屋設計圖圖紙介紹:最新潮的90平方米三層房屋設計圖 ,古樸典雅又不失時尚,小宅基地的最佳選擇。蓋一棟三層別墅,種菜養花,看夕陽西下~這里白天青山綠水,夜晚繁星點點。 占地面積:10.6m*8.5m,一層占地90平方米左右; 建筑層高:三層; 建筑高度:14.0米(含屋頂); 設計功能: 一 層:客廳、廚房、餐廳、老人房、衛生間; 二 層:起居室、臥室(帶衛生間)、臥室x2、書房、衛生間、露臺; 三 層:起居室、臥室(帶衛生間)、臥室、書房、衛生間、大露臺;
第三套:經典100平米三層農村房屋設計圖紙圖紙介紹:經典三層農村房屋設計圖紙,占地100平米左右,外觀典雅精致,內在寬敞舒適,首層布局精簡大氣,空間利落分明,開闊的客廳面積足夠大,保證接待會客一個都不落。 占地面積:12.0m*9.3m,一層占地100平方米左右; 建筑層高:三層; 建筑高度:12.7米(含屋頂); 設計功能: 一 層:堂屋、客廳、廚房、餐廳、儲藏室; 二 層:起居室、臥室x2、娛樂室、衛生間、陽臺、露臺; 三 層:臥室x3、衛生間、大露臺;
第四套:100平左右鄉下三層樓房設計圖圖紙介紹:100左右鄉下三層樓房設計圖,戶型方正,小面積宅基地的福音。這棟別墅不僅外觀時尚大氣,而且布局精巧,功能合理。令人吃驚的是這套房子造價估算:25-30萬,簡直不要太物美價廉! 占地面積:11.9m*9.5m,一層占地106平方米左右; 建筑層高:三層; 建筑高度:11.9米(含屋頂); 設計功能: 一 層:客廳、廚房、餐廳、臥室×2、衛生間; 二 層:起居室、臥室(帶書房)、臥室x3、衛生間、露臺; 三 層:臥室x3、衛生間、露臺;
第五套:20萬農村自建三層別墅設計圖圖紙介紹:本戶型為20萬農村自建三層別墅設計圖,外觀現代、美觀,布局經典、實用,戶型南北通透,帶車庫,帶露臺(如果不需要車庫,施工時可以把車庫建成臥室,不需要更改圖紙)。 占地面積:10.5m*11.5m,120平方米左右; 建筑層高:三層; 建筑高度:12.32米(含屋頂); 戶型設計: 一層:客廳、餐廳、廚房、臥室、車庫、衛生間; 二層:客廳、主臥(帶衛生間)、臥室x2、書房、衛生間、陽臺x2; 三層:起居室、主臥(帶衛生間)、臥室、活動室、露臺、陽臺x2;
第六套:現代三層復式小別墅設計圖圖紙介紹:本戶型為現代三層復式小別墅設計圖,外觀新穎、時尚,帶大露臺,屋頂為平屋頂,屋頂外圍有裝飾坡屋頂,方便放太陽能、儲水箱、太陽能板等,戶型布局比較前衛,開闊明亮的復式大客廳是設計亮點,二層、三層一廳、兩室的布局,滿足絕大部分家庭的居住、娛樂、生活需求。 占地面積:11.0m*9.7m,105平方米左右; 建筑層高:三層; 建筑高度:13.5米(含屋頂); 設計功能: 一 層:客廳、餐廳、廚房、臥室、衛生間; 二 層:客廳上空、起居室、臥室x2、儲物間(衣帽間)、衛生間、陽臺; 三 層:大露臺、起居室、臥室x2、衛生間;
大家在建房的時候都有不同的傾向,有人喜歡歐式風格,豪華大氣、與眾不同;也有人喜歡現代風格,施工簡單、造價也低。無論喜歡什么風格,一定要根據自己的實際情況來確定房子要建成什么樣。這幾套小戶型的新農村三層樓房造價17萬圖片,美觀又大氣,最關鍵的是造價非常低,你覺得怎么樣? 圖紙之家-專注農村別墅/自建房設計18年,集合國內200余位經驗豐富的設計師,被評為口碑最好的農村建筑設計公司! |

“L”字形二層別墅設計圖,獨立餐廚加連體露臺,太美了
占地:多戶型可選
農村18萬元二層小樓圖,帶開放式車庫
占地:110平方米
雙拼二層大別墅設計圖,大面寬小進深,讓兄弟永遠不分家
占地:207.15平方米
農村兄弟雙拼別墅三層,美觀氣派,室內布局合理實用
占地:300平方米
小戶型農村三層房屋設計圖,占地120平米,布局非常合理,外表典
占地:120平方米
2026新款農村四層別墅設計圖紙戶型圖,帶挑空客廳
占地:150平方米
140平方米新農村三層房屋設計圖,磚混結構帶地下室
占地:138平方米左右
方正對稱二層農村自建別墅施工圖,經濟實用舒適大氣
占地:129.6平方米
農村三層蓋房設計圖大全,最新的設計,最新的戶型
占地:150平方米
面寬8米多小開間三層農村別墅設計圖,占地不足百平
占地:95.21
二層農村自建四合院設計圖,中式外觀古樸有質感200-300平方米
占地:270平方米左右
三層新農村140平方米房屋設計圖紙,全套施工圖及效果圖
占地:140平方米
戶型方正的三層平頂小別墅設計圖,占地面積100平
占地:100.19平方米
農村一層中式三合院太香了!白墻黛瓦,有院有景超宜居
占地:364.72平方米
12x9米自建一層小別墅設計圖,占地不大造價低,簡單舒適人人夸
占地:108.36平方米
面寬13米三層新中式獨棟別墅設計圖,復式自建房戶型方案
占地:201.25平方米
一層農村小平房設計圖,功能齊全造價低,兩款戶型可選
占地:多戶型可選
南方新農村三層別墅設計圖紙,含效果圖,帶車庫
占地:120平方米
二層新農村自建房設計圖,帶外觀效果圖
占地:140平方米
預算20萬的農村三層房屋設計圖方案,帶外觀效果圖
占地:115平方米
推薦:10套新農村自建房設計圖,2026年最新設計
閱讀次數:4825737次
100套鄉村別墅圖片大全,2026年最新設計
閱讀次數:2492203次
6款農村蓋一層平房的設計圖,10萬元就能建起來
閱讀次數:1852637次
這11個一層農村自建房別墅火爆了朋友圈!我最喜歡戶型十!你呢
閱讀次數:750268次
農村6萬元建一層小別墅圖,你敢相信嗎
閱讀次數:567686次
農村5萬塊就能自建房,6套普通房子設計圖分享,你沒看錯!
閱讀次數:419410次
8套農村漂亮三間平房圖片,非常適合在農村修建!
閱讀次數:411197次
農村自建房化糞池怎么做?附方案及施工過程
閱讀次數:391783次
農村一層三間平房設計圖,告別土氣養老房,讓人忍不住點贊
閱讀次數:350581次
新農村二層樓房圖片造價12萬,挑一套回家建房吧!
閱讀次數:349126次
