
|
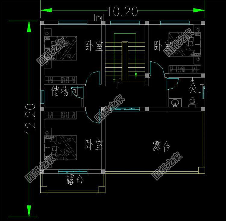
以前農村落后,很大一部分人削尖了腦袋也要擠到大城市中去,現如今農村發展水平也越來越高了,越來越多人回到農村建房。其實在農村建房好處有很多,不僅可以按照自己的喜好來設計,還可以節省造價,一舉兩得。而且在農村生活還比較自由,照顧父母也方便。今天推薦的這三款農村三層別墅戶型圖,快來一起看看吧。 款式一:農村三層別墅設計圖,占地144平米左右,含全套施工圖圖紙介紹:本戶型占地144平米左右,外墻采用富有質感的米白色和棕色真石漆裝飾,暖人人心。大量實用弧線設計,拱形窗為外立面增添美感,精細雕琢的山花構件更是畫龍點睛之筆,磚紅色坡屋頂色彩濃烈,彰顯熱情的生活態度。 占地面積:12.6m*12.8m,144平方米左右; 建筑層高:三層; 建筑高度:12.07米(含屋頂); 設計功能: 一層戶型:客廳、餐廳、廚房、臥室(帶衛生間)、臥室、儲藏室、衛生間; 二層戶型:客廳上空、起居室、臥室(帶衛生間、衣帽間、書房)、臥室、陽臺、衛生間; 三層戶型:臥室(帶衛生間、衣帽間)、臥室x2、衛生間、露臺; ![]() ![]() ![]() ![]() 款式二:農村三層別墅設計圖,占地101平米左右,帶屋頂露臺設計圖紙介紹:本戶型占地101平米左右,帶屋頂露臺設計,現代風格簡約時尚,讓人百看不厭。大面積的玻璃窗設計,使整體看上去視野開闊又寬敞。還有娛樂室、儲藏間等空間,非常實用! 占地面積:10.2m*12.2m,101.72平方米左右; 建筑層高:三層; 建筑高度:12.384米(含屋頂); 設計功能: 一層戶型:玄關、客廳、餐廳、廚房、娛樂室、臥室、衛生間; 二層戶型:起居室、臥室(帶衛生間)、臥室x3、衛生間、露臺; 三層戶型:臥室x3、儲藏間、衛生間、露臺; ![]() ![]() ![]() ![]() 款式三:農村三層別墅設計圖,占地128平米左右,歐式風格圖紙介紹:本戶型占地128平米左右,歐式風格挑空客廳設計,外觀漂亮戶型實用,深受農村歡迎。一層入戶設玄關,作為進出別墅的過渡區間,老人房緊鄰洗手間,方便老人生活;二層客廳挑空,再搭配旋轉樓梯,看來非常高大上。 占地面積:11.76m*10.76m,128.742平方米左右; 建筑層高:三層; 建筑高度:13.392米(含屋頂); 設計功能: 一層戶型:玄關、神位、客廳、餐廳、廚房、臥室、衛生間; 二層戶型:客廳挑空、小客廳、臥室(帶衛生間)x2、陽臺; 三層戶型:小客廳、臥室、臥室(帶衛生間)x2、露臺; ![]() ![]() ![]() ![]() 這三款戶型最受歡迎的是第三款,大家認為怎么樣呢?
圖紙之家-專注農村別墅/自建房設計18年,集合國內200余位經驗豐富的設計師,被評為口碑最好的農村建筑設計公司! |

簡潔干練三層現代風平頂別墅設計圖,8X15米
占地:115.1平方米
占地120平米清新脫俗簡單二層別墅設計方案,含效果圖
占地:119.01平方米
農村實用三層樓房外觀圖片+全套施工設計圖
占地:106平方米
帶地下室三間二層農村自建房設計圖,現代平屋頂設計
占地:99.98平方米
客廳中空三層復式別墅房屋設計圖,帶外觀效果圖
占地:145平方米
165平方米農村帶陽光房的二層小別墅設計圖紙帶外觀圖18.16米*9.
占地:166平方米
150平左右新農村自建房設計圖,含外觀效果圖
占地:150平方米
現代風平屋頂三層半農村小別墅設計圖,面寬僅7米
占地:90平方米
110平左右農村復式二層小樓設計圖,外觀非常受歡迎
占地:112平方米
新農村田園風格兩層半別墅設計圖,外觀造型非常漂亮
占地:147.8平方米
帶車庫的一層雙拼別墅設計方案,出入方便保安全,大氣優雅還長
占地:179.7平方米
150平米農村兩層樓房設計圖,簡單大氣時尚
占地:150平方米
四間兩層農村別墅戶型圖,外觀時尚色調搭配和諧,占地超200平米
占地:212.95平方米
歐式三層樓中樓別墅設計圖紙帶車庫(含外觀效果圖)
占地:130平方米
簡易農村別墅房子設計圖,好看實惠,施工也簡單
占地:200平方米
125平方米新中式農村自建三層別墅建筑設計圖紙及效果圖
占地:124平方米
四間兩層別墅房屋設計圖,外觀效果圖好看
占地:235平方米
150平二層別墅房屋設計圖,現代風格,造型精致
占地:150平方米
12米×10米左右一層別墅平房戶型圖及設計圖,造價低
占地:110平方米
戶型獨特的、二層臥室挑高的別墅房屋設計圖,外觀簡歐風格
占地:250平方米
推薦:10套新農村自建房設計圖,2026年最新設計
閱讀次數:4825737次
100套鄉村別墅圖片大全,2026年最新設計
閱讀次數:2492203次
6款農村蓋一層平房的設計圖,10萬元就能建起來
閱讀次數:1852637次
這11個一層農村自建房別墅火爆了朋友圈!我最喜歡戶型十!你呢
閱讀次數:750268次
農村6萬元建一層小別墅圖,你敢相信嗎
閱讀次數:567686次
農村5萬塊就能自建房,6套普通房子設計圖分享,你沒看錯!
閱讀次數:419410次
8套農村漂亮三間平房圖片,非常適合在農村修建!
閱讀次數:411197次
農村自建房化糞池怎么做?附方案及施工過程
閱讀次數:391783次
農村一層三間平房設計圖,告別土氣養老房,讓人忍不住點贊
閱讀次數:350581次
新農村二層樓房圖片造價12萬,挑一套回家建房吧!
閱讀次數:349126次
