
|
咱們中國人講究葉落歸根,那些從農村老家到城里打工的人,無論他在城里待多久,都想在年老的時候回到自己的家鄉,過上讓城里人羨慕的田園生活。 今天給大家帶來5套12X13米三層別墅戶型設計,功能性強,非常符合現代人的生活需求。 第一套
正面效果圖
背面效果圖
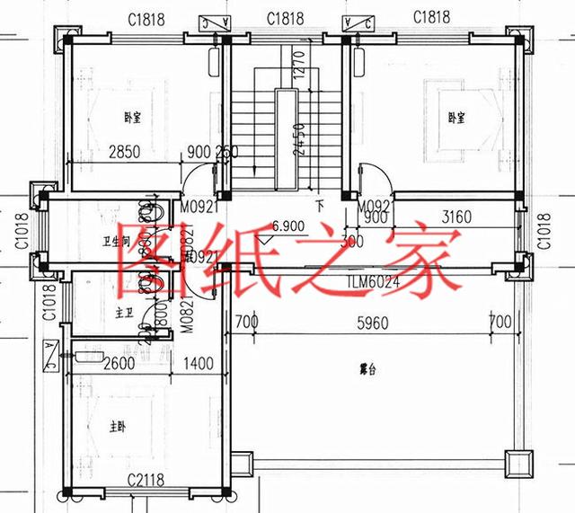
鳥瞰效果圖 占地面積:11.6m*13.2m,一層占地150平方米左右(含外門庭); 建筑層高:三層; 建筑高度:12.5米(含屋頂); 設計功能: 一 層:客廳、廚房、餐廳、臥室(帶衛生間)、娛樂室、衛生間; 二 層:休息區、臥室(帶衛生間)×3、陽臺; 三 層:休閑區、臥室(帶衛生間)x3、大露臺;
一層平面圖
二層平面圖
三層平面圖 第二套
正面效果圖
背面效果圖
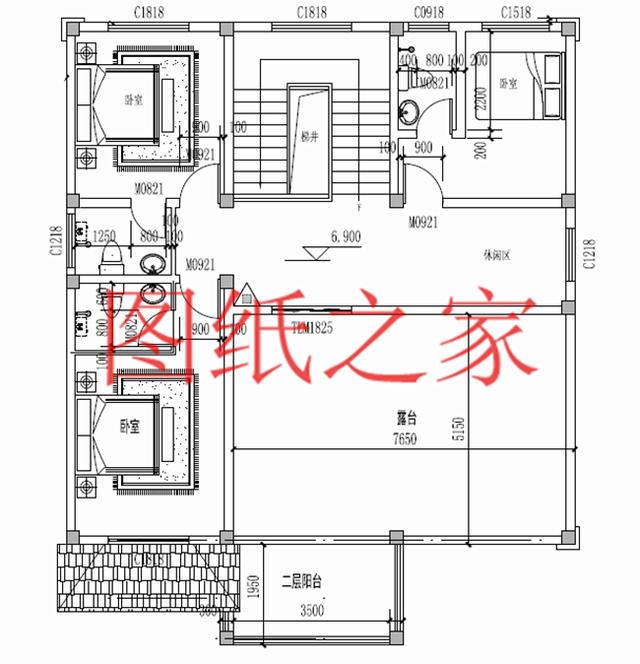
鳥瞰效果圖 占地面積:12.2m*13.1m,一層占地150平方米左右(含外門庭); 建筑層高:三層; 建筑高度:14米(含屋頂); 設計功能: 一 層:客廳、廚房、餐廳、衛生間; 二 層:臥室(帶衛生間,衣帽間)×2、臥室(帶衛生間); 三 層:臥室(帶衛生間,衣帽間)、臥室(帶衛生間)、露臺;
一層平面圖
二層平面圖
三層平面圖 第三套
正面效果圖
背面效果圖
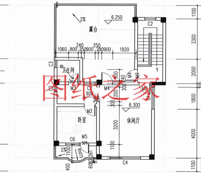
鳥瞰效果圖 占地面積:11.8m*12.8m,一層占地150平方米左右(含外門庭); 建筑層高:三層; 建筑高度:14.28米(含屋頂); 設計功能: 一 層:客廳、廚房、餐廳、主臥(帶衛生間)、臥室、衛生間; 二 層:起居室、臥室(衛生間)、臥室(帶衛生間,衣帽間)、臥室x2、衛生間; 三 層:主臥(帶衛生間、衣帽間)、次臥、書房、休閑廳、衛生間、露臺*2;
一層平面圖
二層平面圖
三層平面圖 第四套
正面效果圖
背面效果圖
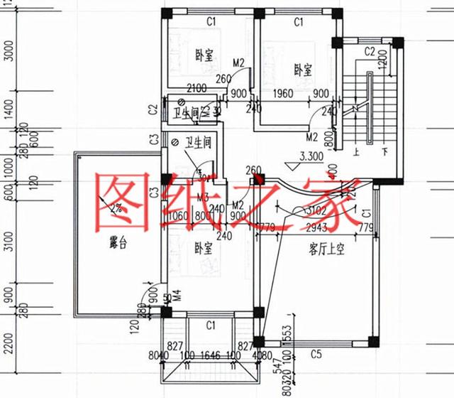
鳥瞰效果圖 占地面積:12.2m*12.8m,150平方米左右; 建筑層高:三層; 建筑高度:12.8米(含屋頂); 設計功能: 一 層:客廳、餐廳、廚房、衛生間、臥室x2、儲藏間; 二 層:主臥(帶衛生間)、臥室x2(可做書房)、衛生間、樓梯間、露臺; 三 層:客廳(帶衛生間)、臥室x2、衛生間、大露臺;
一層平面圖
二層平面圖
三層平面圖 第五套
正面效果圖
背面效果圖
鳥瞰效果圖 占地面積:12.2m*13.5m,150平方米左右; 建筑層高:三層; 建筑高度:11.09米(含屋頂); 設計功能: 一 層:門廳、客廳、臥室、廚房、餐廳、衛生間、車庫; 二 層:主臥(帶衛生間)、臥室x2(小臥室可以做書房)、衛生間、露臺; 三 層:休閑廳、臥室、衛生間、露臺;
一層平面圖
二層平面圖
三層平面圖 這幾套別墅的設計圖,你最喜歡哪一套? 圖紙之家-專注農村別墅/自建房設計18年,集合國內200余位經驗豐富的設計師,被評為口碑最好的農村建筑設計公司! |

一層平房小面積雙拼房屋住宅設計圖,造價低,面積適中
占地:245.7平方米
120平方房子設計圖帶效果圖,農村自建房戶型推薦
占地:120平方米
歐式兩層別墅設計圖及歐式效果圖,造價25萬左右
占地:150平方米
農村自建房三間設計圖,花錢少效果好12米乘9米,經濟適用性價比
占地:108.9平方米
2026農村漂亮的一層平房圖片平面圖與全套施工圖紙,戶型周正
占地:150平方米
中式二層三合院設計圖紙含外觀效果圖片,大氣又實用
占地:216.04平方米
新農村三層自建房屋設計圖,含外觀圖片
占地:136平方米
農村二層四合院設計圖,秒殺各種洋別墅
占地:220平方米
最漂亮的一層平房圖片,全套設計圖+高清效果圖
占地:145平方米
新農村三層樓房住宅設計方案,戶型圖、效果圖、全套施工圖
占地:180平方米
面寬13米帶堂屋三層農村別墅圖,新中式大氣風格
占地:151.58平方米
自建三層小洋樓設計圖紙,含效果圖,帶車庫
占地:121平方米
農村兩層半樓房設計圖,平面功能分區明確,布置合理
占地:180平方米
小戶型徽派建筑別墅設計方案大全,三層別墅設計圖推薦
占地:95平方米
12x10米帶閣樓的農村一層半別墅設計圖,外觀洋氣
占地:110.54平方米
150平米經典二層中式別墅設計圖 ,現代中式相結合
占地:154平方米左右
進深15米新農村三層房屋設計圖紙,農村住宅設計圖集
占地:128平方米
三層新中式別墅設計圖,面寬12米經典漂亮
占地:154.93平方米
歐式風格高檔三層別墅設計圖紙,帶高清外觀效果圖
占地:105平方米
現代別墅設計圖紙帶效果圖,85平、100平、145平三個戶型方案
占地:多種戶型
推薦:10套新農村自建房設計圖,2026年最新設計
閱讀次數:4825737次
100套鄉村別墅圖片大全,2026年最新設計
閱讀次數:2492203次
6款農村蓋一層平房的設計圖,10萬元就能建起來
閱讀次數:1852637次
這11個一層農村自建房別墅火爆了朋友圈!我最喜歡戶型十!你呢
閱讀次數:750268次
農村6萬元建一層小別墅圖,你敢相信嗎
閱讀次數:567686次
農村5萬塊就能自建房,6套普通房子設計圖分享,你沒看錯!
閱讀次數:419410次
8套農村漂亮三間平房圖片,非常適合在農村修建!
閱讀次數:411197次
農村自建房化糞池怎么做?附方案及施工過程
閱讀次數:391783次
農村一層三間平房設計圖,告別土氣養老房,讓人忍不住點贊
閱讀次數:350581次
新農村二層樓房圖片造價12萬,挑一套回家建房吧!
閱讀次數:349126次
