
|
現在農村的宅基地政策不斷收緊,想要獲得一塊位置、面積都很好的宅基地是越來越難,很多家庭只能在原來房子的宅基地上建新房。對于那些人口加多的家庭來說,把家里宅基地平分之后,每個人能分到的宅基地面積都不大,這種情況下怎么把房子建得好看精致,就讓人比較頭疼了。接下來分享給大家3套10X12米的農村二層別墅,占地面積小,美觀大方又實用! 第一套
正面效果圖
背面效果圖
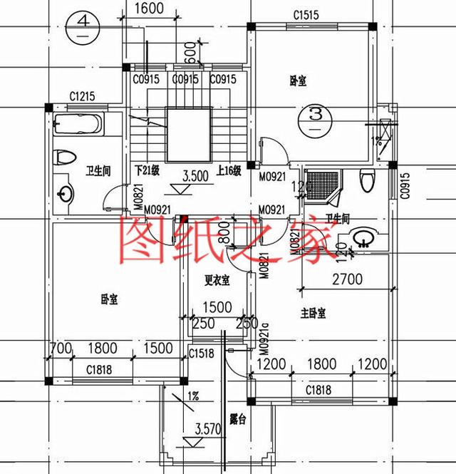
鳥瞰效果圖 占地面積:10.8m*11.9m,120平方米左右; 建筑層高:二層; 建筑高度:9.5米(含屋頂); 設計功能: 一層戶型:客廳、餐廳、廚房、臥室、衛生間; 二層戶型:客廳、主臥(帶衛生間)、臥室x2、衛生間、小露臺;
一層平面圖
二層平面圖 第二套
正面效果圖
背面效果圖
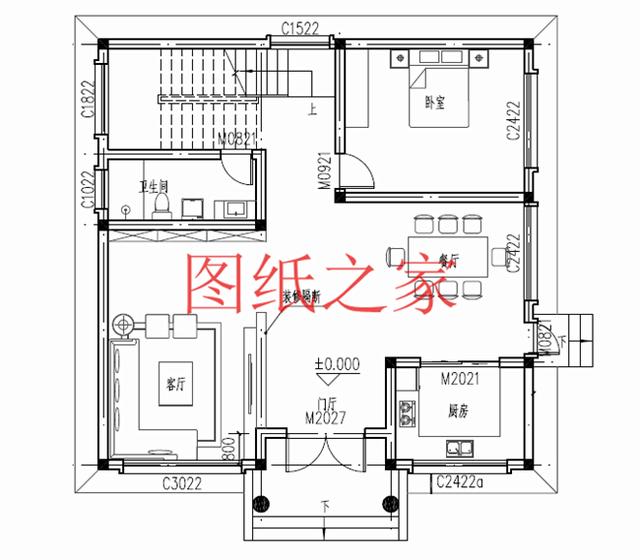
鳥瞰效果圖 占地面積:10.26m*11.76m,130平方米左右; 建筑層高:二層; 建筑高度:6.7米(含屋頂); 設計功能: 一層戶型:客廳、餐廳、廚房、衛生間、主臥×2、門廊; 二層戶型:客廳上空、起居室、臥室x2、衛生間;
一層平面圖
二層平面圖 第三套
別墅效果圖 占地面積:10.20m*12.90m,130平方米左右; 建筑層高:二層半(帶閣樓); 建筑高度:9.54米(含屋頂); 設計功能: 一層戶型:客廳、餐廳、廚房、臥室、衛生間、儲物間; 二層戶型:主臥(帶衛生間和衣帽間)、臥室x2、衛生間、小露臺; 閣樓戶型:閣樓層戶型自定義
一層平面圖
二層平面圖
閣樓平面圖 這幾套別墅的設計圖,你最喜歡哪一套? 圖紙之家-專注農村別墅/自建房設計18年,集合國內200余位經驗豐富的設計師,被評為口碑最好的農村建筑設計公司! |

新中式農村三層樓房設計圖紙,全套圖紙設計,線條錯落有致
占地:130平方米
農村自建二層樓房設計圖及效果圖,二層房屋圖推薦
占地:105平方米
農村自建房就選它!一層新中式設計,日常居住需求全搞定
占地:128.45平方米
帶地下室三層新農村房屋設計圖紙,外觀效果大氣
占地:220平方米
造價65萬左右的三層歐式別墅房屋設計施工CAD圖紙及效果圖
占地:178平方米
中式復古四層別墅房屋設計圖紙,含外觀效果圖
占地:90平方米
現代別墅設計圖紙帶效果圖,85平、100平、145平三個戶型方案
占地:多種戶型
最新五十萬農村二層別墅設計圖紙,客廳中空
占地:195平方米
12x9米自建一層小別墅設計圖,占地不大造價低,簡單舒適人人夸
占地:108.36平方米
三層新農村住宅房屋設計圖,溫馨美觀的戶型
占地:180平方米
占地70平方米的三層獨棟別墅設計圖,小戶型自建房屋效果圖
占地:70平方米左右
三層歐式豪華別墅設計方案,全套圖紙+效果圖
占地:168平方米
簡單的二層樓房圖片及設計方案,自建樓房必看
占地:140平方米
四層農村別墅設計圖,一二層都有廚房和餐廳的戶型方案
占地:128.52平方米
新農村小戶型4層自建房三層半別墅設計圖,平屋頂設計
占地:95平方米
130平四間二層小洋樓設計圖,含外觀圖片
占地:130平方米
帶地下室獨棟三層高端別墅房圖紙設計圖,復式客廳旋轉樓梯
占地:146.145平方米
獨棟三層樓房設計圖紙及效果圖,農村蓋房推薦
占地:125平方米
簡單時尚二層住宅設計圖紙,簡單的設計,不平凡的視覺感受
占地:110平方米
占地90平米四層超現代風別墅設計圖,享受高品質生活
占地:3.76平方米
推薦:10套新農村自建房設計圖,2026年最新設計
閱讀次數:4825737次
100套鄉村別墅圖片大全,2026年最新設計
閱讀次數:2492203次
6款農村蓋一層平房的設計圖,10萬元就能建起來
閱讀次數:1852637次
這11個一層農村自建房別墅火爆了朋友圈!我最喜歡戶型十!你呢
閱讀次數:750268次
農村6萬元建一層小別墅圖,你敢相信嗎
閱讀次數:567686次
農村5萬塊就能自建房,6套普通房子設計圖分享,你沒看錯!
閱讀次數:419410次
8套農村漂亮三間平房圖片,非常適合在農村修建!
閱讀次數:411197次
農村自建房化糞池怎么做?附方案及施工過程
閱讀次數:391783次
農村一層三間平房設計圖,告別土氣養老房,讓人忍不住點贊
閱讀次數:350581次
新農村二層樓房圖片造價12萬,挑一套回家建房吧!
閱讀次數:349126次
