
|
現在很多農村的年輕人都到城里打工,希望可以在城里定居工作,但是對于他們的父母來說,城里沒有歸屬感,農村的房子才是自己的家。自己在城里掙到了錢,可以在老家給父母修建一棟藥老的小別墅,不需要多么豪華,實用就好。 接下來給大家推薦4套二層別墅,12X11米方正戶型,造價20萬左右,非常經濟實用! 第一套
正面效果圖
背面效果圖
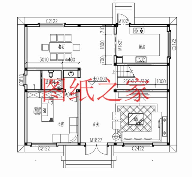
鳥瞰效果圖 占地面積:12.0m*11.1m,一層建筑面積133平方米左右; 建筑層高:二層; 建筑高度:9.66米(含屋頂); 設計功能: 一層戶型:前廳、客廳、餐廳、廚房、臥室、衛生間、父母房(帶衛生間); 二層戶型:主臥(帶衛生間)、臥室x2、書房、客廳、陽臺;
一層平面圖
二層平面圖 第二套
正面效果圖
背面效果圖
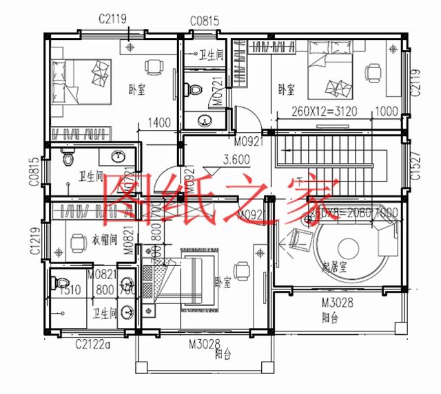
鳥瞰效果圖 占地面積:12.0m*11.3m,135平方米左右; 建筑層高:二層; 建筑高度:9.7米(含屋頂); 設計功能: 一層戶型:客廳、餐廳、廚房、衛生間、書房; 二層戶型:起居室、臥室(帶衛生間,衣帽間)、臥室(帶衛生)x2、陽臺;
一層平面圖
二層平面圖 第三套
正面效果圖
背面效果圖
鳥瞰效果圖 占地面積:12.8m*10.4m,133平方米左右; 建筑層高:二層; 建筑高度:9.0米(含屋頂); 設計功能: 一層戶型:客廳、餐廳、廚房、臥室×2、衛生間; 二層戶型:起居室、臥室(帶衛生間)、臥室x2、書房、陽臺、陽光房(可以作為露臺);
一層平面圖
二層平面圖 第四套
正面效果圖
背面效果圖
鳥瞰效果圖 占地面積:12.84m*10.74m,138平方米左右; 建筑層高:二層; 建筑高度:9.50米(含屋頂); 設計功能: 一層戶型:客廳、餐廳、廚房、臥室x3、衛生間、樓梯間; 二層戶型:衛生間、可自行隔斷;
一層平面圖
二層平面圖 這幾套別墅的設計圖,你最喜歡哪一套? 圖紙之家-專注農村別墅/自建房設計18年,集合國內200余位經驗豐富的設計師,被評為口碑最好的農村建筑設計公司! |

二層美式花園洋房設計圖,帶堂屋戶型,外觀簡直美爆了
占地:159.32平方米
150平米左右歐式三層鄉村別墅設計圖,客廳中空
占地:150平方米
140平三層自建房別墅設計圖,外觀圖大氣、美觀
占地:140平方米
面寬8米多小開間三層農村別墅設計圖,占地不足百平
占地:95.21
10萬內2層小洋樓設計圖,平屋頂,戶型設計合理
占地:90平方米
300平方二層別墅四合院設計圖紙方案(效果圖+施工圖)
占地:332平方米
新中式農村三層四合院別墅設計圖,四合院風格的別墅圖
占地:177平方米
農村一層四開間養老別墅設計圖,造型美布局佳
占地:164.27平方米
110平方米新農村三層房屋設計圖,含外觀效果圖
占地:110平方米
超現代風格平頂別墅設計圖,外觀時尚,80、90很喜歡
占地:112.18平方米
帶地下車庫的三層別墅設計圖,160平復式戶型
占地:159.03平方米
農村四層樓房設計圖,占地120平方米,歐式風格,高端大氣
占地:120平方米
一層帶閣樓的自建別墅設計圖,省錢又實用
占地:166平方米
鄉村一層房屋設計圖,養老還是一層好,多臥室的設計
占地:195平方米
簡單實用二層自建房子設計圖,主體造價僅17萬
占地:106.387平方米
兄弟雙拼別墅設計戶型圖及設計方案圖,帶外觀效果圖,外觀好看
占地:185平方米(單棟)
三層農村小別墅設計圖,一層帶商鋪,占地110平米,經濟實用
占地:110平方米
帶電梯農村建房三層小洋樓,樓中樓結構,帶露臺
占地:110平方米
簡單大氣農村兄弟三層雙拼別墅住宅設計圖,13X8米
占地:110平方米左右
簡約精致的二層房子設計圖,農村自建經濟實用
占地:89.76平方米
推薦:10套新農村自建房設計圖,2026年最新設計
閱讀次數:4825737次
100套鄉村別墅圖片大全,2026年最新設計
閱讀次數:2492203次
6款農村蓋一層平房的設計圖,10萬元就能建起來
閱讀次數:1852637次
這11個一層農村自建房別墅火爆了朋友圈!我最喜歡戶型十!你呢
閱讀次數:750268次
農村6萬元建一層小別墅圖,你敢相信嗎
閱讀次數:567686次
農村5萬塊就能自建房,6套普通房子設計圖分享,你沒看錯!
閱讀次數:419410次
8套農村漂亮三間平房圖片,非常適合在農村修建!
閱讀次數:411197次
農村自建房化糞池怎么做?附方案及施工過程
閱讀次數:391783次
農村一層三間平房設計圖,告別土氣養老房,讓人忍不住點贊
閱讀次數:350581次
新農村二層樓房圖片造價12萬,挑一套回家建房吧!
閱讀次數:349126次
