
|
現在農村建房子是越來越流行了,很多好看的房子使農村變得更加好看了,這些好看的房子都是經過精心設計的。房子的風格很多如現代風格,歐式風格,中式風格等,今天這五款農村二層別墅,現代風格的最好看,歐式風格最便宜! 款式一 別墅編號:MS1802019 占地尺寸:15.14X11.62米 占地面積:167.6平方米 建筑面積:352.16平方米 結構類型:磚混結構 主體造價:26-30萬左右 建筑風格:歐式風格
平面布局圖: 一層設有客廳、堂屋,餐廳、廚房、臥室、衛生間,儲物間。 二層設有客廳、陽臺、三臥室、衛生間
款式二 別墅編號:MS1802020 占地尺寸:14X15.2米 占地面積:212.8平方米 建筑面積:308平方米 結構類型:框架結構 主體造價:30-38萬左右 建筑風格:現代風格
平面布局圖: 一層設有客廳,餐廳、廚房、兩臥室、衛生間,茶室,三儲物間。 二層設有露臺、兩臥室、衛生間,兩儲物間
款式三 別墅編號:MS1802021 占地尺寸:15X11.5米 占地面積:172.5平方米 建筑面積:325平方米 結構類型:框架結構 主體造價:32-40萬左右 建筑風格:歐式風格
平面布局圖: 一層設有玄關,客廳、娛樂室,餐廳、廚房、臥室、衛生間,儲物間。 二層設有客廳、書房,陽臺、三臥室,衣帽間、衛生間
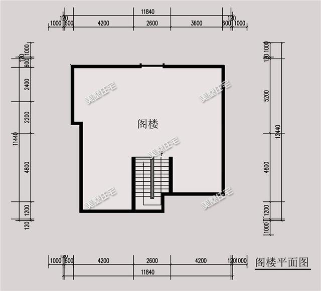
款式四 別墅編號:MS1802022 占地尺寸:13.08X14.49米 占地面積:156.79平方米 建筑面積:367.59平方米 結構類型:磚混結構 主體造價:28-36萬左右 建筑風格:現代風格
平面布局圖: 一層設有客廳、餐廳、廚房、臥室、衛生間,儲物間,車庫。 二層設有陽臺、三臥室、衛生間
款式五 別墅編號:MS1802031 占地尺寸:11.6X12.8米 占地面積:175.2平方米 建筑面積:279.16平方米 結構類型:磚混結構 主體造價:24-29萬左右 建筑風格:現代風格
平面布局圖: 一層設有門廳,客廳、開放式廚房、臥室、衛生間。 二層設有起居室、陽臺、兩臥室,衣帽間、衛生間,書房
![]() 圖紙之家-專注農村別墅/自建房設計18年,集合國內200余位經驗豐富的設計師,被評為口碑最好的農村建筑設計公司! |

占地70平方米的三層獨棟別墅設計圖,小戶型自建房屋效果圖
占地:70平方米左右
130平米帶小院一層自建房屋設計圖,省錢實用,養老房首選
占地:130平方米左右
對稱型歐式別墅設計圖,穩重實用,開間18米,適合全國農村建
占地:228.2 平方米
農村中式二層4開間別墅圖紙設計方案圖,帶車庫戶型
占地:198平方米
農村小型四合院設計效果圖及施工圖,傳統中式,四面建房
占地:220平方米
頂配三拼三層別墅設計,獨立入戶+共享庭院,兄弟三家共享奢華
占地:367.44平方米
現代一層(帶悶頂)別墅住宅設計圖,外觀現代時尚
占地:160平方米
二層樓房設計圖,占地120平米左右,符合現代農村的建房政策
占地:120平方米
200平方米別墅設計圖紙(含效果圖),農村別墅方案精選
占地:200.26平方米
六開間三層農村自建別墅設計圖,盡享豪華舒適生活
占地:341.91平方米
三層新農村別墅設計圖片及全套圖紙,外形對稱,帶露臺,這個戶
占地:160平方米
私人自建三層別墅設計圖紙帶效果圖,歐式風格、外觀大氣
占地:209.44平方米
小開間三層新中式小別墅設計圖,外觀圖優雅大氣,讓人心動!
占地:103.18平方米
平屋頂12米寬別墅三層設計圖,平頂照樣建的漂亮
占地:129.6平方米
農村四間房屋設計圖經典戶型,這樣設計美觀、實用
占地:169平方米
農村三層私人住宅設計圖紙及效果圖,帶車庫,帶露臺
占地:150平方米
90平方米新農村住宅設計二層小別墅設計圖紙11x9米
占地:90平方米
經典農村三層樓房設計圖,10個不同尺寸戶型,各種戶型供您選擇
占地:多種
120平現代實用三層別墅房屋設計圖,含外觀效果圖
占地:120平方米
私人二層農村小樓設計圖,外觀靚麗,富有現代氣息
占地:160平方米
推薦:10套新農村自建房設計圖,2026年最新設計
閱讀次數:4825737次
100套鄉村別墅圖片大全,2026年最新設計
閱讀次數:2492203次
6款農村蓋一層平房的設計圖,10萬元就能建起來
閱讀次數:1852637次
這11個一層農村自建房別墅火爆了朋友圈!我最喜歡戶型十!你呢
閱讀次數:750268次
農村6萬元建一層小別墅圖,你敢相信嗎
閱讀次數:567686次
農村5萬塊就能自建房,6套普通房子設計圖分享,你沒看錯!
閱讀次數:419410次
8套農村漂亮三間平房圖片,非常適合在農村修建!
閱讀次數:411197次
農村自建房化糞池怎么做?附方案及施工過程
閱讀次數:391783次
農村一層三間平房設計圖,告別土氣養老房,讓人忍不住點贊
閱讀次數:350581次
新農村二層樓房圖片造價12萬,挑一套回家建房吧!
閱讀次數:349126次
