
|
在農村要想自建一棟經濟美觀的小別墅,專業的設計圖紙少不了。今天小編就帶大家一起來看看,有了完美的戶型圖紙,農村自建出來的房子到底有多漂亮! 第一套: 住宅公園明星戶型,經典二層歐式別墅。 占地尺寸:11.5m×10.5m 預算投資:30萬 立面采用對稱設計,暖色調外觀給予家人溫馨感。室內多臥室設計,即使多成員的大家庭也能舒適居住。
平面布局圖:
湖南郭先生95萬蓋成這棟經典二層小別墅,還修筑了一個精致小院。別墅外觀增加了立柱、欄桿處的細節設計,更顯大氣。
大家都說精致的外觀配色能提升別墅品質感,此話不假,下面這棟農村自建別墅便很好地說明了這一點。
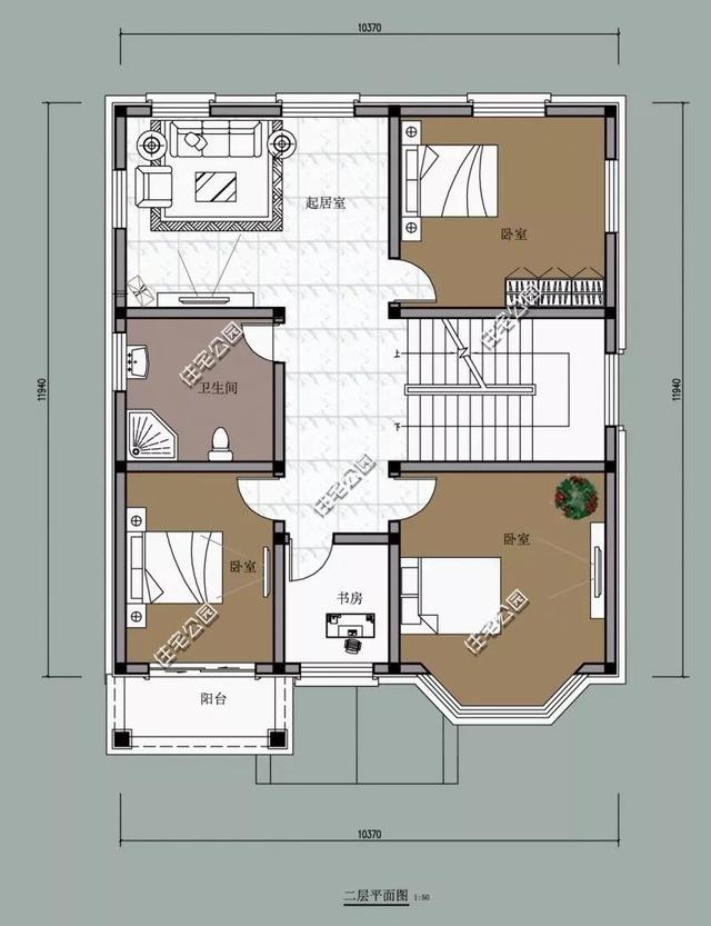
第二套: 三層簡歐別墅,極富層次感的外觀造型時尚有魅力。 占地尺寸:10.37m×11.94m 預算投資:45萬 室內廚房、餐廳處設入戶門與室外相通,方便家人出入。三層設計一個大露臺,可擺放休閑躺椅,種植花草。
平面布局圖:
江蘇陳先生自述的這篇曬家文章,想必大家都還有印象。60萬主體裝修都做好,只為自己心中最理想的別墅模樣。
湖南房主鄢先生為了自己70歲的老母親,建起這棟三層農村別墅,28萬的造價很實惠!
第三套: 利用線條與立面層次感打造的現代風別墅,時尚大氣,是當下建房者的最愛。 占地尺寸:19m×17.35m 預算投資:80萬 寬敞的宅基地室內布局可根據自家需求完美設計,車庫、套間、大露臺,打造高品質居住生活。
平面布局圖:
海南陳先生找到了專業施工隊建的這棟現代風別墅,很是高大上!
第四套: 外觀色彩亮麗的現代風小墅,有著自己的時尚格調。 占地尺寸:11m×10.5m 預算投資:30萬 小別墅室內設計無需過于復雜,簡單布局便能打造最舒適的居住生活。
平面布局圖:
四川農村27萬自建的二層別墅,亮麗的外觀色彩與時尚的立面造型,完美還原了戶型效果圖的韻味!
第五套: 建一棟古樸的中式別墅怎么能少了小院呢?種上幾株翠竹,修筑一個魚池,打造最是詩意的生活。 占地尺寸:22.4m×13.9m 預算投資:90萬 于田野間建上一棟中式美墅,平日小院里晾曬些干物,再邀上幾位好友小酌幾杯,想必是每個人心中最理想的農村生活吧!
平面布局圖:
試問誰不想在鄉村田野間建一棟中式宅院呢?清晨聽鳥鳴,傍晚賞夕陽,時間緩緩過,日子悠悠品。
第六套: 這棟歐式別墅造型想必朋友們都不陌生,全國不知道有多少房子都是按照這個外觀造型建造的。 占地尺寸:13.74m×14.52m 預算投資:55萬 室內挑空客廳、套間、活動室、大露臺,家人日常居住生活更加舒適完美。
平面布局圖:
江蘇顧先生為改善居住環境自建的三層歐式別墅,也許沒有完美還原效果圖,但這份為生活拼搏的精神,值得我們每個人學習。
浙江馮先生表示每個人都想蓋一棟稱得上別墅的房子,想讓家人過上更好的生活。有了好的戶型和專業施工隊,不信蓋不出比效果圖還贊的房子。
第七套: 浪漫夢幻的托斯卡納別墅,宛若是童話故事里走出來的建筑。 占地尺寸:12m×12.9m 預算投資:55萬 亮麗的外觀色彩、精致的立面造型,圓潤溫柔的拱形門窗設計消磨了直角的鋒利感,給人無攻擊性的美感。
平面布局圖:
浙江姜先生自建的托斯卡納美墅,小編的戶型效果圖都自愧不如。再加上一個家人親手打造的小院,試問誰不羨慕呢?
第八套: 極簡主義的現代風別墅,符合現在年輕人的審美。 占地尺寸:12.24m×10.5m 預算投資:40萬 室內設計一個地下室是限高地區擴展室內面積的好方法,除了做儲藏室外,做影音室、娛樂室等都是不錯的選擇。
平面布局圖:
箱型基礎想必大家不是那么熟悉,而江蘇洪先生卻自建起了一棟完美的箱型基礎二層別墅。如此高還原圖紙的現代風別墅,當真不多見!
第九套: 人字形大屋頂與紅白色搭配的外觀造型,不同于一般的農村別墅,給人驚喜感。 占地尺寸:10.8m×14m 預算投資:35萬 別墅一層前后均設計一個門廊,給予室內外一個舒適的過渡空間。而二層南北向的廊式露臺,則能讓家人從不同角度欣賞室外美景。
平面布局圖:
重慶夫妻打造的這棟精致小別墅,是為自己編織的童話夢。青山繞綠水,鳥語伴花香,充滿了濃郁的鄉村風情。
看完了上面的戶型與實建別墅,相信大家都明白了農村建房子一定要有一套完美的戶型圖紙,這樣建出的房子才能經濟又美觀。 圖紙之家-專注農村別墅/自建房設計18年,集合國內200余位經驗豐富的設計師,被評為口碑最好的農村建筑設計公司! |

新中式二層別墅設計圖,農村最適合建的兩層小樓,13×12米
占地:143平方米
南方新農村三層別墅設計圖紙,含效果圖,帶車庫
占地:120平方米
占地80平四層平頂別墅設計圖,現代風房子效果圖
占地:80平方米
小面寬大進深三層別墅圖紙設計,戶型非常實用經典
占地:171.39平方米
農村蓋房設計大全一層房子的設計圖紙,色調清新靚麗
占地:220平方米
新農村簡歐三層樓房圖片自建3層別墅施工設計圖及效果圖
占地:126平方米
平屋頂12米寬別墅三層設計圖,平頂照樣建的漂亮
占地:129.6平方米
面寬13米簡簡單單一層農村自建別墅設計圖,方正大氣經濟宜居
占地:126.1平方米
戶型好的三層帶獨立車庫的樓房設計圖,含外觀效果圖
占地:148平方米
新農村共用堂屋和樓梯的雙拼別墅設計圖紙,戶型布局空間利用率
占地:207平方米左右
130平方米別墅設計圖紙(含外觀效果圖,)三層別墅設計方案
占地:135平方米
140平四層復式別墅房屋設計圖,帶外觀效果圖
占地:140平方米
大氣新中式三層雙拼別墅設計圖及外觀,總面寬20米多
占地:205.76平方米
帶車庫新農村二層四間別墅設計效果圖帶全套建筑施工圖,217平方
占地:217.21平方米
新中式二層農村小樓房設計圖,戶型圖方正,外觀大氣
占地:143平方米
13×10米現代簡約風格三層別墅圖,坡屋頂和平屋頂完美結合
占地:120平方米
人氣最旺的二層半別墅設計圖紙,復式挑空二層半自建房
占地:122.679平方米
三層歐式自建房別墅設計方案,11x11米洋氣實用,飽受大家好評
占地:127平方米
帶架空層的一層自建房太香了!防潮、停車、儲物全兼顧
占地:152.06平方米
新農村三層別墅設計圖紙及效果圖,全套cad建筑圖
占地:119平方米
推薦:10套新農村自建房設計圖,2026年最新設計
閱讀次數:4825737次
100套鄉村別墅圖片大全,2026年最新設計
閱讀次數:2492203次
6款農村蓋一層平房的設計圖,10萬元就能建起來
閱讀次數:1852637次
這11個一層農村自建房別墅火爆了朋友圈!我最喜歡戶型十!你呢
閱讀次數:750268次
農村6萬元建一層小別墅圖,你敢相信嗎
閱讀次數:567686次
農村5萬塊就能自建房,6套普通房子設計圖分享,你沒看錯!
閱讀次數:419410次
8套農村漂亮三間平房圖片,非常適合在農村修建!
閱讀次數:411197次
農村自建房化糞池怎么做?附方案及施工過程
閱讀次數:391783次
農村一層三間平房設計圖,告別土氣養老房,讓人忍不住點贊
閱讀次數:350581次
新農村二層樓房圖片造價12萬,挑一套回家建房吧!
閱讀次數:349126次
