
|
一個人不管是吃的、住的和用的東西,都能間接的看出其身份地位,或者說這個人的身價出來,尤其是住宅,對于每個人來說都是必不可少的,城里面要買,是為了方便工作和家里的小孩子上學,老家要有住宅,給爸媽養老、以后自己養老度假用的,缺一不可。 豪宅一:建房尺寸為11.8×10.4米,墻面使用仿大理石的真石漆涂料裝飾,屋面蓋以藍色釉面瓷瓦,框架結構。
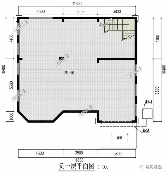
平面布局說明:地下室預留車位的空間,直角樓梯通往正一層,其余空間根據具體需要來支配;一層配有一室兩廳一廚一衛,客廳采用多邊形采光窗,室內使用小臺階,還是南北通透的設計;二層三室一廳兩衛,室內還配有帶陽臺的衣帽間;三層兩間備用的臥室和書房,室外配以觀景露臺。
豪宅二:建房尺寸為10.25×13.6米,墻面同樣用真石漆做裝飾,屋面蓋以藍瓦,外墻上面使用多窗,室內采光很好。
室內布局說明:地下室做酒窖和放映廳使用,建一棟這樣的住宅才叫有品位呢!一層配以一室兩廳一廚兩衛,主臥帶獨衛設計,樓梯的設計比較個性化和人性化;二層設計了兩間臥室,空間都比較的大;三層設有三間臥室設計,室外設有晾曬走廊和休閑平臺。
兩棟豪宅都是首建在浙江農村的,在浙江我們能看到很多的豪華別墅,那邊的生活水平確實是高。 圖紙之家-專注農村別墅/自建房設計18年,集合國內200余位經驗豐富的設計師,被評為口碑最好的農村建筑設計公司! |

戶型獨特的、二層臥室挑高的別墅房屋設計圖,外觀簡歐風格
占地:250平方米
簡單大氣二層兄弟雙拼樓房設計圖,外觀簡約
占地:268平方米
三層小別墅40萬造價,大氣農村三層新中式自建房設計圖紙
占地:171.656平方米
三層雙拼別墅效果圖及戶型設計圖,占地150平米
占地:154.8平方米
2026年獨棟三層雙拼別墅戶型圖,總占地面積300平方米左右
占地:300平方米
新農村帶陽臺三層樓房圖紙,占地180平米左右,豪華大氣
占地:180平方米
自建二層獨棟別墅建筑施工圖,含效果圖和全套設計圖紙
占地:198.72平方米
帶車庫簡約二層小別墅房屋設計圖紙,占地120平米,彎彎的樓梯打
占地:120平方米
帶車庫三間復式三層樓房設計圖,外觀精致、大方
占地:150平方米
二層農村自建小別墅設計圖,歐式風格,占地160平方米
占地:160平方米
小占地三層現代時尚風別墅設計圖,平屋頂占地不足100平
占地:98.35平方米
地中海風格二層別墅設計圖方案,含外觀效果圖
占地:130平方米
100平簡單三層房屋設計圖紙,新農村自建推薦圖紙
占地:100平方米
18X12米農村二層溫馨小別墅設計圖,美式風格
占地:203平方米
80多平米二層小型自建房設計圖,經濟舒適別具一格
占地:84.48平方米
建完被夸半年!現代風三層農村別墅,顏值抗打還百看不厭
占地:136.01平方米
農村15萬元二層小樓設計圖,15萬農村兩層小別墅圖片
占地:120平方米
新農村小戶型4層自建房三層半別墅設計圖,平屋頂設計
占地:95平方米
帶車庫三層自建別墅設計圖紙,客廳中空,外觀洋氣時尚,這款戶
占地:170平方米
預算30萬三層樓房設計圖含效果圖,戶型經典
占地:125平方米
推薦:10套新農村自建房設計圖,2026年最新設計
閱讀次數:4825737次
100套鄉村別墅圖片大全,2026年最新設計
閱讀次數:2492203次
6款農村蓋一層平房的設計圖,10萬元就能建起來
閱讀次數:1852637次
這11個一層農村自建房別墅火爆了朋友圈!我最喜歡戶型十!你呢
閱讀次數:750268次
農村6萬元建一層小別墅圖,你敢相信嗎
閱讀次數:567686次
農村5萬塊就能自建房,6套普通房子設計圖分享,你沒看錯!
閱讀次數:419410次
8套農村漂亮三間平房圖片,非常適合在農村修建!
閱讀次數:411197次
農村自建房化糞池怎么做?附方案及施工過程
閱讀次數:391783次
農村一層三間平房設計圖,告別土氣養老房,讓人忍不住點贊
閱讀次數:350581次
新農村二層樓房圖片造價12萬,挑一套回家建房吧!
閱讀次數:349126次
