
|
盡管農村建別墅的人群越來越多,但對于很多建房朋友而言,建房始終是一件一輩子的大事。追求更美觀、舒適的房子是很多人建房的初衷。 建房除了基地空間要大之外,還有一個問題是需要關心的,那就是風格的問題,現在的別墅風格太多,那么,農村建房外觀怎么樣才算好看呢?話不多說,直接來看圖。 今天小編就給大家推薦一款中式別墅,外觀漂亮大方,還是傳統又經典的樣子,這樣的房子傳三代都不是問題。
建筑的整體為中式風格,是兩層獨棟式,主體結構也是框架結構。外墻采用了白色的真石漆,這樣材質的外墻是中式建筑所特有的特點。
傳統式設計中式,前院是辦公室、客廳、廚房、辦公室及大內院,展廳及魚池生活樂趣多樣,內設大堂屋,東西設臥室,頗具古范。
紅色的大門、木質的門窗,灰色的坡屋頂,構造精巧、造型美觀,永遠都那么經典。 這棟別墅的樣式從遠處觀看就像是古典大宅一樣,豪華的氣息一下子就出來了。
白墻黑瓦很容易讓人想起江南煙雨,溫婉又大氣。院子布局基本遵循傳統的習慣,進門有照壁,庭院位于院中很和諧,房屋的組合形式又很現代。
此布局合理,讓一家人在里面和親和美,其樂融融。
建筑的東立面效果題
建筑的西立面效果圖
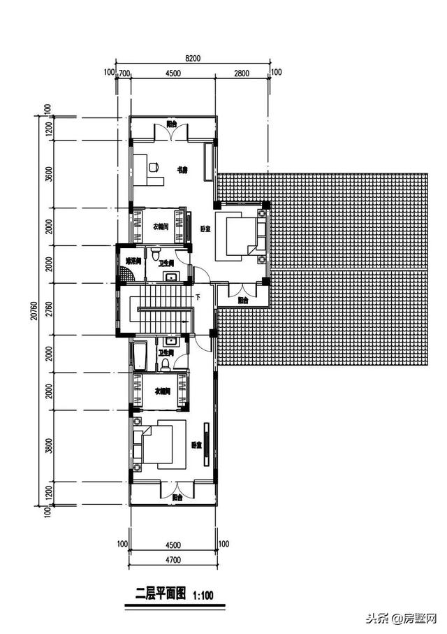
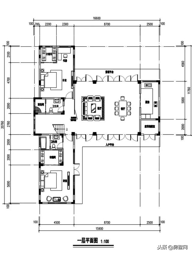
建筑的北立面效果圖 接下來我們來看看別墅的平面設計圖:
一層: 滴水廊檐、健身房、餐廳、會客廳、娛樂廳、中堂、臥室、衛生間、客廳、廚房、內院。
二層:中庭上空、臥室、書房、衛生間,每間臥室都是帶有私衛的,所以隱私性做得特別好。書房的設計也是方便主人的辦公。 圖紙之家-專注農村別墅/自建房設計18年,集合國內200余位經驗豐富的設計師,被評為口碑最好的農村建筑設計公司! |

漂亮實用三層自建別墅設計圖紙,超高的性價比
占地:160平方米
簡歐風格二層別墅設計圖,經典不過時大氣時尚,漂亮的不像話!
占地:205.68平方米
簡單大方四間二層小樓房設計圖,帶車庫,帶大露臺
占地:180平方米
大戶型三層別墅設計圖,高貴大氣,占地面積將近300平
占地:273.33平方米
大戶型美觀一層平房自建房設計圖,面寬19米左右
占地:245.1平方米
對稱一層農村養老別墅設計方案,室內戶型布局合理,14x12米
占地:141.46平方米
簡單現代平屋頂兩層四間自建樓房設計圖紙施工方案,簡潔又實用
占地:192平方米
新款三層豪華大氣歐式別墅設計圖,3種戶型設計方案
占地:125平方米左右
農村最漂亮平頂三層別墅設計圖,10.5乘11.5米
占地:119.35平方米
農村15萬元一層半小樓圖,最新的戶型設計
占地:182.31平方米
面寬10米左右的三層農村別墅設計案例,低調又奢華
占地:120平方米
鄉下一層門面二層別墅設計圖紙,帶門面的自建房方案
占地:198.4平方米
農村25萬別墅款式二層自建房設計圖,外觀簡約大氣
占地:多種戶型
新農村自建二層樓房戶型設計圖,簡單大氣,外觀漂亮精致
占地:多種戶型
300平四層別墅房屋設計圖,含外觀效果圖,大面積、多臥室
占地:261平方米
新中式高端豪宅三層別墅自建房設計圖,大戶型經典
占地:270平方米左右
挑空客廳戶型歐式二層別墅設計圖紙,高端大氣帶車庫
占地:236.09平方米
三層新農村住宅房屋設計圖,溫馨美觀的戶型
占地:180平方米
90平小戶型四層房屋設計圖,農村自建別墅推薦
占地:90平方米
帶車庫的一層雙拼別墅設計方案,出入方便保安全,大氣優雅還長
占地:179.7平方米
推薦:10套新農村自建房設計圖,2026年最新設計
閱讀次數:4825737次
100套鄉村別墅圖片大全,2026年最新設計
閱讀次數:2492203次
6款農村蓋一層平房的設計圖,10萬元就能建起來
閱讀次數:1852637次
這11個一層農村自建房別墅火爆了朋友圈!我最喜歡戶型十!你呢
閱讀次數:750268次
農村6萬元建一層小別墅圖,你敢相信嗎
閱讀次數:567686次
農村5萬塊就能自建房,6套普通房子設計圖分享,你沒看錯!
閱讀次數:419410次
8套農村漂亮三間平房圖片,非常適合在農村修建!
閱讀次數:411197次
農村自建房化糞池怎么做?附方案及施工過程
閱讀次數:391783次
農村一層三間平房設計圖,告別土氣養老房,讓人忍不住點贊
閱讀次數:350581次
新農村二層樓房圖片造價12萬,挑一套回家建房吧!
閱讀次數:349126次
