
|
隨著新農村的建設,在農村建房也成為越來越多人的選擇。在村里建棟房,父母生活條件得到了改善,自己也回去住新房也舒心。今天帶來的這款農村三層別墅,整體美觀大方,內部帶有復式客廳和超大露臺,造價不是很高,35萬左右,想要在農村建房的千萬別錯過。 別墅基本信息開間:10.6米 進深:12.35米 占地面積:126.9平方米 建筑面積:322.7平方米 建筑高度:11.17米 結構:框架結構 屋頂形式:坡屋頂 樓層:3層 主體造價:32-35萬(僅供參考)
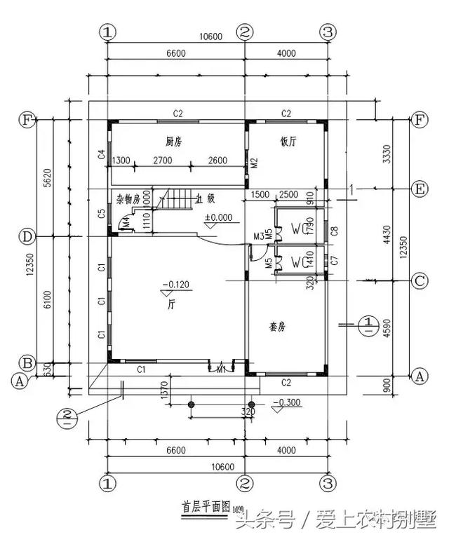
▲圖片編號:18062701 1戶型說明本戶型為農村三層別墅,占地面積126平,造價35萬左右,別墅外觀造型簡潔,配色古典大方,挑空客廳搭配落地窗時尚美觀,設計有屋頂花園,休閑放松的同時還滿足農村晾曬的需求。
2功能設計
一層進門即是挑空大客廳,使空間通透、視野寬闊;廚房與餐廳相連,方便用餐,中間可以設計推拉門,隔離油煙;臥室設置內衛,方便老人居住;樓梯處有雜物房,合理地利用空間。
二層有客廳上空、2間臥室、麻雀房、衛生間。臥室均帶內衛,提升了家居舒適度。
三層有健身房、臥室、天臺花園、衛生間。 圖紙之家-專注農村別墅/自建房設計18年,集合國內200余位經驗豐富的設計師,被評為口碑最好的農村建筑設計公司! |

農村一層中式三合院太香了!白墻黛瓦,有院有景超宜居
占地:364.72平方米
方正對稱二層農村自建別墅施工圖,經濟實用舒適大氣
占地:129.6平方米
兩層半帶閣樓別墅房屋設計圖,含外觀效果圖片
占地:118平方米
不帶廚房餐廳的二層別墅設計圖,農村建房很多人都這樣做
占地:124平方米左右
140平方米新農村復式自建房子,三層別墅建筑圖紙及效果圖
占地:138平方米
經典三層歐式造型別墅圖紙,功能房豐富,挑空客廳
占地:180平方米
150平方米二層別墅設計及效果圖展示下載,17X10米
占地:150平方米
占地200平米簡歐三層農村別墅設計圖,既顯華麗又接地氣
占地:209.27平方米
新中式三層歐式別墅設計圖,盡顯貴族風范,占地135平
占地:134.37平方米
300平四層別墅房屋設計圖,含外觀效果圖,大面積、多臥室
占地:261平方米
對稱型歐式別墅設計圖,穩重實用,開間18米,適合全國農村建
占地:228.2 平方米
農村三層樓房設計圖及效果圖,復式磚混結構
占地:148平方米
簡單的復式住宅設計圖,客廳挑高,帶外觀效果圖片
占地:148平方米
新農村住宅設計圖紙含效果圖,方方正正的別墅方案
占地:134平方米左右
超漂亮的二層別墅設計圖,外觀對稱設計,建好很大氣
占地:255平方米
鄉村三層別墅CAD建筑設計圖,110平方米戶型,帶效果圖和全套施工
占地:110平方米
農村帶閣樓一層房屋設計施工圖,13X9米
占地:102平方米
12米面寬一層農村別墅設計圖,實用又舒適
占地:110.41平方米
新農村二層雙拼小別墅設計圖,開間22米的現代房屋圖紙設計
占地:230平方米
帶院子的四間二層別墅房屋設計圖,帶獨立車庫
占地:350平方米
推薦:10套新農村自建房設計圖,2026年最新設計
閱讀次數:4825737次
100套鄉村別墅圖片大全,2026年最新設計
閱讀次數:2492203次
6款農村蓋一層平房的設計圖,10萬元就能建起來
閱讀次數:1852637次
這11個一層農村自建房別墅火爆了朋友圈!我最喜歡戶型十!你呢
閱讀次數:750268次
農村6萬元建一層小別墅圖,你敢相信嗎
閱讀次數:567686次
農村5萬塊就能自建房,6套普通房子設計圖分享,你沒看錯!
閱讀次數:419410次
8套農村漂亮三間平房圖片,非常適合在農村修建!
閱讀次數:411197次
農村自建房化糞池怎么做?附方案及施工過程
閱讀次數:391783次
農村一層三間平房設計圖,告別土氣養老房,讓人忍不住點贊
閱讀次數:350581次
新農村二層樓房圖片造價12萬,挑一套回家建房吧!
閱讀次數:349126次
