圖紙介紹:本戶型為比較簡單的復式住宅設計圖,客廳挑高,現代風格,在外觀造型上,用最為精煉的建筑語言闡釋出現代住宅的風格。[注意:本方案根據客戶需求定制,請注意下樓梯是否符合要求]
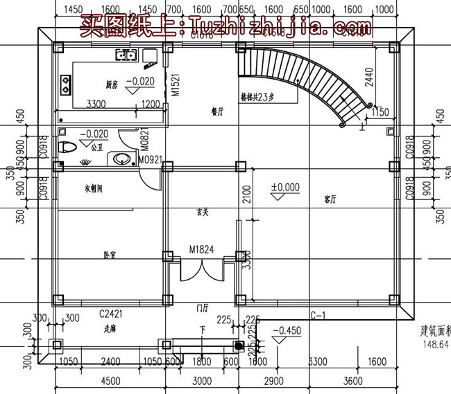
占地面積:14.0m*10.6m,148平方米左右;
建筑層高:二層;
建筑高度:9.36米(含屋頂);
設計功能:
一層住宅戶型:門廳、客廳(挑高)、臥室(衣帽間)、廚房、餐廳、衛生間
二層住宅戶型:起居室、主臥(帶衛生間)、臥室(帶衣帽間)、臥室、衛生間、屋頂花園
圖紙目錄:
住宅建筑圖:建筑施工圖目錄、建筑設計說明、一層平面圖、二層平面圖、屋頂平面圖、正立面圖、背立面圖、左立面圖、右立面圖、1-1剖面圖、樓梯大樣圖、門斗大樣圖、節點大樣圖、門窗表等;
住宅結構圖:建筑施工圖目錄、結構設計總說明、基礎平面布置圖、基礎大樣圖、一層梁結構平面圖、二層梁結構平面圖、屋頂梁結構平面圖、二層板結構平面圖、屋面板結構平面圖、樓梯大樣圖、節點大樣圖等;
住宅給排水圖:給排水圖目錄、給排水設計說明及圖例、一層、二層給排水平面圖、給水系統圖、排水系統圖、衛生間排水大樣圖、給排水系統圖等;
住宅電氣圖:電氣圖目錄、電氣設計說明、等離子電位做法、強電系統圖、一層、二層弱電系統圖、一層、二層照明布置圖、一層、二層插座布置圖、基礎接地布置圖、屋頂防雷布置圖等;
全套A3設計圖,帶高清彩色效果圖,拿到即可施工!



































































































