
|
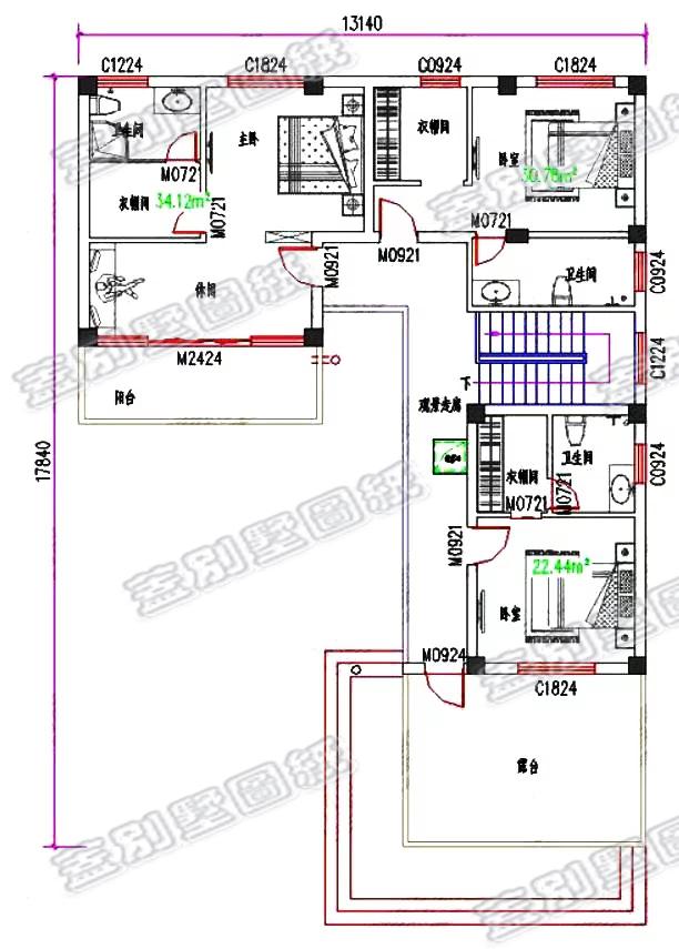
圖紙詳情 層數: 二層 結構形式:磚混結構 開間:13.14米 進深:17.84米 占地面積:145.93平方米 總建筑面積:269.3平方米 建筑高度:7.1米 主體造價:25萬
該戶型采用屬于中式風格設計,L型結構設計新穎獨特,合理利用空間,讓大門前面有充足的活動空間,可以栽種花草,拜訪桌椅,秋千等,營造一個優雅的現代別墅生活。 有大露臺設計,還有茶室、臥室套間、露臺等,功能齊全多樣,現代時尚。 平面圖展示
二層平面圖 圖紙之家-專注農村別墅/自建房設計18年,集合國內200余位經驗豐富的設計師,被評為口碑最好的農村建筑設計公司! |

新農村實用三層帶露臺房屋設計圖紙,占地110平方米
占地:109平方米
農村房子設計圖三層獨棟別墅方案,占地130平方米
占地:130平方米
大戶型帶車庫的兩層農村自建房設計圖,施工簡單,戶型方正
占地:236平方米
150平米農村兩層樓房設計圖,簡單大氣時尚
占地:150平方米
140平方米三層豪華新中式別墅設計圖紙帶外觀效果圖
占地:141.35平方米
鄉村三層別墅施工圖紙帶效果圖,田園別墅設計圖紙推薦
占地:178平方米
2026新款戶型三層新農村別墅房屋設計圖紙,外觀對稱
占地:160平方米
農村一層中式三合院別墅戶型圖,這才是適合中國人建的好房子
占地:218.77平方米
造價40萬內三層別墅房屋設計方案,設計圖+外觀效果圖
占地:150平方米
三層新中式別墅設計圖,面寬12米經典漂亮
占地:154.93平方米
80平農村房屋設計圖,小戶型自建房三層別墅推薦
占地:80平方米
農村別墅220-240平米的雙拼自建房設計圖,屋頂帶老虎窗
占地:220平方米
農村二層住宅別墅設計圖,貼心實用,12.8米乘14.5米
占地:156.16平方米
新農村自建三層復式結構房屋別墅設計圖紙及效果圖
占地:138平方米
2款帶露臺農村別墅設計圖二層精選,造價超值性價比
占地:多戶型可選
兩層三間農村自建房圖,125平有7間臥室,全家人都能住得下
占地:125.34平方米
15×12米一層農村寶藏戶型,適合養老房,看完鄰居直接要圖紙!
占地:180平方米
田園輕奢三層帶露臺的鄉村別墅設計圖紙,11x10米
占地:106.64平方米
2026年最新三層房屋設計圖紙,12米×11米,實用接地氣
占地:130平方米
農村120平米兩層樓的房子設計圖,外觀新穎
占地:120平方米
推薦:10套新農村自建房設計圖,2026年最新設計
閱讀次數:4825737次
100套鄉村別墅圖片大全,2026年最新設計
閱讀次數:2492203次
6款農村蓋一層平房的設計圖,10萬元就能建起來
閱讀次數:1852637次
這11個一層農村自建房別墅火爆了朋友圈!我最喜歡戶型十!你呢
閱讀次數:750268次
農村6萬元建一層小別墅圖,你敢相信嗎
閱讀次數:567686次
農村5萬塊就能自建房,6套普通房子設計圖分享,你沒看錯!
閱讀次數:419410次
8套農村漂亮三間平房圖片,非常適合在農村修建!
閱讀次數:411197次
農村自建房化糞池怎么做?附方案及施工過程
閱讀次數:391783次
農村一層三間平房設計圖,告別土氣養老房,讓人忍不住點贊
閱讀次數:350581次
新農村二層樓房圖片造價12萬,挑一套回家建房吧!
閱讀次數:349126次
