
|
家和萬事興,自古以來都是每個中國人最大的心愿,少有所得,老有所依。一家人熱熱鬧鬧和和美美得住在一起,是件最幸福不過的事了。而且在農村建房,有空間優勢,每個功能區域都會顯得寬敞舒適。很多事業成功的人士都會選在在農村建一棟別墅,一家人生活得幸福美滿。 最近幾年以來興起了一股復古熱潮,中式傳統風格建筑給人一種有格調的感覺,既能表達一個人對品質生活的追求,又能有傳統的家庭溫馨,農村建中式別墅什么樣的好呢?推薦8款中式戶型,經濟舒適又好看。 第一款 牧山麗墅
<< 滑動查看下一張圖片 >>
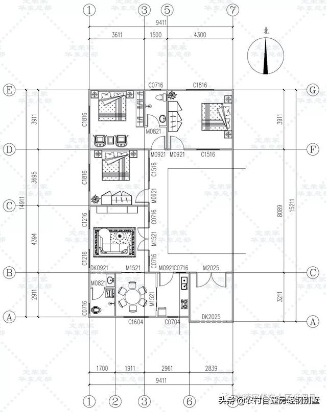
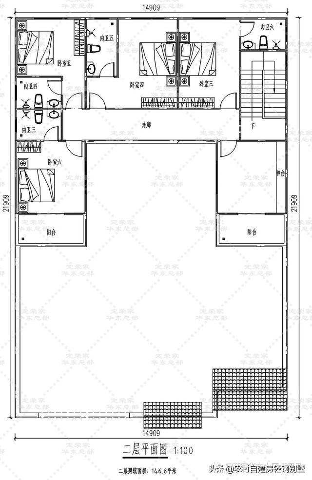
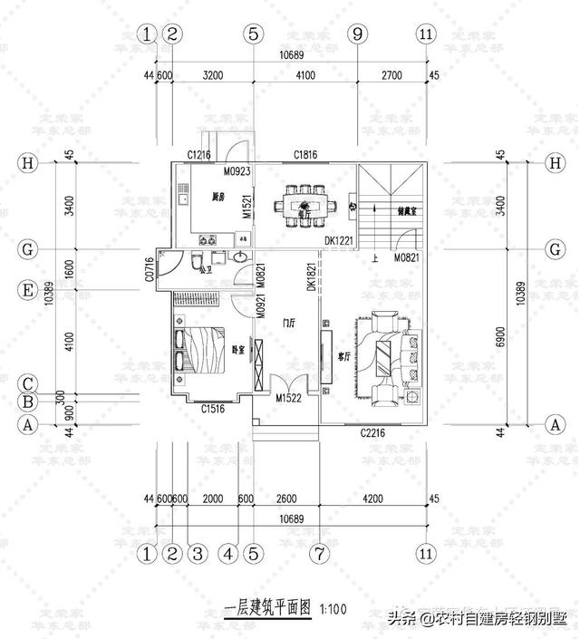
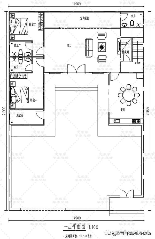
平面圖 more+ 戶型名稱:牧山麗墅總建筑面積:311.18平米占地面積:125平米層數:三層 第二款 南軒齋
<< 滑動查看下一張圖片 >>
平面圖 more+ 戶型名稱:南軒齋總建筑面積:257.58平米占地面積:105平米層數:三層 第三款 南山苑
<< 滑動查看下一張圖片 >>
平面圖 more+ 戶型名稱:南山苑總建筑面積:261平米層數:二層 第四款 清荷苑
戶型名稱:清荷苑總建筑面積:117.15平米層數:一層第五款 上清苑
<< 滑動查看下一張圖片 >>
平面圖 戶型名稱:南軒齋總建筑面積:290.86平米占地面積:148平米層數:二層 more+ 第六款 如意軒
<< 滑動查看下一張圖片 >>
平面圖 more+ 戶型名稱:南軒齋總建筑面積:324.62平米占地面積:168平米層數:兩層 第七款 香再來
戶型名稱:香再來總建筑面積:50平米層數:一層第八款 四合拾野
<< 滑動查看下一張圖片 >>
平面圖 more+ 越來越多的人喜歡上住這樣的中式別墅,這樣既有傳統的家庭溫馨也有別具特色的復古風格體驗。 一棟別墅,回歸簡約而不簡單的生活。褪去金裝,披上素衣,給自己一個擁抱生活的機會,做自己的主人。 圖紙之家-專注農村別墅/自建房設計18年,集合國內200余位經驗豐富的設計師,被評為口碑最好的農村建筑設計公司! |

12米寬三間二層農村自建房設計圖,左右對稱布局緊湊看著就舒服
占地:144.94平方米
帶地下室三間二層農村自建房設計圖,現代平屋頂設計
占地:99.98平方米
12.8x10米二層自建房別墅設計圖,大氣美觀實用,建造無憂
占地:128平方米
高顏值農村二層別墅設計圖,顏值在線造價不高,建房好選擇!
占地:216.93平方米
面寬8米多小開間三層農村別墅設計圖,占地不足百平
占地:95.21
占地90平新中式經濟二層小別墅自建房設計圖,僅15萬
占地:89.3平方米
預算30萬三層樓房設計圖含效果圖,戶型經典
占地:125平方米
140平方米一層歐式新農村平房設計圖,主體造價僅11萬
占地:141.218平方米
100平新農村三層復式房屋別墅設計圖紙,造價30萬左右
占地:106平方米
中國最好看的二層農村房子圖片及施工圖紙,20萬現代風格
占地:130平方米
12x10米帶閣樓的農村一層半別墅設計圖,外觀洋氣
占地:110.54平方米
農村一層四間平房設計圖方案,含外觀圖片,預算10萬
占地:190平方米
現代三層農村民房設計圖及圖片,外觀高端、大氣
占地:196平方米
蓋別墅圖紙新農村簡歐二層房屋設計圖,12米×12米左右
占地:128平方米左右
豪華三層歐式雙拼別墅設計圖紙,雙拼歐式別墅如何設計看這款
占地:258.294平方米
大面寬一層別墅設計圖紙,新中式風格兩款戶型
占地:多戶型可選
180平高端歐式三層別墅圖紙設計,大戶型復式客廳
占地:182.016
一層共用,二層兄弟雙拼的二層別墅設計圖
占地:182.48平方米
農村中式一層合院別墅設計圖,帶小院子規劃設計
占地:202平方米左右
小戶型徽派建筑別墅設計方案大全,三層別墅設計圖推薦
占地:95平方米
推薦:10套新農村自建房設計圖,2026年最新設計
閱讀次數:4825737次
100套鄉村別墅圖片大全,2026年最新設計
閱讀次數:2492203次
6款農村蓋一層平房的設計圖,10萬元就能建起來
閱讀次數:1852637次
這11個一層農村自建房別墅火爆了朋友圈!我最喜歡戶型十!你呢
閱讀次數:750268次
農村6萬元建一層小別墅圖,你敢相信嗎
閱讀次數:567686次
農村5萬塊就能自建房,6套普通房子設計圖分享,你沒看錯!
閱讀次數:419410次
8套農村漂亮三間平房圖片,非常適合在農村修建!
閱讀次數:411197次
農村自建房化糞池怎么做?附方案及施工過程
閱讀次數:391783次
農村一層三間平房設計圖,告別土氣養老房,讓人忍不住點贊
閱讀次數:350581次
新農村二層樓房圖片造價12萬,挑一套回家建房吧!
閱讀次數:349126次
