
|
現在農村人經濟條件好了,家家戶戶開始翻蓋新房了。尤其是家庭人口多的想蓋樓層多點的,沒有一點思路,總覺得老款式有點土,但是又不知道如何才能蓋一棟漂亮的新房子。接下來小編給大家介紹的這三款三層半四層別墅設計圖紙占地面積大,在農村建造絕對有面子,滿足自建房普遍存在的攀比心理。 第一款:四層(三層半)豪華別墅設計圖,歐式房屋外觀高端大氣本戶型為四層(三層半)歐式別墅,外觀高端大氣,旋轉樓梯,中空客廳,露臺上還有涼亭,足夠體現出主人的生活品味。 占地面積:15.25m*11.4m,一層建筑150平方米左右;一層總占地面積190平左右; 建筑層高:四層(三層半); 建筑高度:14.88米(含屋頂); 設計功能: 一 層:客廳、餐廳、廚房、主臥(帶衛生間)、大廳(功能自定義)、衛生間、車庫; 二 層:客廳上空、茶吧、主臥(帶衣帽間和衛生間)、臥室(帶衛生間)、臥室、衛生間、走廊、陽臺x2; 三 層:臥室(帶衣帽間和衛生間)、臥室(帶衛生間)、臥室、衛生間、休閑廳、露臺、陽臺; 四 層:功能自定義、涼亭、露臺x2;
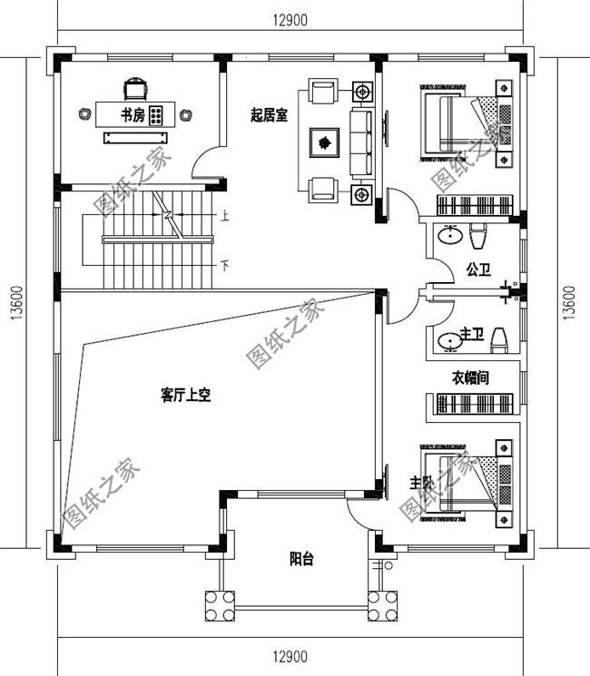
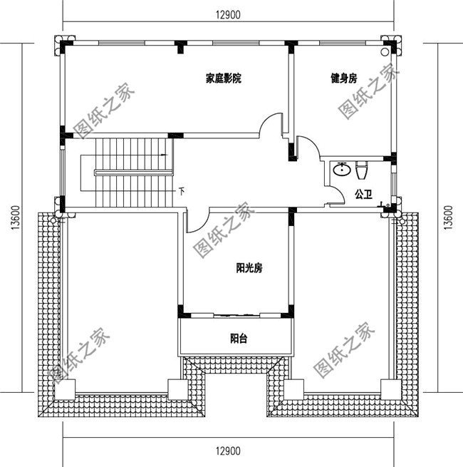
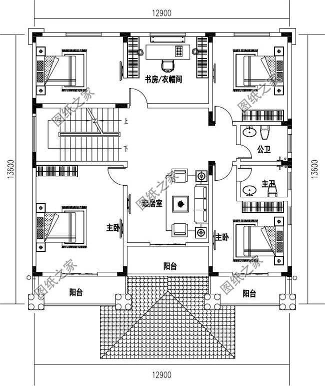
戶型二:四層(三層半)復式別墅設計圖,歐式風格本戶型歐式風格,非常的氣派,簡單而大方。別墅窗戶也很多便于采光通風,屋頂也有露臺設計,方便晾曬東西,同時也可以當做屋頂花園。 占地面積:12.9m*13.6m,174平方米左右; 建筑層高:四層; 建筑高度:15.72米(含屋頂); 設計功能: 一層戶型:玄關、客廳、廚房、餐廳、臥室(帶衣帽間)、臥室、衛生間; 二層戶型:客廳上空、起居室、書房、主臥(帶衛生間衣帽間)、臥室、衛生間、陽臺; 三層戶型:起居室、書房/衣帽間、臥室(帶衛生間)、臥室x3、衛生間、陽臺; 四層戶型:家庭影院、健身房、陽光房、衛生間、陽臺。露臺;
戶型三:四層(三層半)歐式別墅設計圖,豪華時尚這款戶型設計十分的豪華,主要是針對現代農村建房審美和需求設計的,簡直就是一款奢華與實用為一體的歐式別墅設計圖。 占地面積:14.00m*16.00m,194平方米左右; 建筑層高:四層; 建筑高度:16.62米(含屋頂); 設計功能: 一層戶型:門廳、神壇、客廳、餐廳、廚房、臥室、衛生間、主臥(帶衛生間); 二層戶型:客廳上空、主臥(帶衛生間)、書房、臥室×2、衛生間、陽臺、露臺; 三層戶型:起居室、主臥(帶衛生間)、書房、臥室×2、衛生間、陽臺、涼亭; 四層戶型:臥室、娛樂室、衛生間、露臺X2;
這幾款三層半四層別墅設計圖紙看了之后不知道你有沒有心動的呢?留言告訴小編你最喜歡哪一款式。
圖紙之家-專注農村別墅/自建房設計18年,集合國內200余位經驗豐富的設計師,被評為口碑最好的農村建筑設計公司! |

帶地下室一層別墅設計方案,功能布局齊全實用
占地:256.5平方米
12x10米農村建房圖紙,客廳中空,讓你后半輩子在稱贊聲中度過
占地:120平方米
帶車位的鄉村二層別墅建筑結構設計圖,全套施工圖140平
占地:139.85平方米
180平方米新農村雙拼戶型別墅房屋設計圖紙帶外觀圖17X11米
占地:180平方米
全新農村簡歐風格三層房屋別墅效果圖,110和210兩個戶型,帶電梯
占地:多種戶型
三層雙拼別墅效果圖及戶型設計圖,占地150平米
占地:154.8平方米
95平米二層別墅必蓋戶型圖,造型洋氣,布局接地氣,趕緊回村建
占地:95.38平方米
二層雙拼別墅外觀效果圖及施工圖,帶露臺,14乘12米
占地:168平方米
120平方米新農村房屋設計圖紙,新中式效果圖,3層住宅設計方案
占地:120平方米
農村三層房屋設計圖紙,三層農村住宅設計效果圖,11米*10米
占地:100平方米
125平自建房設計圖二層戶型,建房選這款準沒錯
占地:124.04平方米
農村一層平房別墅設計圖,18米乘9米,實實在在的好戶型
占地:162平方米
大氣豪華四層別墅設計圖紙,占地180平米左右
占地:180平方米
共堂屋雙拼兩層小別墅設計圖,倆兄弟農村自建房首選
占地:198平方米
豪華別墅設計圖紙(含效果圖),三層歐式別墅方案精選
占地:117平方米
一層5間歐式平房小洋樓建筑設計圖紙,大戶型一層別墅戶型
占地:216平方米
新農村三層樓房住宅設計方案,戶型圖、效果圖、全套施工圖
占地:180平方米
客廳中空三層復式別墅房屋設計圖,帶外觀效果圖
占地:145平方米
占地110平米兩層半農村房子設計圖,簡單實用
占地:110.25平方米
26萬二層平頂別墅樓設計圖,客廳中空,占地120平米
占地:120平方米
推薦:10套新農村自建房設計圖,2026年最新設計
閱讀次數:4825737次
100套鄉村別墅圖片大全,2026年最新設計
閱讀次數:2492203次
6款農村蓋一層平房的設計圖,10萬元就能建起來
閱讀次數:1852637次
這11個一層農村自建房別墅火爆了朋友圈!我最喜歡戶型十!你呢
閱讀次數:750268次
農村6萬元建一層小別墅圖,你敢相信嗎
閱讀次數:567686次
農村5萬塊就能自建房,6套普通房子設計圖分享,你沒看錯!
閱讀次數:419410次
8套農村漂亮三間平房圖片,非常適合在農村修建!
閱讀次數:411197次
農村自建房化糞池怎么做?附方案及施工過程
閱讀次數:391783次
農村一層三間平房設計圖,告別土氣養老房,讓人忍不住點贊
閱讀次數:350581次
新農村二層樓房圖片造價12萬,挑一套回家建房吧!
閱讀次數:349126次
