
|
農村以前生養孩子壓力小,父輩的人兄弟都比較多。因此農村蓋房的時候也希望一家人住在一起,享受天倫之樂,建兩棟甚至多棟成本太大,不如建高層一人一層,以后即使在城里安了家,回來也能擁有獨立私密空間。下面分享3款百萬上的農村豪華別墅,50歲前能住上,必定是人生大贏家了。 第1棟
架空層的車庫,只要你車多不怕沒地方停放。從第二層起為居住層,上面呈對稱形式,頂層露臺和儲藏間。 一層別墅設計圖:車庫,儲藏間,衛生間。
二層別墅設計圖:客廳,臥室(2間),廚房,餐廳,茶吧。
三層別墅設計圖:客廳,餐廳,廚房,3個臥室,書房,3個衛生間,陽臺。
四層別墅設計圖:客廳,餐廳,廚房,3個臥室,書房,3個衛生間,陽臺。
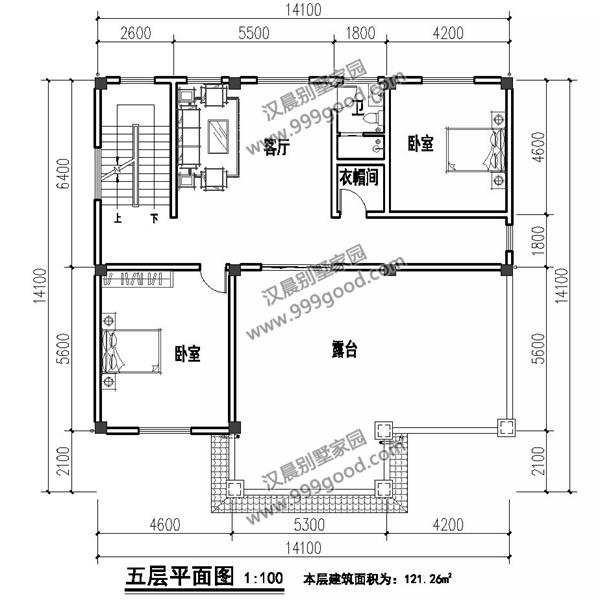
五層別墅設計圖:客廳,餐廳,廚房,3個臥室,書房,1個衛生間,陽臺。
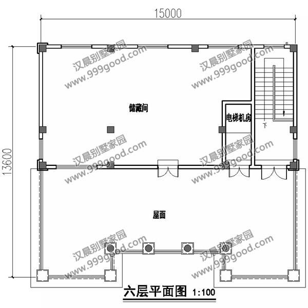
六層別墅設計圖:儲藏室,露臺,電梯機房
第2棟
平面布局上比較均衡,避免產生分歧,布局一樣不存在矛盾。頂層和一層公用,側面也有小門方便進出。 一層別墅設計圖:客廳,1個臥室,廚房,餐廳,2個衛生間。
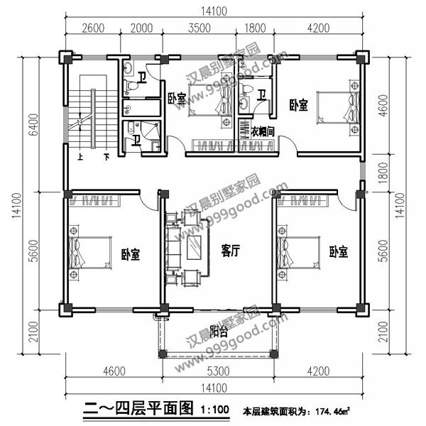
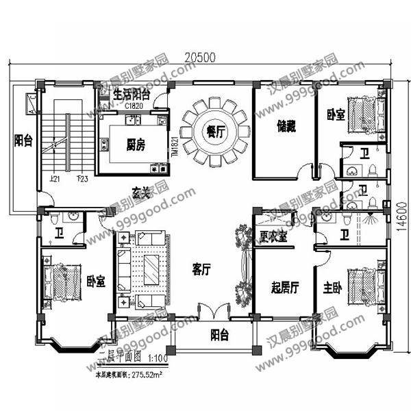
二層別墅設計圖:客廳,2個臥室,起居室,餐廳,廚房,4衛生間,1更衣室,陽臺。
三層別墅設計圖:3個臥室,客廳,起居室,廚房,餐廳,儲藏室,4個衛生間,陽臺。
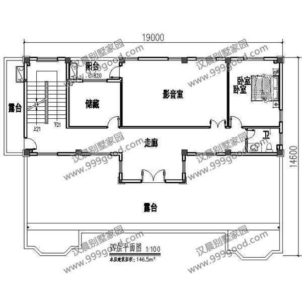
四層別墅設計圖:露臺,1個臥室,1個衛生間,影音室。
第3棟
戶型方正,開間進深尺寸一模一樣,經典氣派的絳紅外觀,低調不張揚;樸實不特立獨行的造型結構適合在農村自建。
平面圖 一層別墅設計圖:客廳,堂屋,門廳,2臥室,廚房,餐廳,2衛生間,儲藏間,衣帽間。
二~四層別墅設計圖:家庭廳,4臥室,衣帽間,3衛生間,陽臺。
五層別墅設計圖:客廳,2臥室,衣帽間,衛生間,露臺。 ![]()
圖紙之家-專注農村別墅/自建房設計18年,集合國內200余位經驗豐富的設計師,被評為口碑最好的農村建筑設計公司! |

氣派的歐式風格三層房子設計圖紙,外觀圖太漂亮了
占地:132平方米
2026最新款獨棟中西雙餐廳三層別墅設計圖,精巧實用好看不貴
占地:226.12平方米
西班牙風格農村二層樓房設計圖及效果圖,實用美觀
占地:170平方米
五間二層別墅設計圖紙,樓梯設計的無比大氣
占地:300平方米
堂屋共用的三層雙拼別墅設計圖,總占地面積245平米
占地:245平方米
占地70平方米的三層獨棟別墅設計圖,小戶型自建房屋效果圖
占地:70平方米左右
農村三層樓房設計圖三層別墅圖片,占地面積135平米
占地:135平方米
農村三室二廳一層小平房設計圖,簡單實用型
占地:113.4平方米
小占地的農村別墅設計圖,占地僅72平米,參考造價不到15萬
占地:多戶型可選
農村一層中式三合院太香了!白墻黛瓦,有院有景超宜居
占地:364.72平方米
現代三層農村房屋設計圖紙及效果圖,帶全套cad建筑圖
占地:95平方米
鄉村兄弟小戶型雙拼一層房屋設計圖,雙拼別墅格局精煉,實用性
占地:160平方米
平屋頂12米寬別墅三層設計圖,平頂照樣建的漂亮
占地:129.6平方米
現代風格三拼別墅設計圖紙,三兄弟回村自建房戶型
占地:324平方米
漂亮時尚二層樓房設計圖紙,經濟實用,戶型通透
占地:150平方米
帶車庫鄉下雙拼別墅設計圖,三層造型漂亮大全
占地:256平方米
100平復式三層別墅房屋設計圖,客廳挑高,采光好,臥室多
占地:100平方米
鄉村二層簡歐小戶型別墅圖設計,占地90平方米左右
占地:92.12平方米
面寬12米簡歐三層農村別墅設計圖,低調又奢華鄉村別墅
占地:132.64平方米
農村三層帶車庫、帶露臺別墅設計圖,經典自建別墅設計方案
占地:160平方米
推薦:10套新農村自建房設計圖,2026年最新設計
閱讀次數:4825737次
100套鄉村別墅圖片大全,2026年最新設計
閱讀次數:2492203次
6款農村蓋一層平房的設計圖,10萬元就能建起來
閱讀次數:1852637次
這11個一層農村自建房別墅火爆了朋友圈!我最喜歡戶型十!你呢
閱讀次數:750268次
農村6萬元建一層小別墅圖,你敢相信嗎
閱讀次數:567686次
農村5萬塊就能自建房,6套普通房子設計圖分享,你沒看錯!
閱讀次數:419410次
8套農村漂亮三間平房圖片,非常適合在農村修建!
閱讀次數:411197次
農村自建房化糞池怎么做?附方案及施工過程
閱讀次數:391783次
農村一層三間平房設計圖,告別土氣養老房,讓人忍不住點贊
閱讀次數:350581次
新農村二層樓房圖片造價12萬,挑一套回家建房吧!
閱讀次數:349126次
