項目名稱:大理五層獨棟別墅
編號:FH-5F-9
建筑面積:1100㎡
建筑結構:框架結構
房屋尺寸:開間19.8米,進深16米
占地面積:270㎡
參考造價:500-800萬(僅供參考根據各地人工費及建材價格波動,各地造價差距較大)
項目概況
業主為成功企業家
名下資產上億
已有多處房產
此次因看到公司董事在鄉下蓋房
故也產生回鄉蓋房想法
蓋房預算千萬
業主從村民手中購得大量宅基地
準備此次蓋房使用
蓋房主要為業主平時過節回家自住
同時為父母有更好養老之所
項目背景
△宅基地現狀照片
業主為成功企業家,此次蓋房從村民手中購得大片宅基地,地形方正,四周空曠,四周一田地位置,少數民宅。
效果展示
△人視圖
房屋設計以簡練的建筑語言,簡歐風格,外墻采用米色花崗巖,典雅而大氣,外廊、陽臺、露臺的巧妙設計,營造多層次交流空間,空間層層變化,簡約大氣。
△人視圖
運用現代空間設計和當代建筑,結合當地特色加以點綴,方圓的巧妙結合,線條的粗細變化,立柱的點綴,細節處見精品。
△人視圖
歐式柱廊運用,增加立面虛實變化。
△人視圖
△鳥瞰圖
△正立面圖
△大門設計
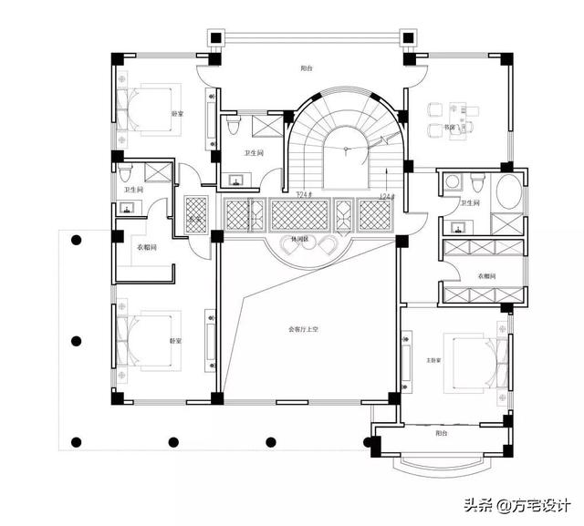
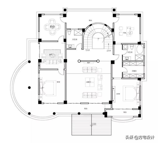
平面功能
△一層平面圖
△二層平面圖
△三層平面圖
△四層平面圖
△五層平面圖
過程方案展示
△過程方案一








































