
|
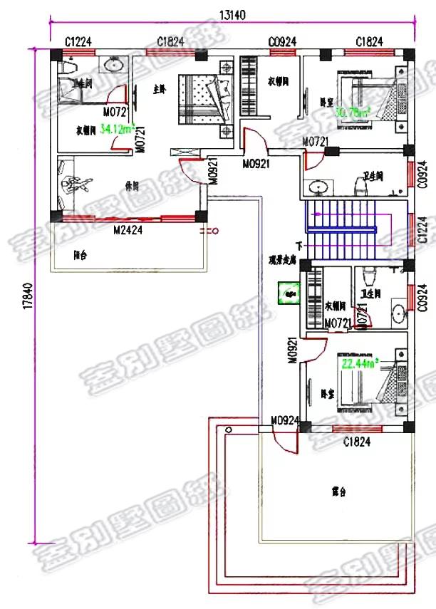
圖紙詳情 層數: 二層 結構形式:磚混結構 開間:13.14米 進深:17.84米 占地面積:145.93平方米 總建筑面積:269.3平方米 建筑高度:7.1米 主體造價:25萬
該戶型采用屬于中式風格設計,L型結構設計新穎獨特,合理利用空間,讓大門前面有充足的活動空間,可以栽種花草,拜訪桌椅,秋千等,營造一個優雅的現代別墅生活。 有大露臺設計,還有茶室、臥室套間、露臺等,功能齊全多樣,現代時尚。 平面圖展示
二層平面圖
圖紙之家-專注農村別墅/自建房設計18年,集合國內200余位經驗豐富的設計師,被評為口碑最好的農村建筑設計公司! |

簡約大氣農村自建三層別墅設計圖,布局合理,很適合農村人自建
占地:139.471平方米
農村兩層新中式仿古四合院別墅戶型圖,小型占地不到200平
占地:193平方米
最好看的農村三層樓房設計圖,占地113平米,小平米大格局
占地:110平方米
農村自建超漂亮中式四合院別墅設計圖,22X25米
占地:473平方米
2026新款三層小別墅設計圖,占地150平米,帶地下室
占地:150平方米
二層半農村小別墅設計方案圖,南方設計圖精選
占地:82平方米
130平氣派美觀的二層別墅房屋設計圖,含效果圖
占地:130平方米
新農村雙拼別墅全套設計圖方案及效果圖,餐廳廚房獨立設計
占地:338.02平方米
130平米最新氣派農村四層樓房設計圖,四層樓房圖片
占地:130平方米
新農村三層自建樓房設計圖,帶大露臺,外觀大氣
占地:136平方米
110平左右二層小洋樓設計圖,含效果圖片
占地:108平方米
農村17萬元一層自建別墅設計圖,外觀簡潔,戶型方正
占地:163平方米
農村仿古四合院設計圖自建房,外觀中式古樸典雅
占地:378平方米
好看又簡單二層仿古中式四合院樓房設計圖
最新12x9米一層平房別墅設計圖,好看不貴居住舒適!
占地:108平方米
120平米三層30萬別墅圖片大全及全套施工圖,外觀簡潔大方
占地:120平方米
現代風平屋頂一層自建房設計,經濟時尚
占地:147.17平方米
自建三層小洋樓設計圖紙,含效果圖,帶車庫
占地:121平方米
三層帶露臺21萬別墅設計圖,占地面積100平米左右
占地:106平方米
110平方米新農村三層別墅設計圖,含外觀效果圖
占地:109平方米
推薦:10套新農村自建房設計圖,2026年最新設計
閱讀次數:4825737次
100套鄉村別墅圖片大全,2026年最新設計
閱讀次數:2492203次
6款農村蓋一層平房的設計圖,10萬元就能建起來
閱讀次數:1852637次
這11個一層農村自建房別墅火爆了朋友圈!我最喜歡戶型十!你呢
閱讀次數:750268次
農村6萬元建一層小別墅圖,你敢相信嗎
閱讀次數:567686次
農村5萬塊就能自建房,6套普通房子設計圖分享,你沒看錯!
閱讀次數:419410次
8套農村漂亮三間平房圖片,非常適合在農村修建!
閱讀次數:411197次
農村自建房化糞池怎么做?附方案及施工過程
閱讀次數:391783次
農村一層三間平房設計圖,告別土氣養老房,讓人忍不住點贊
閱讀次數:350581次
新農村二層樓房圖片造價12萬,挑一套回家建房吧!
閱讀次數:349126次
