
|
現代人看多了這個世界的喧囂和花花綠綠,已經有些疲憊了,回鄉蓋棟小別墅,有一部分人也傾向于建樸素簡約的現代風格。
現代別墅提倡突破傳統,創造革新,重視功能和空間組織,注重發揮結構構成本身的形式美。造型簡潔,反對多余裝飾,崇尚合理的構成工藝;尊重材料的特性,講究材料自身的質地和色彩的配置效果。因其追求時尚與潮流,簡約自然清新使用的特點而迅速興起。
一層設客廳、餐廳、廚房、茶室、臥室、一間衛生間、泳池,庭院。 方正的大客廳與餐廳之間自然銜接,通透敞亮,家中親友來訪顯示出體面大氣的室內空間,盡享品質生活。 臥室室內均設采光通風窗,居住舒適,爸媽及長輩來客方便使用。 西側設置泳池,西北內凹出形成小院落,上方搭建陽光房頂,院內擺上一套茶桌,形成一處陽光茶室,曬曬太陽、喝喝茶、看看書,真真美好。
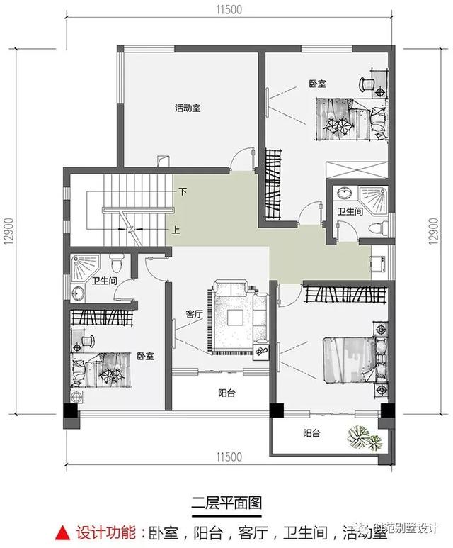
二層主要是居住使用,設有三處臥室,主臥帶有獨衛,中間部分用來著起居室,居住更加方便;西北部設置活動區可做棋牌室或健身房使用。
三層設一間主臥室、一間衛生間、一間書房、一個大露臺,一個陽臺。 書房設置較多的窗戶使室內光線得到強化,,能為孩子學習、也可為家長工作時提供一個良好的環境。 大露臺設計方便晾曬的同時,還可以作休閑和觀景平臺使用,打造成家中休閑愜意的好去處。 室內裝飾:
臥室:
浴室:
泳池: ![]() 圖紙之家-專注農村別墅/自建房設計18年,集合國內200余位經驗豐富的設計師,被評為口碑最好的農村建筑設計公司! |

現代風格建房圖紙二層別墅設計方案,外觀百看不厭
占地:多戶型可選
三層蓋房子歐式挑空客廳別墅設計圖,外觀漂亮戶型實用
占地:多種戶型
農村五開間大平層設計圖,主體15萬就能建。
占地:182.43平方米
農村二層仿古尖屋頂別墅設計圖,外觀古樸耐看
占地:87平方米左右
新款農村三拼三戶別墅設計圖及效果圖三層戶型,外觀靚麗新穎
占地:360平方米
2026兩層半20多萬農村自建房圖,簡歐風格,美觀大氣
占地:120平方米
農村平屋頂三層現代風別墅戶型圖,簡約實用經濟顏值高
占地:111.9平方米
140平四層復式別墅房屋設計圖,帶外觀效果圖
占地:140平方米
小型雙拼一層平房設計圖,外觀古樸
占地:100平方米
70平農村小戶型二層別墅設計圖,小宅基地的福音
占地:70平方米
20萬以內二層歐式小別墅設計方案,全套施工圖+效果圖
占地:115平方米
120平米左右農村房屋設計圖占地面積適宜,外觀舒適大氣
占地:120平方米
農村三層雙拼別墅設計圖,帶外觀效果圖,推薦
占地:190平方米
230平米歐式帶地下室三層自建別墅設計施工圖紙及效果圖
占地:230平米
農村三層私人住宅設計圖紙及效果圖,帶車庫,帶露臺
占地:150平方米
農村實用三層樓房圖片,占地140平米左右,客廳中空
占地:140平方米
一層中式四合院別墅設計方案圖,含外觀效果圖
占地:360平方米含院子
90平方米新農村住宅設計二層小別墅設計圖紙11x9米
占地:90平方米
帶電梯的農村歐式雙拼三層豪宅別墅設計圖,樓梯電梯共用
占地:268.448平方米
精致時尚一層雙拼別墅設計圖,造價實惠,起居互不打擾
占地:369.54平方米
推薦:10套新農村自建房設計圖,2026年最新設計
閱讀次數:4825737次
100套鄉村別墅圖片大全,2026年最新設計
閱讀次數:2492203次
6款農村蓋一層平房的設計圖,10萬元就能建起來
閱讀次數:1852637次
這11個一層農村自建房別墅火爆了朋友圈!我最喜歡戶型十!你呢
閱讀次數:750268次
農村6萬元建一層小別墅圖,你敢相信嗎
閱讀次數:567686次
農村5萬塊就能自建房,6套普通房子設計圖分享,你沒看錯!
閱讀次數:419410次
8套農村漂亮三間平房圖片,非常適合在農村修建!
閱讀次數:411197次
農村自建房化糞池怎么做?附方案及施工過程
閱讀次數:391783次
農村一層三間平房設計圖,告別土氣養老房,讓人忍不住點贊
閱讀次數:350581次
新農村二層樓房圖片造價12萬,挑一套回家建房吧!
閱讀次數:349126次
