
|
隨著社會的發展,房子的款式越來越多,特別是歐式別墅盛行的今天,但小編還是鐘愛徽式建筑,那份與世無爭的淡雅。今天給大家推薦2款2019年新款農村新中式徽系別墅設計戶型圖,一磚一瓦都令人心生向往! 第一款 帶飄窗二層徽系別墅設計圖 戶型介紹 占地面積:12.76m*13.78m,175平方米左右; 建筑層高:二層;建筑高度:9.88米(含屋頂);
2019年新款徽式新農村二層樓房設計圖,黑瓦白墻,飛檐翹角,層疊有序,清雅簡淡,有著古典建筑的神韻,從意識形態上給人感覺典雅,富有文化色彩 設計功能:
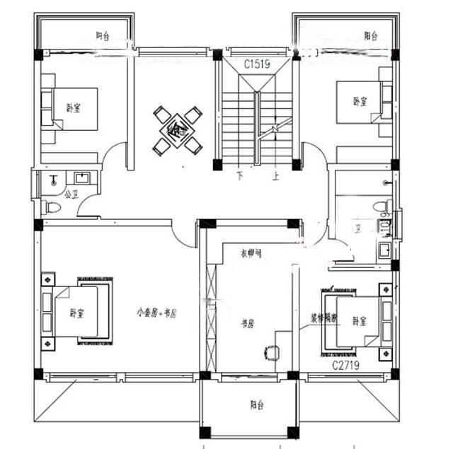
一層平面圖 一層戶型:客廳、餐廳、廚房、衛生間、主臥、公衛;
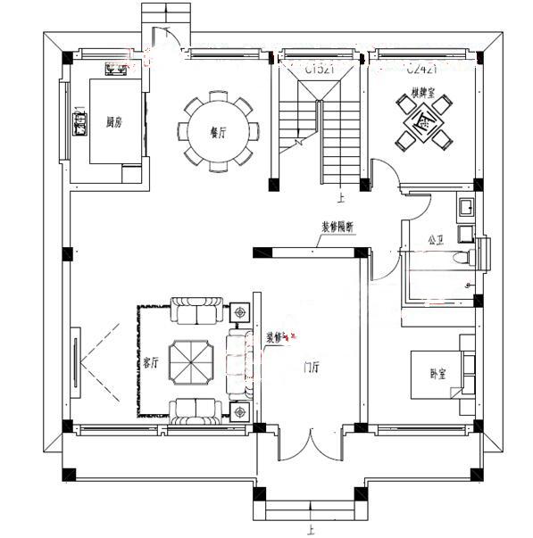
二層平面圖 二層戶型:主臥(帶衛生間、書房、陽臺)、臥室×3、公衛、棋牌室; 第二款 帶小露臺三層中式別墅住宅設計圖 戶型介紹 占地面積:11.0m*12.0m,一層占地127平方米左右;建筑層高:三層;建筑高度:14.1米(含屋頂);
130平米徽式古典風格的三層自建房屋別墅設計圖紙,戶型合極佳,適合居住。古香古色的建筑,讓人仿佛置身于古代,給現代的都市增添一抹古典的韻味。 設計功能:
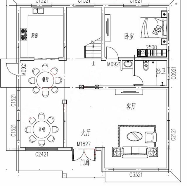
一層平面圖 一 層:客廳、廚房、餐廳、茶吧、臥室、衛生間;
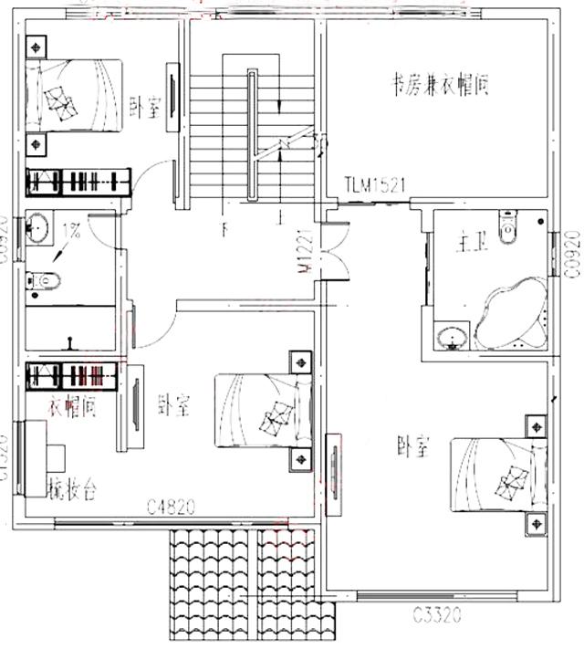
二層平面圖 二 層:臥室(帶衣帽間)、臥室(帶主衛,書房)、臥室、衛生間;
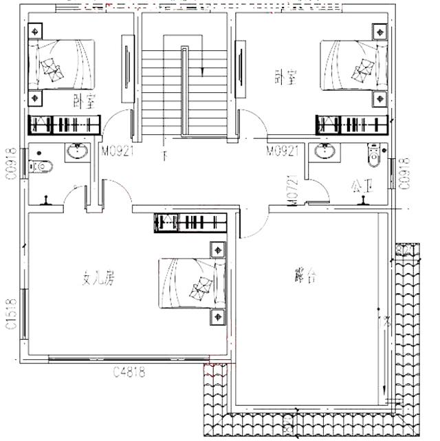
三層平面圖 三 層:女兒房(帶衛生間)、臥室×2、公衛、露臺; 圖紙之家-專注農村別墅/自建房設計18年,集合國內200余位經驗豐富的設計師,被評為口碑最好的農村建筑設計公司! |

新中式農村自建二層別墅設計圖,占地160平米左右,客廳中空
占地:160平方米
12米×10米左右一層別墅平房戶型圖及設計圖,造價低
占地:110平方米
中式二層三合院設計圖紙含外觀效果圖片,大氣又實用
占地:216.04平方米
大氣農村一層自建別墅方案,絕對讓人羨慕的“平房”
占地:158.39平方米
15×10米農村二層四合院自建房戶型圖,小型四合院設計圖
占地:150平方米
12x13米豪華三層農村別墅設計圖,宅基地上的貴族人生
占地:156平方米
農村中式兩層雙拼別墅房屋設計圖,含效果圖片
占地:200平方米
占地105平實用三層樓房別墅設計圖紙,造型方正簡單大氣
占地:105平方米
160平方米三層帶大露臺的復式別墅設計圖紙
占地:155平方米
帶庭院的農村一層別墅圖紙設計,外觀時尚好看
占地:多戶型可選
帶地下室一層別墅設計方案,功能布局齊全實用
占地:256.5平方米
農村三間兩層樓房設計圖,背面不開窗,氣勢上就勝人一籌
占地:153.7平方米
一層自建別墅設計圖,占地70平不大功能很齊全,非常適合農村養
占地:69.61平方米
歐式二層農村別墅設計圖,140平方米戶型方正的好方案
占地:142.51平方米
高端豪華三層別墅住宅設計方案圖,歐式外觀風格
占地:170平方米
面寬15米大氣的農村二層復式戶型別墅設計圖紙及外觀圖片
占地:173.28平方米
簡約精致的二層房子設計圖,農村自建經濟實用
占地:89.76平方米
農村小別墅一層設計圖紙,全套施工圖兩款戶型可選
占地:多種戶型可選
帶車庫三間復式三層樓房設計圖,外觀精致、大方
占地:150平方米
歐式四層(三層半)獨棟別墅設計圖復式,設計豪華時尚
占地:194平方米
推薦:10套新農村自建房設計圖,2026年最新設計
閱讀次數:4825737次
100套鄉村別墅圖片大全,2026年最新設計
閱讀次數:2492203次
6款農村蓋一層平房的設計圖,10萬元就能建起來
閱讀次數:1852637次
這11個一層農村自建房別墅火爆了朋友圈!我最喜歡戶型十!你呢
閱讀次數:750268次
農村6萬元建一層小別墅圖,你敢相信嗎
閱讀次數:567686次
農村5萬塊就能自建房,6套普通房子設計圖分享,你沒看錯!
閱讀次數:419410次
8套農村漂亮三間平房圖片,非常適合在農村修建!
閱讀次數:411197次
農村自建房化糞池怎么做?附方案及施工過程
閱讀次數:391783次
農村一層三間平房設計圖,告別土氣養老房,讓人忍不住點贊
閱讀次數:350581次
新農村二層樓房圖片造價12萬,挑一套回家建房吧!
閱讀次數:349126次
