
|
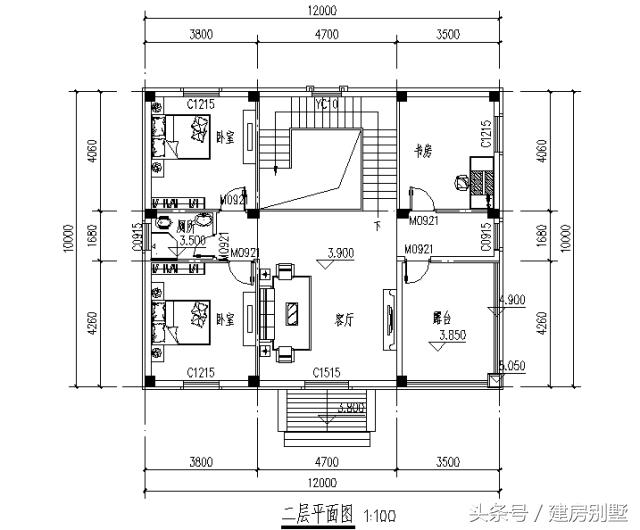
【項目名稱】:12X10帶車庫兩層小別墅
圖紙之家-專注農村別墅/自建房設計18年,集合國內200余位經驗豐富的設計師,被評為口碑最好的農村建筑設計公司! |

豪華三層別墅設計圖紙,全套施工方案帶效果圖
占地:130平方米
人字坡紅磚一層別墅設計圖,簡約低調超實用,這樣的房子人人能
占地:136.51平方米
100平方三層樓房設計圖及圖片,戶型設計簡約時尚
占地:100平方米
二層樓房圖片及施工圖紙,占地160平米左右,帶車庫
占地:160平方米
最新款二層半別墅圖片,占地115平米左右,帶地下室,帶露臺
占地:115平方米
私人二層中式四合院別墅建筑設計圖,新農村經濟實用戶型
占地:145平方米
新農村兩層樓房設計圖,占地110平米,戶型簡單實用
占地:110平方米
130平氣派美觀的二層別墅房屋設計圖,含效果圖
占地:130平方米
簡單時尚二層住宅設計圖紙,簡單的設計,不平凡的視覺感受
占地:110平方米
120平帶車庫二層農村別墅施工圖,簡約時尚的外觀
占地:119.13平方米
簡單實用二層雙拼樓房設計圖,造價30萬左右
占地:180平方米
農村二層帶閣樓四間別墅設計圖,外觀美觀,戶型實用
占地:175平方米
簡單質樸三層新農村小別墅設計圖紙,別墅圖片,戶型簡單合理實
占地:120平方米
帶庭院的農村一層別墅圖紙設計,外觀時尚好看
占地:多戶型可選
歐式兩層別墅樓房設計圖紙施工方案,高端豪華外觀圖片
占地:138平方米
農村自建房設計圖,三層房屋設計圖及效果圖
占地:120平方米
復式別墅農村四層霸氣豪宅設計圖紙,建好你就是村里第一
占地:136.356平方米
簡約實用農村自建房戶型圖,美觀經濟又通透,南北通透住得爽!
占地:160.6平方米
簡單實用的二層雙拼別墅設計圖,總占地150平米左右,雙拼房屋
占地:150平方米MB
帶堂屋二層小別墅設計圖紙帶外觀圖,13.6米x9米
占地:122.4平方米
推薦:10套新農村自建房設計圖,2026年最新設計
閱讀次數:4825737次
100套鄉村別墅圖片大全,2026年最新設計
閱讀次數:2492203次
6款農村蓋一層平房的設計圖,10萬元就能建起來
閱讀次數:1852637次
這11個一層農村自建房別墅火爆了朋友圈!我最喜歡戶型十!你呢
閱讀次數:750268次
農村6萬元建一層小別墅圖,你敢相信嗎
閱讀次數:567686次
農村5萬塊就能自建房,6套普通房子設計圖分享,你沒看錯!
閱讀次數:419410次
8套農村漂亮三間平房圖片,非常適合在農村修建!
閱讀次數:411197次
農村自建房化糞池怎么做?附方案及施工過程
閱讀次數:391783次
農村一層三間平房設計圖,告別土氣養老房,讓人忍不住點贊
閱讀次數:350581次
新農村二層樓房圖片造價12萬,挑一套回家建房吧!
閱讀次數:349126次
