
|
以前農村蓋房子,都是隨便找一個小的施工隊,家家戶戶的房子基本上都一樣,也不講究什么好看不好看的,住著舒適就行。但是現在就不一樣了,現在大家的生活條件都變好了,所以房子也想建的好看點,不想
第一款:小開間三層中式別墅設計圖,外觀優雅大氣
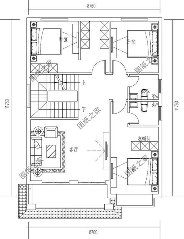
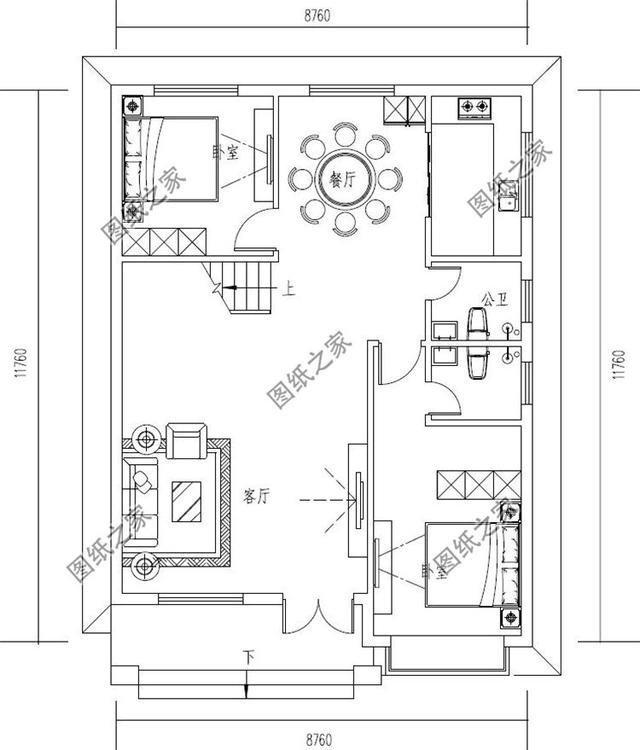
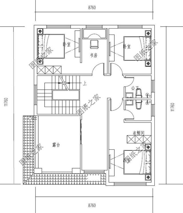
![]() 圖紙介紹:本戶型占地103平方米,小開間別墅,外觀看上去優雅大氣,簡潔大方,戶型方正,沒有花哨的裝飾,內部布局合理,符合農村建造。 占地面積:8.76m*11.76m,103.176平方米左右; 建筑層高:三層; 建筑高度:13.167米(含屋頂); 設計功能: 一層戶型:客廳、餐廳、衛生間、臥室(帶衛生間)、臥室; 二層戶型:客廳、衣帽間、臥室x2、臥室(帶衛生間、衣帽間)、衛生間、陽臺; 三層戶型:臥室(帶衛生間、衣帽間)、臥室x2、書房、露臺; ![]() ![]() ![]() 第二款:面寬13米三層中式別墅設計圖,占地200平米左右
![]() 圖紙介紹:這款面寬13米獨棟三層新中式別墅一層東側部分設計為兩間臥室和兩個衛生間,方便日常起居使用;二樓布置了三間臥室;三樓以娛樂待客功能為主,設置棋牌室、影音室,大大提升室內休閑功能;南向大露臺為家中晾曬提供了場地,也可以作為室外休閑區域加以使用。 占地面積:13.1m*16.5m,201.25平方米左右; 建筑層高:三層; 建筑高度:13.151米(含屋頂); 設計功能: 一層戶型:客廳、土灶間、洗衣房、廚房、餐廳、臥室(帶衛生間)、臥室、衛生間; 二層戶型:客廳上空、客廳、茶室、臥室(帶衛生間)x2、臥室、衛生間、陽臺; 三層戶型:客廳、棋牌室、影音室、臥室(帶衛生間)x2、露臺x2; ![]() ![]() ![]() 第三款:農村新中式三層別墅設計圖,外觀漂亮
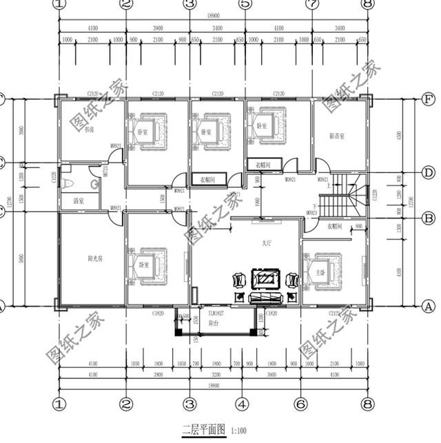
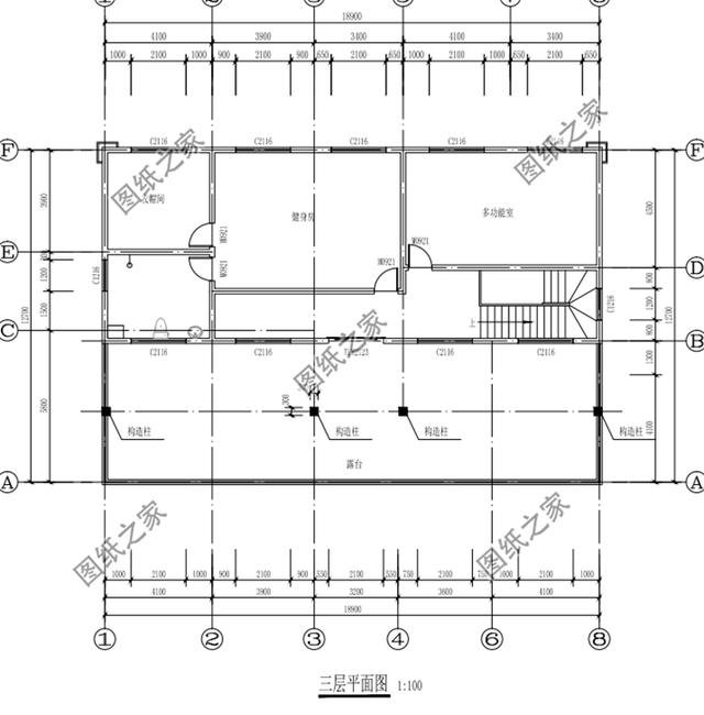
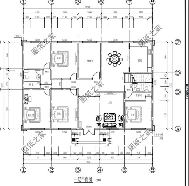
![]() 圖紙介紹:這款中式三層別墅占地240平米,別墅外觀亮麗,大氣豪華,讓人看一眼就愛上;內部布局合理,功能齊全,三樓有大露臺設計。 占地面積:18.9m*12.7m,一層占地240平方米左右; 建筑層高:三層; 建筑高度:12.4米(含屋頂); 設計功能: 一 層:客廳、廚房、餐廳、臥室(帶衣帽間)、臥室×3、儲藏室、衛生間×2; 二 層:客廳、臥室(帶衣帽間)×3、臥室x2、衛生間、書房、影音室、陽臺; 三 層:健身房、衣帽間、多功能室、衛生間、大露臺; ![]() ![]() ![]() 如果有喜歡的朋友可以參考。
圖紙之家-專注農村別墅/自建房設計18年,集合國內200余位經驗豐富的設計師,被評為口碑最好的農村建筑設計公司! |

歐式二層別墅平面圖,全套cad設計圖紙和外觀效果圖
占地:202平方米
時尚二層現代風別墅設計圖紙,平屋頂方案13×10米
占地:98平方米
歐式豪華三層別墅設計圖,占地面積170平米,高端大氣帶露臺
占地:170平方米
歐式二層別墅cad施工圖紙,含效果圖,歐式別墅設計圖紙展示
占地:189平方米
歐式三層小洋樓設計圖,歐式最美三層別墅外觀效果圖
占地:124.28平方米
120平方三層房子設計圖,漂亮實用農村自建小別墅設計圖
占地:120平方米
經典三層農村房屋設計圖紙,占地100平米左右,外觀典雅精致,內
占地:100平方米
兄弟合建房新農村三層雙拼別墅建筑圖紙及效果圖,300平方米
占地:301平方米
125平自建房設計圖二層戶型,建房選這款準沒錯
占地:124.04平方米
占地110平米兩層半農村房子設計圖,簡單實用
占地:110.25平方米
簡單時尚二層住宅設計圖紙,簡單的設計,不平凡的視覺感受
占地:110平方米
130平新農村三層房屋設計圖紙,預算30萬以內,蓋房推薦
占地:132平方米
一層農村自建房設計圖,造型美觀大氣,占地150平
占地:153.415平方米
2026新農村三層雙拼房屋設計圖紙平面圖與效果圖,帶堂屋
占地:190平方米
新農村雙拼別墅全套設計圖方案及效果圖,餐廳廚房獨立設計
占地:338.02平方米
120平米農村40萬三層別墅自建房款式,簡歐風格
占地:120平方米
經典農村三層樓房設計圖,10個不同尺寸戶型,各種戶型供您選擇
占地:多種
二層新農村自建房設計圖,帶外觀效果圖
占地:140平方米
兩戶190平方米新農村雙拼別墅全套設計方案及效果圖
占地:191平方米
三層別墅設計施工圖紙(含外觀效果圖)帶大露臺
占地:160平方米
推薦:10套新農村自建房設計圖,2026年最新設計
閱讀次數:4825737次
100套鄉村別墅圖片大全,2026年最新設計
閱讀次數:2492203次
6款農村蓋一層平房的設計圖,10萬元就能建起來
閱讀次數:1852637次
這11個一層農村自建房別墅火爆了朋友圈!我最喜歡戶型十!你呢
閱讀次數:750268次
農村6萬元建一層小別墅圖,你敢相信嗎
閱讀次數:567686次
農村5萬塊就能自建房,6套普通房子設計圖分享,你沒看錯!
閱讀次數:419410次
8套農村漂亮三間平房圖片,非常適合在農村修建!
閱讀次數:411197次
農村自建房化糞池怎么做?附方案及施工過程
閱讀次數:391783次
農村一層三間平房設計圖,告別土氣養老房,讓人忍不住點贊
閱讀次數:350581次
新農村二層樓房圖片造價12萬,挑一套回家建房吧!
閱讀次數:349126次
