
|
由于大多數地區宅基地都受到限制,導致很多朋友們建房子就發了愁,不知道戶型小該怎么建房好看,千萬不要著急,今天小編就給大家找了幾款150平米以內三層別墅設計圖,絕對的好戶型,外觀大氣時尚,內部布局合理,功能齊全,關鍵是造價經濟實惠,適合咱農村建造。
戶型一:農村三層豪華別墅設計圖,占地不到138平米左右
![]() 圖紙介紹:這款三層別墅占地138平方米左右,造價30來 占地面積:12.00m*11.5m,138平方米左右; 建筑層高:三層; 建筑高度:13.9米(含屋頂); 設計功能: 一 層:客廳、廚房、餐廳、臥室(帶衛生間)、臥室、衛生間; 二 層:客廳、臥室(帶衛生間)、臥室x2、書房、衛生間、陽臺; 三 層:客廳、臥室(帶衛生間)、臥室、書房、大露臺、陽臺; ![]() ![]() ![]() 戶型二:農村三層別墅設計圖,帶地下室設計
![]() 圖紙介紹:這款獨棟復式三層別墅占地134平方米左右,造價30來萬,帶地下室設計,一樓有入戶門廳,二樓有陽臺、三樓均有露臺。外觀時尚簡約,很多農村朋友表示非常喜歡。 占地面積:14.14m*9.64m,134平方米左右; 建筑層高:三層; 建筑高度:12.6米(含屋頂); 設計功能: 地下室:功能自理; 一層戶型:門廳、客廳、餐廳、廚房、臥室(帶衛生間)、衛生間; 二層戶型:客廳上空、起居室、臥室、臥室(帶衛生間)、臥室(帶衣帽間)、衛生間、陽臺; 三層戶型:客廳、臥室x2、臥室(帶衛生間)、衛生間、露臺; ![]() ![]() ![]() ![]() 戶型三:農村三層別墅設計圖,占地146平方米左右,造價30來萬
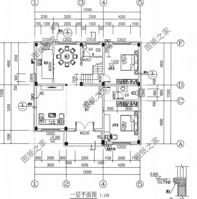
![]() 圖紙介紹:本戶型占地146平方米左右,歐式外觀設計,外觀簡約大氣,復式落地窗,增強室內采光;室內布局合理齊全,適合農村自建。 占地面積:11.9m*12.38m,146平方米左右; 建筑層高:三層; 建筑高度:14.19米(含屋頂); 設計功能: 一層戶型:客廳、神位、餐廳、廚房、臥室(帶衛生間)、臥室、衛生間; 二層戶型:客廳上空、起居室、臥室(帶衛生間)、臥室(帶書房衣帽間)、臥室、衛生間、陽臺; 三層戶型:起居室、臥室(帶書房衣帽間)、臥室(帶衛生間)、臥室、衛生間、露臺; ![]() ![]() ![]() 不知道這幾套別墅的設計圖,大家最喜歡哪一套?
圖紙之家-專注農村別墅/自建房設計18年,集合國內200余位經驗豐富的設計師,被評為口碑最好的農村建筑設計公司! |

新款農村四層復式別墅設計圖紙及效果圖,外立面清新別致
占地:207平方米
帶地下室的農村三層雙拼別墅設計圖,復式戶型,面寬23米
占地:261.6平方米左右
120平米農村三層房屋設計圖,客廳中空,戶型合理
占地:120平方米
經典二層農村自建房屋別墅設計圖紙,占地110平米左右
占地:110平方米
240平方米新農村四合院兩層樓房施工設計圖紙帶外觀圖
占地:234平方米
農村2026新式三間二層樓房,12×11.6米,戶型經典,造價實惠
占地:120平方米
私家二層農村自建房設計圖及效果圖,造價20萬左右
占地:125平方米
155平方米新三層全套別墅設計資料,15x10米
占地:158平方米
110平方米農村兩層別墅設計效果圖及圖紙,12X12米
占地:110平方米
獨立餐廳廚房,平屋頂現代風格三層別墅設計圖
占地:159.02平方米
30萬以下的經典二層新農村別墅設計圖紙及效果圖,簡單大氣
占地:170平方米
帶配房的農村三層別墅設計圖,全家享精致生活
占地:167.29平方米
鄉村最美三層別墅設計圖自建房戶型,外觀圖精致漂亮
占地:134平方米
一層半帶閣樓別墅設計圖,悠閑舒適,養老度假皆可
占地:161.94平方米
100平內簡單精致的小戶型自建房二層設計圖,旋轉樓梯
占地:97.08平方米
小面寬的農村簡單四層2建平屋頂別墅設計圖,農村自建房首選
占地:109.29平方米
四開間兩層別墅設計圖,農村自建住著舒適的好方案!
占地:187.04平方米
三層兄弟雙拼別墅設計圖,外觀大氣漂亮,顏色搭配協調,一層為
占地:270平方米
鄉村仿古一層別墅圖片及設計圖,經典實用,占地170平
占地:170平方米
150平方米大平層別墅設計圖,時尚大氣舒適實用
占地:149.43平方米
推薦:10套新農村自建房設計圖,2026年最新設計
閱讀次數:4825737次
100套鄉村別墅圖片大全,2026年最新設計
閱讀次數:2492203次
6款農村蓋一層平房的設計圖,10萬元就能建起來
閱讀次數:1852637次
這11個一層農村自建房別墅火爆了朋友圈!我最喜歡戶型十!你呢
閱讀次數:750268次
農村6萬元建一層小別墅圖,你敢相信嗎
閱讀次數:567686次
農村5萬塊就能自建房,6套普通房子設計圖分享,你沒看錯!
閱讀次數:419410次
8套農村漂亮三間平房圖片,非常適合在農村修建!
閱讀次數:411197次
農村自建房化糞池怎么做?附方案及施工過程
閱讀次數:391783次
農村一層三間平房設計圖,告別土氣養老房,讓人忍不住點贊
閱讀次數:350581次
新農村二層樓房圖片造價12萬,挑一套回家建房吧!
閱讀次數:349126次
