
別墅設計圖一:125平方米新中式農村自建三層別墅建筑設計圖紙及效果圖
![]() 別墅效果圖
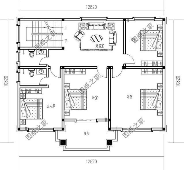
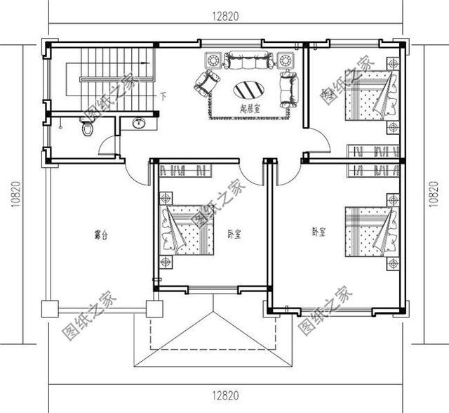
圖紙介紹:125平方米新中式農村自建三層別墅建筑設計圖紙及效果圖,外觀簡潔干凈,造型美觀,別墅外觀采用乳白色外墻漆搭配朱紅色的外墻漆,色調溫馨,具有家的歸屬感。落地式的門窗增加了別墅的通透性。頂層利用露臺和陽臺來塑造外觀的層次感 占地面積:12.82m*10.82m,124平方米左右; 建筑層高:三層; 建筑高度:12.32米(含屋頂); 設計功能: 一層戶型:玄關、神位、客廳、餐廳、廚房、棋牌室、父母房(帶衛生間)、衛生間; 二層戶型:起居室、主人房(帶衛生間)、臥室x3、衛生間、陽臺; 三層戶型:起居室、臥室x3、衛生間、露臺; ![]() ![]() ![]() 別墅戶型圖
別墅設計圖二:新中式農村小別墅設計圖及效果圖
![]() 別墅效果圖
圖紙介紹:35萬左右的農村小別墅設計圖及效果圖,新中式風格,農村建房首選中式別墅,洋別墅看得多了,就沒新鮮感了,還是中式別墅最合心意,耐看不過時,布局也比較接地氣,更符合我們的居住要求,別墅多窗的設計采光通透,外型線條簡潔明朗,配色溫暖,現代與中式元素完美融合,給人一種溫馨舒適家的感覺。 占地面積:12m*11.3m,137平方米左右; 建筑層高:三層; 建筑高度:11.28米(含屋頂); 設計功能: 一層戶型:前廳、客廳、餐廳、廚房、儲藏室x2、電腦房、縫紉臺、仙人臺、老人房(帶衛生間)、衛生間; 二層戶型:客廳、臥室(帶衛生間)x2、嬰兒房、書房、陽臺; 三層戶型:臥室(帶衛生間)、儲物室、娛樂室、陽光房、衛生間、露臺; ![]() ![]() ![]() 別墅戶型圖
別墅設計圖三:110平方米農村三層自建房設計圖紙帶外觀圖
![]() 別墅效果圖
圖紙介紹:110平方米農村三層自建房設計圖紙帶外觀圖,典型中式風格,外觀極美,外型線條簡潔明朗,村里人都搶著蓋,您也一定會喜歡。別墅中式韻味十足。配色簡單大方。別墅帶有大露臺,蓋一棟就是享受 占地面積:11.8m*9.2m,110平方米左右; 建筑層高:三層; 建筑高度:12.46米(含屋頂); 設計功能: 一層戶型:客廳、堂屋、神位、臥室(帶衛生間)、臥室、棋牌室、衛生間; 二層戶型:書房、臥室(帶衛生間)、臥室x2、創作室、衛生間; 三層戶型:臥室、儲藏室、書房、娛樂區、創作室、衛生間、陽臺; ![]() ![]() ![]() 別墅戶型圖
以上就是最好看的農村三層樓房,有沒有你喜歡的,歡迎下方留言。
圖紙之家-專注農村別墅/自建房設計18年,集合國內200余位經驗豐富的設計師,被評為口碑最好的農村建筑設計公司! |

三層奢華歐式別墅圖片及全套設計圖,帶地下室和車庫
占地:208平方米左右
蓋別墅圖紙新農村簡歐二層房屋設計圖,12米×12米左右
占地:128平方米左右
復式樓房二層農村別墅圖,村里建一棟絕對人人都羨慕
占地:130.2平方米
2026新款農村四層別墅設計圖紙戶型圖,帶挑空客廳
占地:150平方米
簡單大方二層小別墅設計圖,占地180平米,造型美觀,構造整齊有
占地:180平方米
農村一層平房別墅設計施工圖效果圖,外觀簡約時尚,17萬到19萬
占地:168平方米
私人二層農村小樓設計圖,外觀靚麗,富有現代氣息
占地:160平方米
豪華新中式兩層半農村別墅設計圖,繁華之外,心之所向
占地:290.4平方米
簡單現代平屋頂兩層四間自建樓房設計圖紙施工方案,簡潔又實用
占地:192平方米
鄉村二層簡歐小戶型別墅圖設計,占地90平方米左右
占地:92.12平方米
農村中式二層4開間別墅圖紙設計方案圖,帶車庫戶型
占地:198平方米
農村七字型一層別墅圖,獨立廚房設計,鄉村建房優選戶型
占地:159.76平方米
面寬18米二層農村大別墅設計圖,可帶電梯,舒適又實用
占地:138.29平方米
超實用超現代兩層自建小樓圖,純粹極簡風格
占地:184平方米左右
三層兄弟雙拼別墅設計方案,外觀大氣布局實用,住的舒服
占地:197.67平方米
現代一層(帶悶頂)別墅住宅設計圖,外觀現代時尚
占地:160平方米
新中式三層別墅設計圖紙(含效果圖),110平農村自建房施工圖推
占地:110平方米
12×11米兩層農村建房圖紙,農村建房最佳戶型,簡單的風格
占地:140平方米
巴洛克風格別墅設計圖紙及效果圖,農村建一棟想低調都難
占地:256平方米左右
60多平三層現代風格別墅設計圖,小戶型平屋頂
占地:66.4平方米
推薦:10套新農村自建房設計圖,2026年最新設計
閱讀次數:4825737次
100套鄉村別墅圖片大全,2026年最新設計
閱讀次數:2492203次
6款農村蓋一層平房的設計圖,10萬元就能建起來
閱讀次數:1852637次
這11個一層農村自建房別墅火爆了朋友圈!我最喜歡戶型十!你呢
閱讀次數:750268次
農村6萬元建一層小別墅圖,你敢相信嗎
閱讀次數:567686次
農村5萬塊就能自建房,6套普通房子設計圖分享,你沒看錯!
閱讀次數:419410次
8套農村漂亮三間平房圖片,非常適合在農村修建!
閱讀次數:411197次
農村自建房化糞池怎么做?附方案及施工過程
閱讀次數:391783次
農村一層三間平房設計圖,告別土氣養老房,讓人忍不住點贊
閱讀次數:350581次
新農村二層樓房圖片造價12萬,挑一套回家建房吧!
閱讀次數:349126次
