
|
隨著中國土地政策的規范化,現在對農村自建房的宅基地面積和層數都有了嚴格的要求,各地區的要求略有差異,但是基本上不能超過三層,在農村三層也是最合理的,剛好夠用不會浪費。下面分享這棟三層別墅:
簡單經典小別墅外觀實景素淡典雅,整體色彩勻稱外觀大氣明朗,頂層坡屋頂的錯落有序更給整棟房屋增加了一絲靈氣,一切有條不紊主次分明。
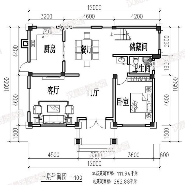
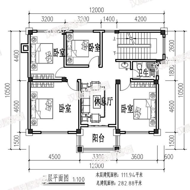
開間12米,進深10.5米,占地面積為111.94平米,總建筑面積為 282.88平米
平面圖 入戶門廳,左有客廳和廚房,右有儲藏間和臥室,中間為餐廳。開間和進深比較合理,戶型方正好看。總設計功能有 7臥室、1餐廳、1廚房、2客廳、3衛生間、1儲藏間
圖紙之家-專注農村別墅/自建房設計18年,集合國內200余位經驗豐富的設計師,被評為口碑最好的農村建筑設計公司! |

廚房在前,簡約歐式二層農村自建別墅設計圖,戶型個性
占地:143.69平方米
豪華大氣三層農村自建房設計圖,經典大氣,百看不厭,新中式風
占地:141.75平方米
新中式三層別墅,旋轉樓梯+挑空客廳,高級感拉滿
占地:125平方米
13×10米現代簡約風格三層別墅圖,坡屋頂和平屋頂完美結合
占地:120平方米
中國最好看的二層農村房子圖片及施工圖紙,20萬現代風格
占地:130平方米
二層帶地下室樓房設計方案,效果圖+全套施工圖
占地:160平方米
簡單的復式住宅設計圖,客廳挑高,帶外觀效果圖片
占地:148平方米
新農村自建三層樓房設計圖紙,外觀簡單大方
占地:137平方米
鄉下三層大氣房子設計圖,外觀挺高大上的,主體29萬多
占地:132.48平方米
面寬13米二層鄉村自建別墅戶型圖,帶堂屋和露臺
占地:135.47平方米
兩層中式三合院別墅設計圖紙,堂屋套臥全都有,蓋一棟面子十足
占地:181.93平方米
帶車庫新農村二層四間別墅設計效果圖帶全套建筑施工圖,217平方
占地:217.21平方米
2026年經典新中式三層別墅設計圖紙,新款自建房戶型圖
占地:158.19平方米
小L型新款二層別墅設計圖,復式客廳旋轉樓梯,14米乘13米
占地:182平方米
小型三層別墅cad建筑圖紙帶效果圖,帶屋頂露臺
占地:101平方米左右
面寬8米多小開間三層農村別墅設計圖,占地不足百平
占地:95.21
美式田園二層別墅設計方案圖,全套設計圖+效果圖
占地:235平方米
新農村一層平屋頂簡單自建房別墅設計圖紙,全套設計
占地:130平方米
農村二層舒適好房,這款四開間別墅設計圖真的很不錯
占地:220.46平方米
帶車庫帶露臺二層農村小別墅設計圖,宅基地大小適中,外觀造型
占地:180平方米
推薦:10套新農村自建房設計圖,2026年最新設計
閱讀次數:4825737次
100套鄉村別墅圖片大全,2026年最新設計
閱讀次數:2492203次
6款農村蓋一層平房的設計圖,10萬元就能建起來
閱讀次數:1852637次
這11個一層農村自建房別墅火爆了朋友圈!我最喜歡戶型十!你呢
閱讀次數:750268次
農村6萬元建一層小別墅圖,你敢相信嗎
閱讀次數:567686次
農村5萬塊就能自建房,6套普通房子設計圖分享,你沒看錯!
閱讀次數:419410次
8套農村漂亮三間平房圖片,非常適合在農村修建!
閱讀次數:411197次
農村自建房化糞池怎么做?附方案及施工過程
閱讀次數:391783次
農村一層三間平房設計圖,告別土氣養老房,讓人忍不住點贊
閱讀次數:350581次
新農村二層樓房圖片造價12萬,挑一套回家建房吧!
閱讀次數:349126次
