
|
農村建房已經成了一種很普遍的現象,誰家的房子設計的好看,建得大氣,不僅家里人走出去有面子。就連親戚都會時常來上門做做客,用著羨慕的語氣跟你聊聊天。今天給大家分享5套農村建房案例展示,看看別人的別墅夢,隨便一套都秒殺城里豪宅! 編號: DC0149 層數: 三層 結構形式: 磚混結構 主體造價: 40-45萬 開間: 15.6米 進深: 10.3米 占地面積:143.38平方米 建筑面積:435.4平方米
一 層:堂屋、客廳、臥室(附衛生間)、廚房、餐廳、衛生間、車庫 二 層:起居室、臥室(附陽臺)、臥室(附衛生間)、2臥室、衛生間、陽臺 三 層:起居室、娛樂廳、臥室(附衛生間)、書房(附陽臺)、衛生間、露臺 建房案例
編號: DC0159 層數: 二層 結構形式: 磚混結構 主體造價: 24-28萬 開間: 14.34米 進深: 11.34米 占地面積: 157.59平方米 建筑面積: 290.71平方米
一 層:門廳、客廳、2臥室、廚房、餐廳、衛生間、車庫 二 層:主臥室(附衛生間,陽臺)、臥室(附陽臺)、臥室(附書房)、臥室、棋牌室、衛生間 建房案例
編號: DC0218 層數: 三層 結構形式: 框架結構 主體造價: 35-42萬 開間: 11.8米 進深: 12.5米 占地面積: 134.94平方米 建筑面積: 360.63平方米
一 層:客廳(中空)、臥室(附衛生間)、棋牌室、廚房、餐廳、衛生間 二 層:會客廳(附露臺)、多功能廳、臥室(附衛生間)、2臥室、衛生間 三 層:多功能廳、棋牌室、臥室(附衛生間)、2臥室、衛生間、露臺 建房案例
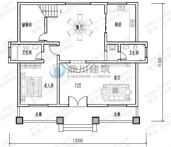
編號: DC0356 層數: 二層帶閣樓 結構形式: 磚混結構 主體造價: 28-33萬 開間: 13.2米 進深: 11.3米 占地面積: 138平方米 建筑面積: 314.53平方米
一 層:走廊、門廳、客廳、臥室(附衛生間)、廚房、餐廳、衛生間、儲物間 二 層:起居室、臥室(附衛生間,陽臺)、臥室(附陽臺)、臥室、書房、衛生間 閣 樓:2臥室、儲物間 建房案例
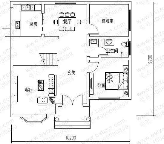
編號: DC0235 層數: 二層 結構形式: 磚混結構 主體造價: 18-22萬 開間: 10.2米 進深: 9.7米 占地面積: 96.6平方米 建筑面積: 193.2平方米
一 層:玄關、客廳、臥室、棋牌室、廚房、餐廳、衛生間 二 層:小客廳、臥室(附陽臺)、3臥室、衛生間 建房案例
以上5款戶型和它的案例,你覺得哪款適合你家呢? 圖紙之家-專注農村別墅/自建房設計18年,集合國內200余位經驗豐富的設計師,被評為口碑最好的農村建筑設計公司! |

150平二層別墅房屋設計圖,現代風格,造型精致
占地:150平方米
農村蓋房設計大全一層房子的設計圖紙,色調清新靚麗
占地:220平方米
20多萬的造價一層三合院農村自建房效果圖
占地:225.048平方米
帶車庫帶露臺二層農村小別墅設計圖,宅基地大小適中,外觀造型
占地:180平方米
現代三層農村房屋設計圖紙及效果圖,帶全套cad建筑圖
占地:95平方米
200平農村二層別墅設計圖,外觀現代簡約
占地:204平方米
獨棟二層別墅cad設計圖紙,平屋頂自建別墅方案精選
占地:190平方米
經典農村二層小別墅設計圖紙帶露臺(含外觀效果圖)
占地:110平方米
豪華大氣三層農村房屋設計圖,對稱的主體設計大氣恢宏
占地:240平方米
一層田園風坡屋頂平房設計圖,造型漂亮時尚
占地:134.9平方米
130平左右三層樓房設計圖,新農村住宅自建推薦
占地:128平方米
農村三層帶地下室小樓房設計圖,客廳中空,帶書房,旋轉樓梯
占地:130平方米
110平左右二層小洋樓設計圖,含效果圖片
占地:108平方米
農村自建房就選它!一層新中式設計,日常居住需求全搞定
占地:128.45平方米
時尚現代的二層農村別墅設計圖,年輕人建房的不二之選
占地:131.76平方米
新中式農村三層樓房設計圖紙,全套圖紙設計,線條錯落有致
占地:130平方米
農村一層平房別墅設計施工圖效果圖,外觀簡約時尚,17萬到19萬
占地:168平方米
160平方米左右二層自建別墅設計圖,對稱設計,23萬建好
占地:157平方米左右
三間三層樓房設計圖紙,復試的設計,漂亮的一塌糊涂
占地:175平方米
舒適大方三層房屋設計圖紙及圖片,占地150平米,布局合理,臥室
占地:150平方米
推薦:10套新農村自建房設計圖,2026年最新設計
閱讀次數:4825737次
100套鄉村別墅圖片大全,2026年最新設計
閱讀次數:2492203次
6款農村蓋一層平房的設計圖,10萬元就能建起來
閱讀次數:1852637次
這11個一層農村自建房別墅火爆了朋友圈!我最喜歡戶型十!你呢
閱讀次數:750268次
農村6萬元建一層小別墅圖,你敢相信嗎
閱讀次數:567686次
農村5萬塊就能自建房,6套普通房子設計圖分享,你沒看錯!
閱讀次數:419410次
8套農村漂亮三間平房圖片,非常適合在農村修建!
閱讀次數:411197次
農村自建房化糞池怎么做?附方案及施工過程
閱讀次數:391783次
農村一層三間平房設計圖,告別土氣養老房,讓人忍不住點贊
閱讀次數:350581次
新農村二層樓房圖片造價12萬,挑一套回家建房吧!
閱讀次數:349126次
