
|
現在的農村自建房設計現在比以前有了根本上的變化,以前農村的建房主要是從夠住人來考慮的,以前農村人口多,建房主要是滿足需要。很少從舒適性來考慮,也很少能有這個經濟實力去考慮,現在農村的經濟有了質的變化,人們也慢慢知道要從功能性的方面來設計房子了,大部分都是按商品房即套房設計布局,大都喜歡設計成別墅的樣子。 幾款二層別墅分享給大家: 【戶型1】
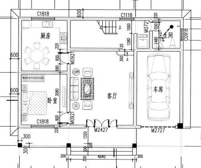
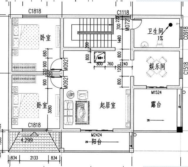
該戶型占地110平米左右,帶車庫設計,方便停放車輛,或者存放家庭農用工具。室內共設有2廳3室,適合小家庭的居住。 層數:二層 結構形式:磚混結構 主體造價:17-20萬 開間:12.6米 進深:9.9米 占地面積:111平方米 總建筑面積:257平方米
一層平面圖 一層:客廳、廚房兼餐廳、臥室、車庫、衛生間
二層平面圖 二層:起居室(帶陽臺)、2臥室、娛樂室、衛生間、露臺 【戶型2】
本戶型設計美觀大氣,主體采用黃色的外墻,搭配褐色文化石、紅色面磚、藍色坡屋頂、以及褐色的鐵藝欄桿、窗套、更顯尊貴。有拱形入戶門廊、雙露臺、車庫、二層的臥室功能多樣,舒適方便。 層數: 二層 結構形式: 框架結構 主體造價: 23-28萬 開間: 13米 進深: 11.1米 占地面積: 134.61平方米 總建筑面積: 261.34平方米 平面圖:
一層平面圖 一 層: 車庫、過道、客廳、廚房、餐廳、臥室(帶衛生間)、公衛
二層平面圖 二 層: 主臥(帶衛生間、書房、露臺)、次臥(帶露臺)、次臥(帶衛生間)、公衛、書房 【戶型3】
本戶型帶車庫設計,布局舒適,功能合理,透氣透風佳。 層數: 二層 結構形式: 磚混結構 主體造價: 20-25萬 開間: 14米 進深: 12.5米 占地面積: 175平方米 建筑面積: 350平方米 平面圖:
一層平面圖 一 層:門廳、客廳、臥室、廚房、餐廳、休息廳、衛生間、車庫
二層平面圖 二 層: 起居室、臥室(附衛生間,)、3臥室、書房、儲藏室、衛生間 圖紙之家-專注農村別墅/自建房設計18年,集合國內200余位經驗豐富的設計師,被評為口碑最好的農村建筑設計公司! |

120平方米現代新農村二層自建房設計圖,造型時尚好看
占地:120平方米
三層歐式豪華別墅設計方案,全套圖紙+效果圖
占地:168平方米
四層雙拼豪華別墅設計圖及外觀效果圖,貴族氣質爆棚
占地:188.5平方米
豪華高端三層帶地下室別墅設計圖,可帶電梯
占地:210平方米
2026兩層半20多萬農村自建房圖,簡歐風格,美觀大氣
占地:120平方米
?13.5x9米這尺寸火了!好多人家照著建這款二層別墅,簡單實用
占地:115.11平方米
帶地下室的一層別墅設計圖,農村自建很實用
占地:192平方米
8.5×12米四層歐式房屋設計圖紙,占地100平,落地窗中嵌入了雕花
占地:100平方米
農村二層帶車庫樓房設計圖,帶外觀效果圖片
占地:125平方米
二層農村房子圖片及全套施工圖紙,占地150平面左右
占地:150平方米
農村一層養老別墅設計圖,14.8x17.9米,戶型對稱,實用布局
占地:193平方米
簡單質樸三層新農村小別墅設計圖紙,別墅圖片,戶型簡單合理實
占地:120平方米
130平米徽式古典風格的三層自建房屋別墅設計圖紙,戶型合極佳,
占地:130平米
農村二層中式小三合院別墅全套設計圖,民族特色風格
占地:122平方米
130平左右三層樓房設計圖,新農村住宅自建推薦
占地:128平方米
帶地下車庫的三層別墅設計圖,160平復式戶型
占地:159.03平方米
150平方米的新農村自建三層小別墅設計施工圖紙及效果圖
占地:150平方米
農村16萬一層平房小院設計圖,左右對稱布局好,南北方都能建
占地:195.9平方米
160平方米農村二層四合院別墅設計圖及外觀圖片
占地:158平方米
100平內的三層豪華歐式別墅房屋設計圖紙 ,簡歐風格
占地:94平方米左右
推薦:10套新農村自建房設計圖,2026年最新設計
閱讀次數:4825737次
100套鄉村別墅圖片大全,2026年最新設計
閱讀次數:2492203次
6款農村蓋一層平房的設計圖,10萬元就能建起來
閱讀次數:1852637次
這11個一層農村自建房別墅火爆了朋友圈!我最喜歡戶型十!你呢
閱讀次數:750268次
農村6萬元建一層小別墅圖,你敢相信嗎
閱讀次數:567686次
農村5萬塊就能自建房,6套普通房子設計圖分享,你沒看錯!
閱讀次數:419410次
8套農村漂亮三間平房圖片,非常適合在農村修建!
閱讀次數:411197次
農村自建房化糞池怎么做?附方案及施工過程
閱讀次數:391783次
農村一層三間平房設計圖,告別土氣養老房,讓人忍不住點贊
閱讀次數:350581次
新農村二層樓房圖片造價12萬,挑一套回家建房吧!
閱讀次數:349126次
