
|
現在農村建房,建筑的舒適性、美觀性及實用性是大家考慮的關鍵,一個合理的設計能在建房的過程中省下很多財力、人力,今天這套戶型,占地尺寸不大不小 ,約有一百平米,適合大部分農村家庭建造。 該戶型設有超大落地窗,漂亮大氣,室內采光效果極佳,屋頂有大露臺,活動空間充足。書房設在三樓,安靜采光,也可以將書房做 其他功能房使用,如臥室、娛樂室等,功能具有靈活性。
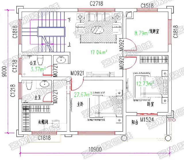
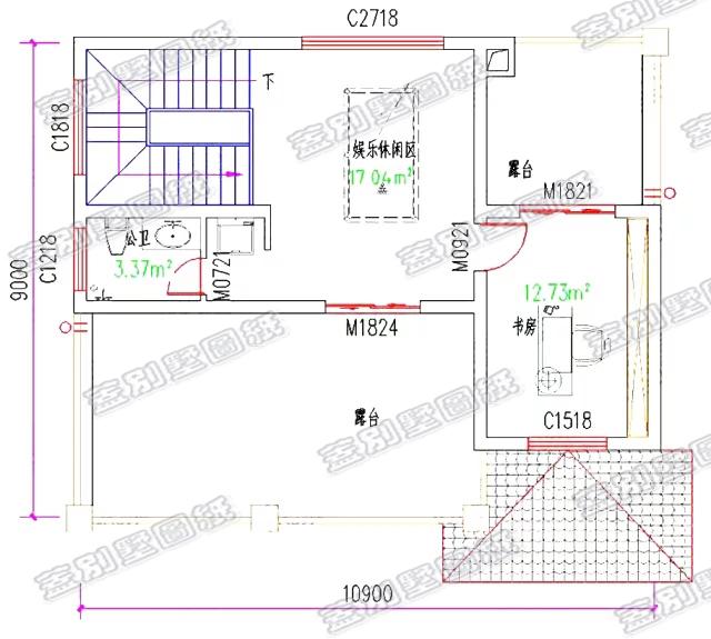
圖紙詳情 層數: 三層 結構形式:磚混結構 開間:10.9米 進深:9米 占地面積:98.31平方米 總建筑面積:253.89平方米 建筑高度:11.81米 主體造價:25萬 室內平面圖展示
一層平面圖 一層:門廳、客廳、餐廳、廚房、儲物間、公衛、臥室
二層平面圖 二層:客廳、主臥(帶主衛、衣帽間)、次臥(帶陽臺)、棋牌室、公衛
三層平面圖 三層:休閑娛樂廳、書房、露臺×2、公衛 圖紙之家-專注農村別墅/自建房設計18年,集合國內200余位經驗豐富的設計師,被評為口碑最好的農村建筑設計公司! |

2026最新款50萬左右農村三層別墅設計圖,客廳中空
占地:160平方米
帶車庫現代三層房屋別墅設計圖,占地110平米左右,功能齊全
占地:110平米
新中式農村兄弟合建三層雙拼別墅全套設計圖紙,3款戶型方案
占地:多種戶型
豪華三層歐式雙拼別墅設計圖紙,雙拼歐式別墅如何設計看這款
占地:258.294平方米
好看又簡單的二層樓房設計,經濟實用型的農村小別墅
占地:135平方米
人氣頗高的三層新中式別墅方案,五種戶型,五種尺寸
占地:120-165平方米
135平鄉村三層復式樓房設計圖,自建房推薦
占地:135平方米
140平方米農村三層復式房屋設計施工圖,開放式廚房
占地:143平方米
125平方米新農村三層自建別墅施工設計圖,13x10米
占地:125平方米
氣派的歐式風格三層房子設計圖紙,外觀圖太漂亮了
占地:132平方米
30萬農村小別墅設計圖片,30萬別墅設計戶型推薦
占地:130平方米
150平方米農村二層房屋建筑設計圖,15.2x9.4米
占地:148平方米
歐式獨棟二層小別墅設計圖,客廳中空,占地126平米
占地:120平方米
新農村私人別墅建筑設計施工圖,全套別墅設計圖紙
占地:多種戶型
歐式復式型三層別墅施工設計圖紙及效果圖大全
占地:164平方米
復式挑空二層別墅設計圖,占地175平米,建好住著很舒適
占地:175.44平方米
帶地下室的三層歐式別墅戶型設計圖,帶地下室農村自建房
占地:139.256平方米
200平方二層小別墅設計圖紙,含效果圖,歐式風格帶車庫
占地:197.6平方米
現代三層農村房屋設計圖紙及效果圖,帶全套cad建筑圖
占地:95平方米
中式徽派二層農村別墅設計圖,白墻黛瓦馬頭墻,永不過時
占地:171平方米
推薦:10套新農村自建房設計圖,2026年最新設計
閱讀次數:4825737次
100套鄉村別墅圖片大全,2026年最新設計
閱讀次數:2492203次
6款農村蓋一層平房的設計圖,10萬元就能建起來
閱讀次數:1852637次
這11個一層農村自建房別墅火爆了朋友圈!我最喜歡戶型十!你呢
閱讀次數:750268次
農村6萬元建一層小別墅圖,你敢相信嗎
閱讀次數:567686次
農村5萬塊就能自建房,6套普通房子設計圖分享,你沒看錯!
閱讀次數:419410次
8套農村漂亮三間平房圖片,非常適合在農村修建!
閱讀次數:411197次
農村自建房化糞池怎么做?附方案及施工過程
閱讀次數:391783次
農村一層三間平房設計圖,告別土氣養老房,讓人忍不住點贊
閱讀次數:350581次
新農村二層樓房圖片造價12萬,挑一套回家建房吧!
閱讀次數:349126次
