
|
有農村有一款帶露臺的別墅,在露臺上擺放家私,居高觀景,享受大自然,而不用遠行他方,寫意悠然,盡情休憩。正因為露臺在外壁突出,陽光充足,比室內適合蒔花栽草,曬衣待干。這樣的別墅美景,實在是一種享受。今天小編的這幾款別墅戶型,都帶有露臺,不管是住家還是度假都值得借鑒。 戶型一
開間:11.1米; 進深:9.6米; 占地面積:109.6平方米; 建筑面積:294.8平方米; 建筑層數:三層;
設計功能: 一層:客廳、臥室、廚房、餐廳、衛生間; 二層:3臥室、書房、衛生間; 二層:2臥室、書房、衛生間、客廳。 戶型二
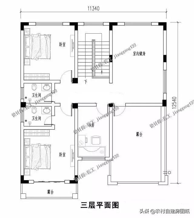
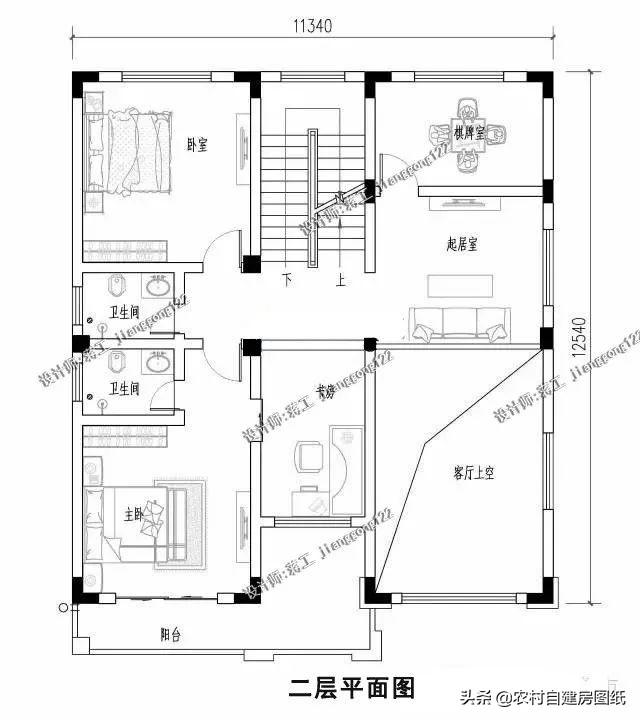
開間:11.1米; 進深:12.3米; 占地面積:137.78平方米; 建筑面積:414.19平方米; 建筑層數:三層;
設計功能: 一層:門廳、客廳、主臥室(帶衛生間)、臥室、廚房、餐廳、衛生間; 二層:臥室(附書房,衛生間)、臥室、娛樂廳、起居室、衛生間; 三層:臥室(衛生間),書房、臥室、室內健身、露臺。 戶型三
開間:15.5米; 進深:14.2米; 占地面積:277.65平方米; 建筑面積:674.88平方米; 建筑層數:三層;
設計功能: 一層:玄關、客廳、娛樂室、老人房(帶衛生間)、廚房、餐廳、儲藏室、洗衣房、雜屋間、衛生間; 二層:起居室、主臥室(帶衛生間)、客房(帶衛生間)、兒童房(帶衛生間)、書房; 三層:起居室、3臥室、3衛生間、陽光房、露臺。 戶型四
開間:10米; 進深:11米; 占地面積:115.5平方米; 建筑面積:202.44平方米; 建筑層數:二層;
設計功能: 一層:門廳、客廳、主臥(帶衛生間)、臥室、廚房、餐廳、衛生間; 二層:臥室(附書房)、臥室(附衛生間)、臥室、衛生間、露臺。 戶型五
開間:12.9米; 進深:11.4米; 占地面積:145.61平方米; 建筑面積:315.43平方米; 建筑層數:二層;
設計功能: 一層:玄關、客廳、臥室(帶衛生間、衣帽間)、臥室、廚房、餐廳、衛生間; 二層:起居室、主臥(衣帽間,衛生間,陽臺)、衛生間、露臺。 帶露臺的農村別墅在這兩年農村建房中都是比較受歡迎的戶型,隨著人們生活的生活水平越來越高,越來越注重生活品質,不管是二層還是三層的戶型,搭配上了露臺或者屋頂花園,都會使整個生活檔次提高一個層級。 圖紙之家-專注農村別墅/自建房設計18年,集合國內200余位經驗豐富的設計師,被評為口碑最好的農村建筑設計公司! |

三層雙拼別墅效果圖及戶型設計圖,占地150平米
占地:154.8平方米
160平方米二層平屋頂房屋設計圖紙及效果圖17x11米
占地:164平方米
45萬新中式二層雙拼自建房別墅設計圖,平屋頂設計
占地:210平方米
農村四間兩層樓房設計圖,帶車庫,時尚經濟,最適合農村施工的
占地:180平方米
120平二層別墅房屋設計圖,造型美觀、現代
占地:120平方米
造價25萬農村二層小別墅設計圖,外觀效果圖美觀、精致
占地:165平方米
帶堂屋設計一層三合院設計圖,白墻黛瓦古韻悠悠,比高層舒服接
占地:179.37平方米
新農村全套四層別墅設計圖紙占地面積:190平方米造價預算:42萬
占地:190平方米
農村二層小別墅圖片,二層別墅效果圖及設計圖
占地:153平方米
時尚耐看現代二層農村別墅設計圖,14米×11米,年輕人建房的不二
占地:138.125平方米
歐式三層雙拼別墅設計圖,精致大氣布局實用,兄弟建房上上之選
占地:234平方米
新中式二層農村別墅設計圖紙及外觀圖,面寬15米左右
占地:148.86平方米
150平方米農村二層房屋建筑設計圖,15.2x9.4米
占地:148平方米
二層復式農村別墅設計圖,進深12米,戶型堪稱完美
占地:193.2平方米
鄉村兩層半150平帶閣樓別墅房屋設計圖,客廳大、臥室多
占地:150平方米
經典一層帶閣樓三合院別墅設計圖,18米乘9.5米
占地:118.63平方米
外觀高檔大氣的三層別墅房屋設計圖,高端別墅設計展示
占地:147平方米
新農村140平米樓房圖四層獨棟別墅設計圖,簡歐外觀風格設計
占地:141平方米
最耐看的二層別墅設計圖,15米寬12米深,方正大氣經濟美觀!
占地:180平方米
農村一層五間(6間)新農村設計圖方案,含外觀圖片
占地:193.47平方米
推薦:10套新農村自建房設計圖,2026年最新設計
閱讀次數:4825737次
100套鄉村別墅圖片大全,2026年最新設計
閱讀次數:2492203次
6款農村蓋一層平房的設計圖,10萬元就能建起來
閱讀次數:1852637次
這11個一層農村自建房別墅火爆了朋友圈!我最喜歡戶型十!你呢
閱讀次數:750268次
農村6萬元建一層小別墅圖,你敢相信嗎
閱讀次數:567686次
農村5萬塊就能自建房,6套普通房子設計圖分享,你沒看錯!
閱讀次數:419410次
8套農村漂亮三間平房圖片,非常適合在農村修建!
閱讀次數:411197次
農村自建房化糞池怎么做?附方案及施工過程
閱讀次數:391783次
農村一層三間平房設計圖,告別土氣養老房,讓人忍不住點贊
閱讀次數:350581次
新農村二層樓房圖片造價12萬,挑一套回家建房吧!
閱讀次數:349126次
