
|
在老家建房不需要多大氣,建個小面積的,造價不高,也經濟適用!家里人口不多的,可以挑選幾套小面積的別墅! 造墅家今天為大家帶來3款小面積別墅,第3套造價僅18萬,看完收藏不迷路! 小別墅1:
磚混結構,造價29-36萬,開間8米,進深17.8米,占地面積135.38平方米,建筑面積270.76平方米,建筑高度9.909米
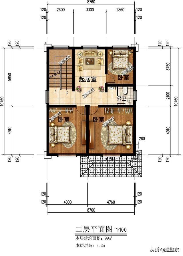
小別墅2:
架結構,造價30-38萬,開間8.76米,進深10.76米,占地面積105.9平方米,建筑面積289.95平方米,建筑高度12.5米
小別墅3:
框架結構,造價29-36萬,開間7.5米,進深12米,占地面積87.06平方米,建筑面積250.62平方米,建筑高度12.575米
3套農村系哦啊別墅!真是實用,看完收藏了! 圖紙之家-專注農村別墅/自建房設計18年,集合國內200余位經驗豐富的設計師,被評為口碑最好的農村建筑設計公司! |

面寬10米高品質二層別墅設計方案,造價不高顏值很高,非常適合
占地:137.63平方米
最實用一層小別墅設計方案,造價不高顏值高,家家都喜歡!
占地:143.48平方米
經典的農村三層小樓房設計圖,外觀圖片時尚、精致
占地:100平方米
在農村30萬可以建造的三層別墅款式,帶別墅外觀圖片
占地:138平方米
135平鄉村三層復式樓房設計圖,自建房推薦
占地:135平方米
帶地下室三層別墅設計圖紙(含外觀效果圖),別墅設計方案
占地:134平方米
農村中式一層三合院自建房戶型方案圖,帶庭院設計
占地:222平方米
網紅中式一層三合院別墅設計圖,白墻黛瓦古典大氣,讓人心曠神
占地:248.82平方米
三層平頂現代別墅設計圖,實用不花冤枉錢,建好倍有面子
占地:113.02平方米
新式160平方米農村三層樓房設計圖,客廳中空
占地:160平方米
農村10萬元一層小別墅平房設計圖大全,含效果圖
占地:120平方米
160平方米三層帶大露臺的復式別墅設計圖紙
占地:155平方米
16米乘11米接地氣農村二層自建房圖,帶配房設計
占地:149.8平方米
大氣豪華四層別墅設計圖紙,占地180平米左右
占地:180平方米
二層簡歐風格自建房別墅戶型設計圖,造價26萬
占地:132.4平方米
經典中式三合院設計,一層空間實用大氣,輕松實現理想家園!
占地:160.53平方米
鄉村兩層半別墅設計圖,一層160平,主體30萬左右
占地:168平方米左右
農村四間兩層別墅房屋設計圖,含外觀圖片
占地:160平方米
簡單時尚二層住宅設計圖紙,簡單的設計,不平凡的視覺感受
占地:110平方米
占地180平方米二層鄉村小洋樓設計戶型圖及圖紙,外觀華麗
占地:180平方米
推薦:10套新農村自建房設計圖,2026年最新設計
閱讀次數:4825737次
100套鄉村別墅圖片大全,2026年最新設計
閱讀次數:2492203次
6款農村蓋一層平房的設計圖,10萬元就能建起來
閱讀次數:1852637次
這11個一層農村自建房別墅火爆了朋友圈!我最喜歡戶型十!你呢
閱讀次數:750268次
農村6萬元建一層小別墅圖,你敢相信嗎
閱讀次數:567686次
農村5萬塊就能自建房,6套普通房子設計圖分享,你沒看錯!
閱讀次數:419410次
8套農村漂亮三間平房圖片,非常適合在農村修建!
閱讀次數:411197次
農村自建房化糞池怎么做?附方案及施工過程
閱讀次數:391783次
農村一層三間平房設計圖,告別土氣養老房,讓人忍不住點贊
閱讀次數:350581次
新農村二層樓房圖片造價12萬,挑一套回家建房吧!
閱讀次數:349126次
